House Plan: DFD-12333

See All 6 Photos > (photographs may reflect modified homes)
© copyright by designer
SQ FT
2,781
BEDS
4
BATHS
3.5
STORIES
2
CARS
2
PLANS FROM $1,700
For questions and help, live chat, email or call us at 877-895-5299
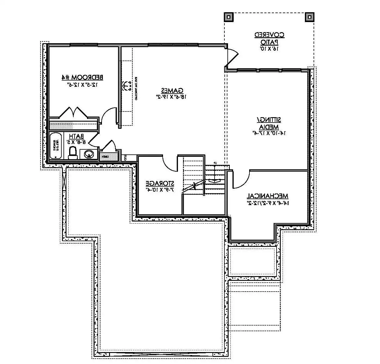
Floor Plans
Click to Zoom In on Floor Plan
 
About House Plan 12333:
With 2,781 square feet of heated living space, this 4 bedroom, 3.5 bathroom home is designed for connection and versatility. The open floor plan centers around a welcoming great room with fireplace, creating a warm focal point for daily life. The kitchen features an island, peninsula eating bar, and walk-in pantry, offering ample prep space and storage. Upstairs, the private primary suite includes a walk-in closet, double vanity sink, and separate tub and shower. A second-floor laundry room adds convenience right where it is needed most. The finished lower level expands the living space with a generous rec room ideal for entertaining or relaxing. A covered front porch, rear deck, and attached 2-car garage complete this thoughtfully designed home with comfort in every detail.
House Plan Pricing
STEP 1 Select Your Package

PDF Single Build


Digital plans emailed to you in PDF format that allows for printing copies and sharing electronically with contractors, subs, decorators, and more. This package includes a license to build the home one time.

PDF Single Build $1,700
Most recommended package

CAD + PDF Single Build


This plan package is created in AutoCAD and delivered in .DWG format. CAD files are intended for use by design professionals, structural engineers, and builders to update plans for local building codes or to make revisions based on specific needs, lot requirements, and budget considerations. A complimentary PDF copy is included with this package for reference. CAD packages are delivered within 1 to 2 business days.
 
This package also comes with a copyright release for making revisions and printing unlimited copies.

For details on the specific CAD program used, please refer to the PLAN DETAILS section located above the floor plan on each plan page.

CAD + PDF Single Build $2,400
2D electronic editable computer files

CAD + PDF Unlimited Build


This plan package is created in AutoCAD and delivered in .DWG format. CAD files are intended for use by design professionals, structural engineers, and builders to update plans for local building codes or to make revisions based on specific needs, lot requirements, and budget considerations. A complimentary PDF copy is included with this package for reference. CAD packages are delivered within 1 to 2 business days.
 
This package also comes with a multi-use building license, granting permission to construct the home an unlimited number of times, along with a copyright release for making revisions and printing unlimited copies.
 
For details on the specific CAD program used, please refer to the PLAN DETAILS section located above the floor plan on each plan page.

CAD + PDF Unlimited Build $2,900

States N/A: CADUNLIMITEDBUILD
2D electronic editable computer files
STEP 2 Need To Reverse This Plan?
STEP 3 CHOOSE YOUR FOUNDATION
STEP 4 OPTIONAL ADD-ONS
Subtotal:
$1700
FREE SHIPPING
 
Plan Details
See All Details
Finished Square Footage
1,361 Sq. Ft.
Main Level:
1,420 Sq. Ft.
Upper Level:
994 Sq. Ft.
Lower Level:
2,781 Sq. Ft.
Total:
Room Details
4
Bedrooms:
3
Full Baths:
1
Half Baths:
General House Information
2
Number of Stories:
48'
Width:
55'
Depth:
Single
Dwelling Number:
None
Bonus Access:
Unfinished Square Footage
576 Sq. Ft.
Garage:
100 Sq. Ft.
Storage:
160 Sq. Ft.
Deck:
GARAGE
Front
Garage Location:
2
Garage Size:
Exterior Style
European
Transitional
Collections
Canada
Kitchens
Primary Suites
Open Floor Plan
Foundation
Basement
Crawl Space
Walkout Basement
Framing Information
Truss
Roof Framing:
2x6
Exterior Wall Framing:
Roof Pitch
8/12
Primary:
Insulation (R)
House And Ceiling Heights
9
First Floor Ceiling:
9
Second Floor Ceiling:
Key Features
Attached
Covered Front Porch
Deck
Double Vanity Sink
Family Style
Fireplace
Foyer
Front-entry
Great Room
Home Office
Kitchen Island
Laundry 2nd Fl
Library/Media Rm
L-Shaped
Primary Bdrm Upstairs
Open Floor Plan
Peninsula / Eating Bar
Rec Room
Separate Tub and Shower
Storage Space
Suited for corner lot
Walk-in Closet
Walk-in Pantry

Our Guarantees

  • Only the highest quality plans
  • Int’l Residential Code Compliant
  • Full structural details on all plans
  • Best plan price guarantee
  • Free modification Estimates
  • Builder-ready construction drawings
  • Expert advice from leading designers
  •  PDFs NOW!™ plans in minutes
  • 100% satisfaction guarantee
  • Free Home Building Organizer