20% off ALL House Plans Sitewide
20% off ALL House Plans Sitewide

House Plan: DFD-12334

See All 11 Photos > (photographs may reflect modified homes)
© copyright by designer
SQ FT
1,660
BEDS
3
BATHS
2
STORIES
1
CARS
2
HOUSE PLANS SALE 
START AT  $1,196.00
For questions and help, live chat, email or call us at 877-895-5299
Floor Plans
Click to Zoom In on Floor Plan
 
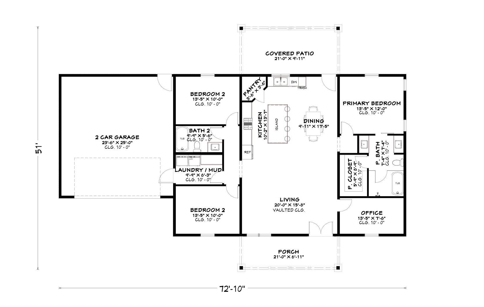
About House Plan 12334:
Designed for modern living, this 1660 square feet single story home plan includes 3 bedrooms and 2 baths arranged within a bright and functional layout. The vaulted ceiling in the great room enhances the sense of openness while maintaining easy flow to the dining area and kitchen. The L-shaped kitchen is equipped with an island, peninsula eating bar, and walk-in pantry to support both daily routines and entertaining. The main level primary suite offers privacy with a spacious walk-in closet, dual vanities, and a separate tub and shower. Secondary bedrooms are thoughtfully positioned in a split configuration for added comfort. A home office, mud room, and first-floor laundry provide practical flexibility. Covered porches and dedicated outdoor living space create inviting areas to relax, while the attached side-entry garage offers convenient access and storage.
House Plan Pricing
STEP 1 Select Your Package

PDF Single Build


Digital plans emailed to you in PDF format that allows for printing copies and sharing electronically with contractors, subs, decorators, and more. This package includes a license to build the home one time.

PDF Single Build $1,495
Most recommended package

PDF + 5 Sets


Five Printed Sets of Residential Construction Drawings that are typically 24” x 36” documents and come with a license to construct a single residence shipped to a physical address. Most jurisdictions require up to four copies of your house plans when applying for a building permit. Also includes a PDF Plan Package, are our most popular choice which allows you to print as many copies as you need and to electronically send files to your builder, subcontractors, bank/mortgage reps, material stores, decorators, and more.
PDF + 5 Sets $1,745
A five set package

PDF Unlimited Build


Digital plans with an unlimited build license emailed in PDF format, that allows for printing copies on a home printer or local print shop and sharing with contractors, subs, decorators and more 

PDF Unlimited Build $2,095
Digital plans including unlimited build license

CAD + PDF Unlimited Build


This plan package is created in AutoCAD and delivered in .DWG format. CAD files are intended for use by design professionals, structural engineers, and builders to update plans for local building codes or to make revisions based on specific needs, lot requirements, and budget considerations. A complimentary PDF copy is included with this package for reference. CAD packages are delivered within 1 to 2 business days.
 
This package also comes with a multi-use building license, granting permission to construct the home an unlimited number of times, along with a copyright release for making revisions and printing unlimited copies.
 
For details on the specific CAD program used, please refer to the PLAN DETAILS section located above the floor plan on each plan page.

CAD + PDF Unlimited Build $2,495
2D electronic editable computer files
STEP 2 Need To Reverse This Plan?
STEP 3 CHOOSE YOUR FOUNDATION
STEP 4 OPTIONAL ADD-ONS
Subtotal:
$1495
FREE SHIPPING
 
Plan Details
See All Details
Finished Square Footage
1,660 Sq. Ft.
Main Level:
1,660 Sq. Ft.
Total:
Room Details
3
Bedrooms:
2
Full Baths:
General House Information
1
Number of Stories:
72' 0"
Width:
51' 0"
Depth:
Single
Dwelling Number:
Unfinished Square Footage
624 Sq. Ft.
Garage:
147 Sq. Ft.
Porch:
210 Sq. Ft.
Deck:
GARAGE
Side
Garage Location:
2
Garage Size:
Exterior Style
Country
Farmhouse
Modern Farmhouse
Ranch
Collections
Primary Suites
Open Floor Plan
Outdoor Living
Split Bedroom
Foundation
Basement
Crawl Space
Slab (Free)
Framing Information
Truss
Roof Framing:
2x6
Exterior Wall Framing:
Roof Pitch
7/12
Primary:
Insulation (R)
House And Ceiling Heights
10
First Floor Ceiling:
20' 7"
Maximum House Height:
Key Features
Attached
Covered Front Porch
Covered Rear Porch
Double Vanity Sink
Front-entry
Home Office
Kitchen Island
Laundry 1st Fl
L-Shaped
Primary Bdrm Main Floor
Mud Room
Open Floor Plan
Outdoor Living Space
Peninsula / Eating Bar
Separate Tub and Shower
Split Bedrooms
Suited for corner lot
Vaulted Great Room/Living
Walk-in Closet
Walk-in Pantry

Our Guarantees

  • Only the highest quality plans
  • Int’l Residential Code Compliant
  • Full structural details on all plans
  • Best plan price guarantee
  • Free modification Estimates
  • Builder-ready construction drawings
  • Expert advice from leading designers
  •  PDFs NOW!™ plans in minutes
  • 100% satisfaction guarantee
  • Free Home Building Organizer