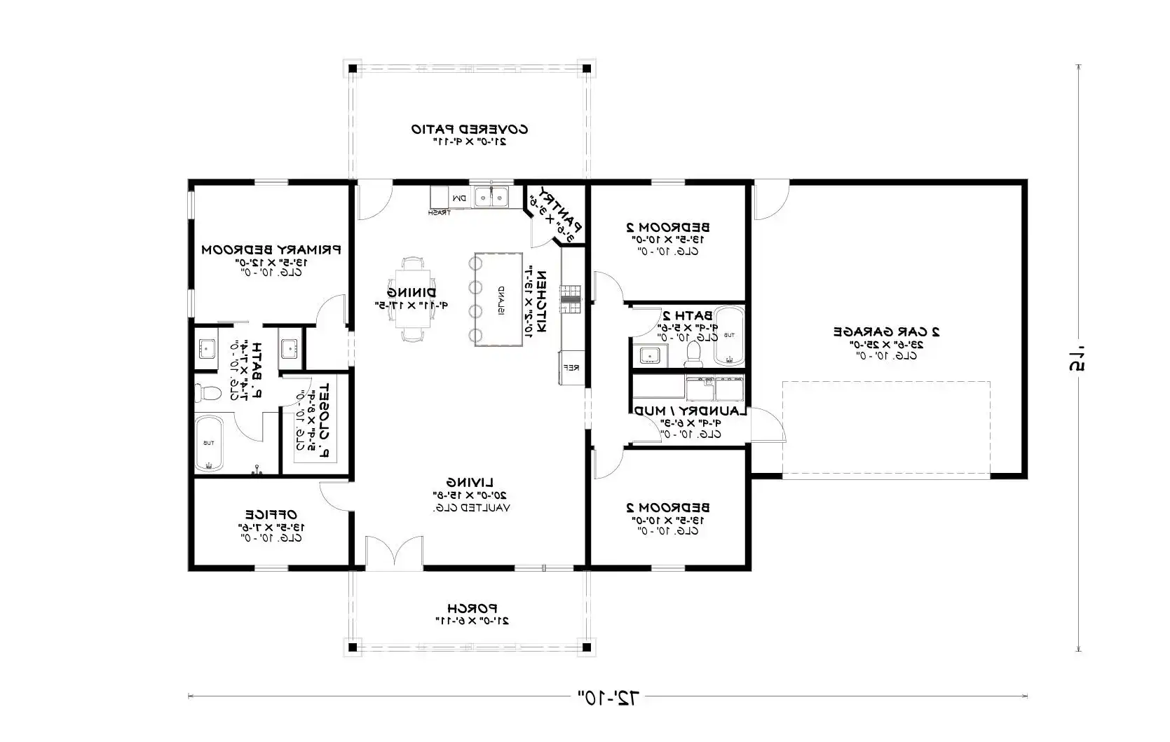
Designed for modern living, this 1660 square feet single story home plan includes 3 bedrooms and 2 baths arranged within a bright and functional layout. The vaulted ceiling in the great room enhances the sense of openness while maintaining easy flow to the dining area and kitchen. The L-shaped kitchen is equipped with an island, peninsula eating bar, and walk-in pantry to support both daily routines and entertaining. The main level primary suite offers privacy with a spacious walk-in closet, dual vanities, and a separate tub and shower. Secondary bedrooms are thoughtfully positioned in a split configuration for added comfort. A home office, mud room, and first-floor laundry provide practical flexibility. Covered porches and dedicated outdoor living space create inviting areas to relax, while the attached side-entry garage offers convenient access and storage.
Designed for modern living, this 1660 square feet single story home plan includes 3 bedrooms and 2 baths arranged within a bright and functional layout. The vaulted ceiling in the great room enhances the sense of openness while maintaining easy flow to the dining area and kitchen. The L-shaped kitchen is equipped with an island, peninsula eating bar, and walk-in pantry to support both daily routines and entertaining. The main level primary suite offers privacy with a spacious walk-in closet, dual vanities, and a separate tub and shower. Secondary bedrooms are thoughtfully positioned in a split configuration for added comfort. A home office, mud room, and first-floor laundry provide practical flexibility. Covered porches and dedicated outdoor living space create inviting areas to relax, while the attached side-entry garage offers convenient access and storage.