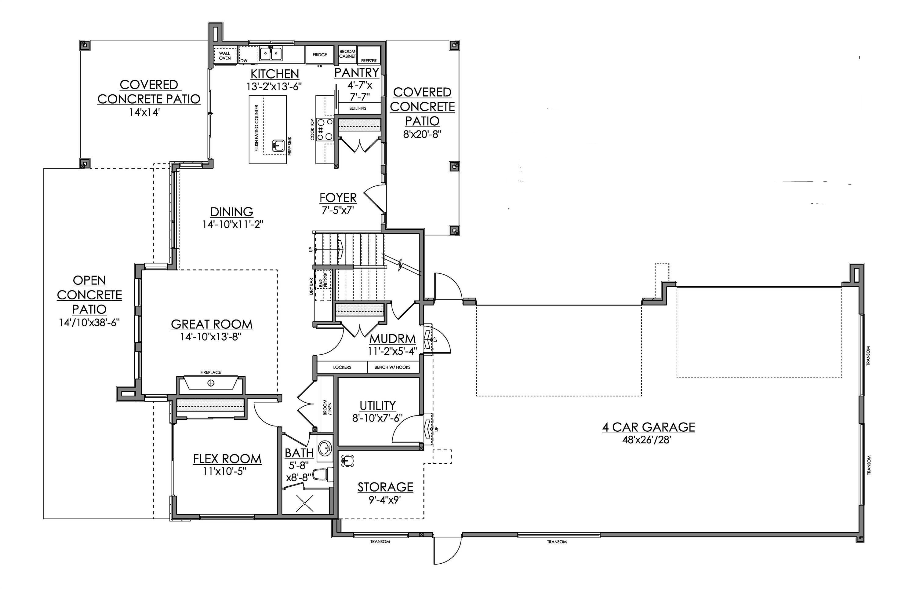
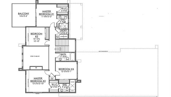
Offering 2,357 square feet of heated living space, this 5 bedroom, 4 bathroom home is designed for flexibility and connection. The main level features an open floor plan anchored by a welcoming great room with fireplace. The kitchen includes an island, peninsula eating bar, and walk-in pantry, flowing easily into the dining room for gatherings both large and small. Upstairs, a primary suite with walk-in closet provides privacy, while a second primary suite enhances comfort for guests or multigenerational living. A loft overlooking the living space adds a relaxed retreat, and a dedicated home office supports work-from-home needs. Second-floor laundry and abundant storage space keep daily life organized. Complete with covered porches and an attached courtyard-style 4-car garage, this home offers room to grow in all the right ways.