15% off ALL House Plans Sitewide
15% off ALL House Plans Sitewide

House Plan: DFD-1249

See All 4 Photos > (photographs may reflect modified homes)
© copyright by designer
SQ FT
4,676
BEDS
5
BATHS
4.5
STORIES
2
CARS
3
HOUSE PLANS SALE 
START AT  $2,120.75
For questions and help, live chat, email or call us at 877-895-5299
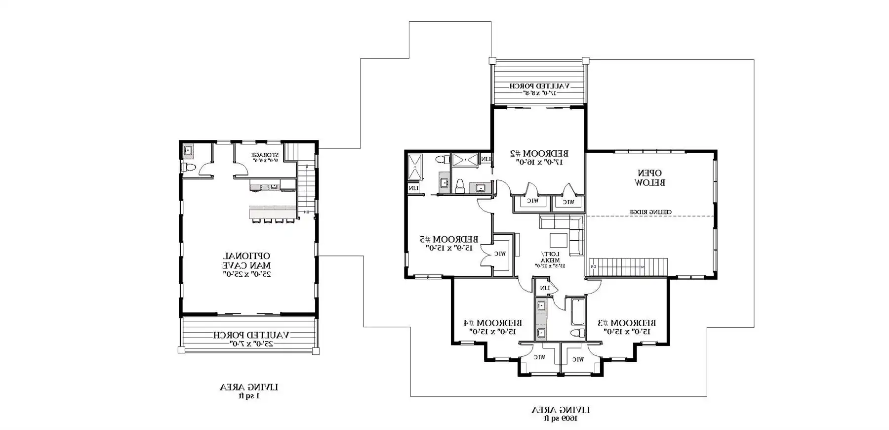
Floor Plans
Click to Zoom In on Floor Plan
 
About House Plan 1249:
If “wrap around porch” has been at the top of your search terms, this might be the one you’ve been searching for.

Coming in at slightly under 5000 sq. ft, this 4,676 sq.ft. two story farmhouse is a sprawler with class and elevated style.

From the foyer that’s flanked by the den and dining room with sliding glass doors, to the 2 story great room anchored by a fireplace, this entertainer's dream has it all it seems. The chef of the home not only has an island that seats 8, they’ll enjoy the use of a scullery for large dinner parties, the butler’s pantry as well as a the huge walk in pantry.

Down the small hallway you’ll find the “hub” of the home with the powder bath, closet, garage access, a pet bath area, lockers for the kiddos backpacks, and a large laundry with a utility sink.

The back right of the home is a luxurious suite for the owners of the home with its very own covered vaulted private patio, its private sitting area, and the bathroom that has a stand alone tub, shower, as well as a huge walk in closet, relaxation has been considered.

The remaining 4 oversized bedrooms are all upstairs with the front two bedrooms sharing a hallway bath. Bedrooms 2 and 5 have ensuite bathrooms while bedroom 2 could be a second master with its private access vaulted porch.

Above the 3 car garage there is an optional “man cave” or apartment, office, flex hobby space. It has storage as well as a powder bath, kitchenette and an eat-at bar. The covered vaulted porch is a great spot to catch a full moon.
House Plan Pricing
STEP 1 Select Your Package

PDF Single Build


Digital plans emailed to you in PDF format that allows for printing copies and sharing electronically with contractors, subs, decorators, and more. This package includes a license to build the home one time.

PDF Single Build $2,495
Most recommended package

5 Printed Sets + PDF


Includes 5 physical printed blueprint sets, shipped free via UPS within the U.S. Printed sets ship within 1 business day and are delivered within 3 – 5 business days. A complimentary PDF plan set is also emailed within 1 business day for easy sharing and local printing. These plans may be used to construct one home.

5 Printed Sets + PDF $2,745
5 Printed Sets + PDF

CAD + PDF Single Build


This plan package is created in AutoCAD and delivered in .DWG format. CAD files are intended for use by design professionals, structural engineers, and builders to update plans for local building codes or to make revisions based on specific needs, lot requirements, and budget considerations. A complimentary PDF copy is included with this package for reference. CAD packages are delivered within 1 to 2 business days.
 
This package also comes with a copyright release for making revisions and printing unlimited copies.

For details on the specific CAD program used, please refer to the PLAN DETAILS section located above the floor plan on each plan page.

CAD + PDF Single Build $2,995
2D electronic editable computer files

CAD + PDF Unlimited Build


This plan package is created in AutoCAD and delivered in .DWG format. CAD files are intended for use by design professionals, structural engineers, and builders to update plans for local building codes or to make revisions based on specific needs, lot requirements, and budget considerations. A complimentary PDF copy is included with this package for reference. CAD packages are delivered within 1 to 2 business days.
 
This package also comes with a multi-use building license, granting permission to construct the home an unlimited number of times, along with a copyright release for making revisions and printing unlimited copies.
 
For details on the specific CAD program used, please refer to the PLAN DETAILS section located above the floor plan on each plan page.

CAD + PDF Unlimited Build $3,495
2D electronic editable computer files
STEP 2 Need To Reverse This Plan?
STEP 3 CHOOSE YOUR FOUNDATION
STEP 4 OPTIONAL ADD-ONS
Subtotal:
$2495
FREE SHIPPING

Note: PLEASE ALLOW 20-25 BUSINESS DAYS TO COMPLETE.
 
Plan Details
See All Details
Finished Square Footage
3,067 Sq. Ft.
Main Level:
1,609 Sq. Ft.
Upper Level:
4,676 Sq. Ft.
Total:
Room Details
5
Bedrooms:
4
Full Baths:
2
Half Baths:
General House Information
2
Number of Stories:
108'
Width:
71'
Depth:
Single
Dwelling Number:
1st Floor
Bonus Access:
Unfinished Square Footage
1034 Sq. Ft.
Garage:
1995 Sq. Ft.
Porch:
786 Sq. Ft.
Bonus Room:
GARAGE
Side
Garage Location:
3
Garage Size:
Exterior Style
Country
Farmhouse
Modern Farmhouse
Transitional
Collections
Kitchens
Primary Suites
Open Floor Plan
Outdoor Living
Texas
Foundation
Crawl Space
Daylight Basement
Slab
Unfinished Basement
Walk-Out Basement Option
Framing Information
Stick
Roof Framing:
2x6
Exterior Wall Framing:
Roof Pitch
12
Primary:
12
Secondary:
12
Gable:
12
Porch:
Roof Load
40
Live:
10
Dead:
Insulation (R)
Per IRC Climate Zones
House And Ceiling Heights
10
First Floor Ceiling:
9
Second Floor Ceiling:
38'
Maximum House Height:
Key Features
Attached
Bonus Room
Butler's Pantry
Covered Front Porch
Covered Rear Porch
Dining Room
Double Vanity Sink
Family Room
Fireplace
Foyer
Front Porch
Great Room
Guest Suite
Home Office
Kitchen Island
Laundry 1st Fl
Library/Media Rm
Loft / Balcony
Primary Bdrm Main Floor
Mud Room
Open Floor Plan
Outdoor Kitchen
Outdoor Living Space
Rear Porch
Rec Room
Separate Tub and Shower
Side-entry
Storage Space
Unfinished Space
Vaulted Ceilings
Vaulted Great Room/Living
Walk-in Closet
Walk-in Pantry
Wraparound Porch

Our Guarantees

  • Only the highest quality plans
  • Int’l Residential Code Compliant
  • Full structural details on all plans
  • Best plan price guarantee
  • Free modification Estimates
  • Builder-ready construction drawings
  • Expert advice from leading designers
  •  PDFs NOW!™ plans in minutes
  • 100% satisfaction guarantee
  • Free Home Building Organizer