15% off ALL House Plans Sitewide

House Plan: DFD-1448

See All 6 Photos > (photographs may reflect modified homes)
© copyright by designer
SQ FT
4,356
BEDS
4
BATHS
4.5
STORIES
2
CARS
4
HOUSE PLANS SALE 
START AT  $2,120.75
For questions and help, live chat, email or call us at 877-895-5299
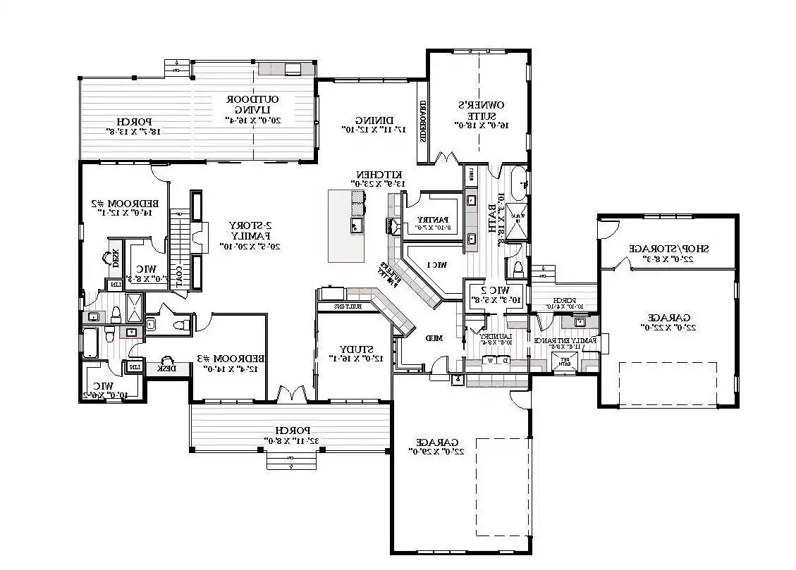
Floor Plans
Click to Zoom In on Floor Plan
 
About House Plan 1448:
If you are a family with a span of ages or young family but still need a separate space for family or guests that don’t necessarily need to be on the main level, this split bedroom 2 story 4,356 sq.ft. Modern Farm might have the perfect layout.

From the covered front porch, you’ll enter the home with natural light flowing from the 2 story ceilings, back wall of windows with uninterrupted views from the vaulted covered porch. The two secondary bedrooms are on the right of the home with their own built-in desks and private bathrooms (1 shower, 1 bathtub).

The main living area has 2 story ceilings which provide airiness as well as natural light from the spanse of windows on the back wall. The outdoor covered porch has a vault so the views are not obstructed. The kitchen has an oversized island, butler’s service space, and an ample pantry.

The hobbyist of the home will be thrilled with its 4 separated garage spaces and additional storage for tools. Cleanup is made easy with a utility sink and a separate small porch for outside access.

The master of the home will love to retreat to the large vaulted owner’s bedroom that has a private vaulted covered porch. The spa-like bathroom leads to the walk-in closet that has a surprise secondary entrance to the family’s laundry room via a pocket door.

Up the stairs is perfect for an older child or guest with the single bedroom that has a full bathroom with hallway access as well as a dedicated office space and loft area for relaxing. If you choose to finish out the unfinished bonus above the garage, it will add an additional 654 heated sq.ft. bringing the total heated sq.ft of the home to 5010.
House Plan Pricing
STEP 1 Select Your Package

PDF Single Build


Digital plans emailed to you in PDF format that allows for printing copies and sharing electronically with contractors, subs, decorators, and more. This package includes a license to build the home one time.

PDF Single Build $2,495
Most recommended package

5 Printed Sets + PDF


Includes 5 physical printed blueprint sets, shipped free via UPS within the U.S. Printed sets ship within 1 business day and are delivered within 3 – 5 business days. A complimentary PDF plan set is also emailed within 1 business day for easy sharing and local printing. These plans may be used to construct one home.

5 Printed Sets + PDF $2,745
5 Printed Sets + PDF

CAD + PDF Single Build


This plan package is created in AutoCAD and delivered in .DWG format. CAD files are intended for use by design professionals, structural engineers, and builders to update plans for local building codes or to make revisions based on specific needs, lot requirements, and budget considerations. A complimentary PDF copy is included with this package for reference. CAD packages are delivered within 1 to 2 business days.
 
This package also comes with a copyright release for making revisions and printing unlimited copies.

For details on the specific CAD program used, please refer to the PLAN DETAILS section located above the floor plan on each plan page.

CAD + PDF Single Build $2,995
2D electronic editable computer files

CAD + PDF Unlimited Build


This plan package is created in AutoCAD and delivered in .DWG format. CAD files are intended for use by design professionals, structural engineers, and builders to update plans for local building codes or to make revisions based on specific needs, lot requirements, and budget considerations. A complimentary PDF copy is included with this package for reference. CAD packages are delivered within 1 to 2 business days.
 
This package also comes with a multi-use building license, granting permission to construct the home an unlimited number of times, along with a copyright release for making revisions and printing unlimited copies.
 
For details on the specific CAD program used, please refer to the PLAN DETAILS section located above the floor plan on each plan page.

CAD + PDF Unlimited Build $3,495
2D electronic editable computer files
STEP 2 Need To Reverse This Plan?
STEP 3 CHOOSE YOUR FOUNDATION
STEP 4 OPTIONAL ADD-ONS
Subtotal:
$2495
FREE SHIPPING

Note: PLEASE ALLOW 20-25 BUSINESS DAYS FOR COMPLETION
 
Plan Details
See All Details
Finished Square Footage
3,477 Sq. Ft.
Main Level:
879 Sq. Ft.
Upper Level:
4,356 Sq. Ft.
Total:
Room Details
4
Bedrooms:
4
Full Baths:
1
Half Baths:
General House Information
2
Number of Stories:
108'
Width:
89'
Depth:
Single
Dwelling Number:
2nd Floor
Bonus Access:
Unfinished Square Footage
520 Sq. Ft.
Garage:
1015 Sq. Ft.
Porch:
654 Sq. Ft.
Bonus Room:
GARAGE
Side
Garage Location:
4
Garage Size:
Exterior Style
Country
Farmhouse
Modern Farmhouse
Collections
Concept Plan
Kitchens
Luxury
Primary Suites
Open Floor Plan
Outdoor Living
Split Bedroom
Texas
Foundation
Crawl Space
Daylight Basement
Slab
Unfinished Basement
Walk-Out Basement Option
Framing Information
Stick
Roof Framing:
2x6
Exterior Wall Framing:
Roof Pitch
8:12
Primary:
12:12
Gable:
Roof Load
40
Live:
10
Dead:
Insulation (R)
Per IRC Climate Zones
House And Ceiling Heights
10
First Floor Ceiling:
9
Second Floor Ceiling:
35'
Maximum House Height:
Key Features
Attached
Bonus Room
Butler's Pantry
Courtyard
Courtyard/Motorcourt Entry
Covered Front Porch
Covered Rear Porch
Dining Room
Double Vanity Sink
Family Room
Family Style
Fireplace
Foyer
Front-entry
Great Room
Guest Suite
His and Hers Primary Closets
Home Office
Kitchen Island
Laundry 1st Fl
Loft / Balcony
Primary Bdrm Main Floor
Mud Room
Open Floor Plan
Outdoor Kitchen
Outdoor Living Space
Pantry
Rec Room
Separate Tub and Shower
Side-entry
Split Bedrooms
Storage Space
Suited for view lot
Unfinished Space
Vaulted Ceilings
Vaulted Great Room/Living
Vaulted Primary
Walk-in Closet
Walk-in Pantry
Workshop

Our Guarantees

  • Only the highest quality plans
  • Int’l Residential Code Compliant
  • Full structural details on all plans
  • Best plan price guarantee
  • Free modification Estimates
  • Builder-ready construction drawings
  • Expert advice from leading designers
  •  PDFs NOW!™ plans in minutes
  • 100% satisfaction guarantee
  • Free Home Building Organizer