20% off ALL House Plans Sitewide
20% off ALL House Plans Sitewide

House Plan: DFD-2022

See All 6 Photos > (photographs may reflect modified homes)
© copyright by designer
SQ FT
1,070
BEDS
1
BATHS
1
STORIES
1
CARS
0
HOUSE PLANS SALE 
START AT  $1,160.00
For questions and help, live chat, email or call us at 877-895-5299
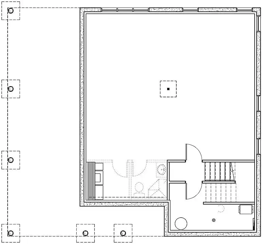
Floor Plans
Click to Zoom In on Floor Plan
 
About House Plan 2022:
This beautiful country cottage is a cute option, great for a vacation home. Within this single story dwelling you will find an emphasis on simple living, highlighted by the 1,070 square feet and single bedroom and bathroom. Simplicity doesn’t mean that this home doesn’t have some high end finishes, as is seen with the luxurious wraparound porch and screened in room. A spacious kitchen offers an eat-in island right off of the air-lock foyer and entryway. A large walk-in pantry has ample storage while this kitchen isn’t lacking for counter space. An attached dining room and living room offer porch access as well as spectacular views thanks to the large windows and 9 foot ceilings. A full bathroom and master suite complete the first level, making for a comfortable layout that feels cozy all year long. An unfinished basement provides a blank slate for adding functional living space or simply extra storage for this adorable cottage home.

 
House Plan Pricing
STEP 1 Select Your Package

PDF Single Build


Digital plans emailed to you in PDF format that allows for printing copies and sharing electronically with contractors, subs, decorators, and more. This package includes a license to build the home one time.

PDF Single Build $1,450
Most recommended package

3 sets + PDF


Please allow 3-5 days for delivery
3 sets + PDF $1,590
3 sets + PDF

CAD + PDF Single Build


CAD files are a complete set of construction drawings delivered electronically. They can be used for any type of modification—including major design changes and engineering—and include a release granting permission to modify the plan. Most CAD plan orders are emailed the same or next business day.
 
This package also comes with a PDF set of plans and a copyright release for making modifications and printing unlimited copies.
 
CAD files are provided in .dwg format. For details on the specific CAD program used, please refer to the PLAN DETAILS section located above the floor plan on each plan’s page.

CAD + PDF Single Build $2,450
2D electronic editable computer files
STEP 2 Need To Reverse This Plan?
STEP 3 CHOOSE YOUR FOUNDATION
STEP 4 OPTIONAL ADD-ONS
Subtotal:
$1450
FREE SHIPPING

Orders for this plan will be fulfilled after January 4th. Please check our PDFs NOW!™ collection for plans that can be downloaded and received immediately or live chat, email or call us at 877-895-5299 to help you find a similar plan available immediately.

 
Plan Details
See All Details
Finished Square Footage
1,070 Sq. Ft.
Main Level:
1,070 Sq. Ft.
Total:
Room Details
1
Bedrooms:
1
Full Baths:
General House Information
1
Number of Stories:
30' 0"
Width:
38' 0"
Depth:
Single
Dwelling Number:
None
Bonus Access:
Unfinished Square Footage
GARAGE
None
Garage Location:
0
Garage Size:
Exterior Style
Beach
Country
Lake
Collections
Affordable
Cabin
Canada
Empty Nester
Florida
Mountain
Old House Classics
Open Floor Plan
Outdoor Living
Vacation
Foundation
Crawlspace
Floating slab
Full Unfinished Basement (included)
Monolithic slab
Framing Information
Truss
Roof Framing:
2x6
Exterior Wall Framing:
Roof Pitch
10
Primary:
Roof Load
55
Live:
20
Dead:
Insulation (R)
20
Exterior Wall:
0
Interior Wall:
40
Ceiling:
28
Floor:
House And Ceiling Heights
9
First Floor Ceiling:
28' 1"
Maximum House Height:
Key Features
Basement
Covered Front Porch
Covered Rear Porch
Crawlspace
Family Room
Fireplace
Foyer
Kitchen Island
Primary Bdrm Main Floor
Mud Room
None
Open Floor Plan
Peninsula / Eating Bar
Screened Porch/Sunroom
Slab
Suited for view lot
Walk-in Pantry
Wraparound Porch

Our Guarantees

  • Only the highest quality plans
  • Int’l Residential Code Compliant
  • Full structural details on all plans
  • Best plan price guarantee
  • Free modification Estimates
  • Builder-ready construction drawings
  • Expert advice from leading designers
  •  PDFs NOW!™ plans in minutes
  • 100% satisfaction guarantee
  • Free Home Building Organizer