15% off ALL House Plans Sitewide
15% off ALL House Plans Sitewide

House Plan: DFD-2083

See All 4 Photos > (photographs may reflect modified homes)
© copyright by designer
SQ FT
4,833
BEDS
4
BATHS
5.5
STORIES
2
CARS
3
HOUSE PLANS SALE 
START AT  $2,337.50
For questions and help, live chat, email or call us at 877-895-5299
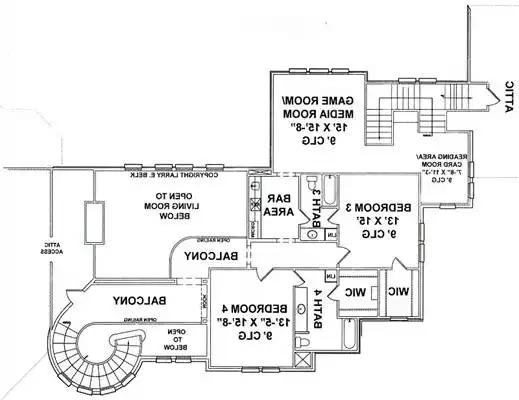
Floor Plans
Click to Zoom In on Floor Plan
 
About House Plan 2083:
Designed for luxury and versatility, this 4833 square feet home plan features 4 bedrooms and 5.5 baths arranged across a thoughtfully planned two story layout. The open floor plan connects the great room, dining room, and kitchen beneath soaring ceilings for an impressive yet welcoming atmosphere. The well-appointed kitchen includes a central island, peninsula eating bar, breakfast nook, and walk-in pantry to support gatherings of any size. The primary suite on the main floor offers comfort and privacy with dual closets, a double vanity sink, and separate tub and shower. Upstairs, additional bedrooms, a loft, and a rec room provide flexible living and recreation space. A dedicated library or media room and workshop add further functionality. With multiple foundation options and a side-entry courtyard garage framed by a porte-cochere, this home blends architectural elegance with modern convenience.
House Plan Pricing
STEP 1 Select Your Package

PDF Bid Set


Home plans stamped "NOT FOR CONSTRUCTION" for cost estimating and bidding purposes only; a minimum 5 set plan package must be purchased within 90 days for a license to build plan set; a credit will be applied towards your house plan upgrade

PDF Bid Set $1,740
Digital set of plans for bidding purposes only

PDF Single Build


Digital plans emailed to you in PDF format that allows for printing copies and sharing electronically with contractors, subs, decorators, and more. This package includes a license to build the home one time.

PDF Single Build $2,750
Most recommended package

PDF + MOD License Single Build


Digital plans emailed to you in PDF format that allows for printing copies and sharing electronically with contractors, subs, decorators, and more. This package includes a modification license to build the home one time.
PDF + MOD License Single Build $3,795
PDF + MOD License Single Build

CAD + PDF Single Build


This plan package is created in AutoCAD and delivered in .DWG format. CAD files are intended for use by design professionals, structural engineers, and builders to update plans for local building codes or to make revisions based on specific needs, lot requirements, and budget considerations. A complimentary PDF copy is included with this package for reference. CAD packages are delivered within 1 to 2 business days.
 
This package also comes with a copyright release for making revisions and printing unlimited copies.

For details on the specific CAD program used, please refer to the PLAN DETAILS section located above the floor plan on each plan page.

CAD + PDF Single Build $4,375
2D electronic editable computer files
STEP 2 Need To Reverse This Plan?
STEP 3 CHOOSE YOUR FOUNDATION
STEP 4 OPTIONAL ADD-ONS
Subtotal:
$2750
FREE SHIPPING
 
Plan Details
See All Details
Finished Square Footage
3,401 Sq. Ft.
Main Level:
1,432 Sq. Ft.
Upper Level:
4,833 Sq. Ft.
Total:
Room Details
4
Bedrooms:
5
Full Baths:
1
Half Baths:
General House Information
2
Number of Stories:
126' 6"
Width:
99' 10"
Depth:
Single
Dwelling Number:
Unfinished Square Footage
1507 Sq. Ft.
Garage:
960 Sq. Ft.
Porch:
GARAGE
Side
Garage Location:
3
Garage Size:
Exterior Style
Cape Cod
European
French Country
Lake
Southern
Collections
Kitchens
Luxury
Primary Suites
Mountain
Open Floor Plan
OtherCustom
Outdoor Living
Foundation
Basement
Crawl Space
Daylight Basement
Slab
Framing Information
Stick
Roof Framing:
2x4
Exterior Wall Framing:
Insulation (R)
0
Exterior Wall:
0
Interior Wall:
0
Ceiling:
0
Floor:
House And Ceiling Heights
10
First Floor Ceiling:
9
Second Floor Ceiling:
Key Features
2 Story Volume
Attached
Basement
Breezeway
Courtyard/Motorcourt Entry
Covered Front Porch
Covered Rear Porch
Crawlspace
Dining Room
Double Vanity Sink
Fireplace
Foyer
Great Room
Guest Suite
His and Hers Primary Closets
Kitchen Island
Laundry 1st Fl
Library/Media Rm
Loft / Balcony
Primary Bdrm Main Floor
Nook / Breakfast Area
Open Floor Plan
Outdoor Kitchen
Outdoor Living Space
Peninsula / Eating Bar
Porte-cochere
Rec Room
Separate Tub and Shower
Sitting Area
Slab
Storage Space
Suited for view lot
U-Shaped
Vaulted Ceilings
Walk-in Closet
Walk-in Pantry
Workshop

Our Guarantees

  • Only the highest quality plans
  • Int’l Residential Code Compliant
  • Full structural details on all plans
  • Best plan price guarantee
  • Free modification Estimates
  • Builder-ready construction drawings
  • Expert advice from leading designers
  •  PDFs NOW!™ plans in minutes
  • 100% satisfaction guarantee
  • Free Home Building Organizer