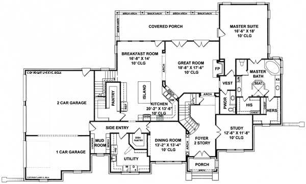
Designed with architectural character and modern convenience in mind, this 4345 square feet home plan features 4 bedrooms and 3.5 baths across two thoughtfully arranged levels. Elegant arches and open living spaces connect the great room, dining room, and kitchen into a cohesive layout ideal for entertaining. The main level primary suite delivers comfort and privacy with dual closets and a spa-style bath. Upstairs, additional bedrooms provide ample accommodations for family or guests. An unfinished space offers future expansion opportunities for storage, recreation, or customization. With multiple foundation options and suitability for both corner and view lots, this design balances timeless style with everyday practicality.
Designed with architectural character and modern convenience in mind, this 4345 square feet home plan features 4 bedrooms and 3.5 baths across two thoughtfully arranged levels. Elegant arches and open living spaces connect the great room, dining room, and kitchen into a cohesive layout ideal for entertaining. The main level primary suite delivers comfort and privacy with dual closets and a spa-style bath. Upstairs, additional bedrooms provide ample accommodations for family or guests. An unfinished space offers future expansion opportunities for storage, recreation, or customization. With multiple foundation options and suitability for both corner and view lots, this design balances timeless style with everyday practicality.