20% off ALL House Plans Sitewide
20% off ALL House Plans Sitewide

House Plan: DFD-2093

See All 5 Photos > (photographs may reflect modified homes)
© copyright by designer
SQ FT
3,940
BEDS
4
BATHS
3.5
STORIES
2
CARS
3
HOUSE PLANS SALE 
START AT  $1,200.00
For questions and help, live chat, email or call us at 877-895-5299
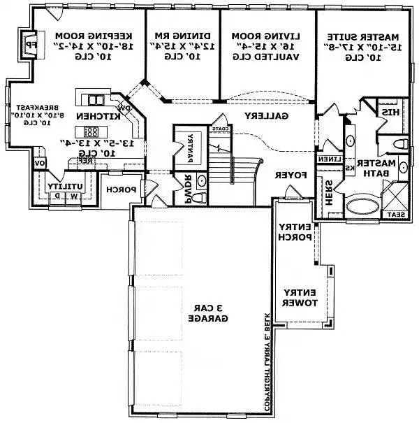
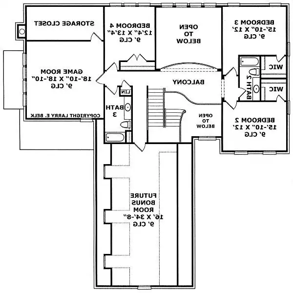
Floor Plans
Click to Zoom In on Floor Plan
 
About House Plan 2093:
Designed for those who appreciate space and flexibility, this 3940 square feet home plan features 4 bedrooms and 3.5 baths across 2 well-appointed levels. The foyer leads to elegant formal living and dining rooms before opening into a spacious family room highlighted by a fireplace and soaring ceilings. The open floor plan connects seamlessly to a well-equipped kitchen with a central island, peninsula eating bar, cozy breakfast nook, and walk-in pantry. A main level primary suite offers privacy and comfort, complete with vaulted ceilings, his and hers primary closets, a double vanity sink, and a separate tub and shower. Upstairs, secondary bedrooms share access to additional baths and a loft area that overlooks the living space below. A bonus room and dedicated rec room create room for hobbies, media, or play, while unfinished space provides valuable storage options. First-floor laundry enhances convenience, and the attached 3 car garage offers both front-entry and side-entry flexibility. With its inviting covered front porch and expansive interior spaces, this home delivers the perfect balance of elegance, function, and everyday livability.
House Plan Pricing
STEP 1 Select Your Package

PDF Bid Set


Home plans stamped "NOT FOR CONSTRUCTION" for cost estimating and bidding purposes only; a minimum 5 set plan package must be purchased within 90 days for a license to build plan set; a credit will be applied towards your house plan upgrade

PDF Bid Set $1,500
Digital set of plans for bidding purposes only

PDF Single Build


Digital plans emailed to you in PDF format that allows for printing copies and sharing electronically with contractors, subs, decorators, and more. This package includes a license to build the home one time.

PDF Single Build $2,475
Most recommended package

PDF Single Build


Digital plans emailed to you in PDF format that allows for printing copies and sharing electronically with contractors, subs, decorators, and more. This package includes a license to build the home one time.

PDF Single Build $3,595
Most recommended package

CAD + PDF Single Build


This plan package is created in AutoCAD and delivered in .DWG format. CAD files are intended for use by design professionals, structural engineers, and builders to update plans for local building codes or to make revisions based on specific needs, lot requirements, and budget considerations. A complimentary PDF copy is included with this package for reference. CAD packages are delivered within 1 to 2 business days.
 
This package also comes with a copyright release for making revisions and printing unlimited copies.

For details on the specific CAD program used, please refer to the PLAN DETAILS section located above the floor plan on each plan page.

CAD + PDF Single Build $3,900
2D electronic editable computer files
STEP 2 Need To Reverse This Plan?
STEP 3 CHOOSE YOUR FOUNDATION
STEP 4 OPTIONAL ADD-ONS
Subtotal:
$2475
FREE SHIPPING
 
Plan Details
See All Details
Finished Square Footage
2,241 Sq. Ft.
Main Level:
1,699 Sq. Ft.
Upper Level:
3,940 Sq. Ft.
Total:
Room Details
4
Bedrooms:
3
Full Baths:
1
Half Baths:
General House Information
2
Number of Stories:
68' 2"
Width:
71' 6"
Depth:
Single
Dwelling Number:
Unfinished Square Footage
840 Sq. Ft.
Garage:
238 Sq. Ft.
Porch:
554 Sq. Ft.
Bonus Room:
GARAGE
Front
Garage Location:
3
Garage Size:
Exterior Style
European
French Country
Traditional
Collections
Luxury
Mountain
Split Bedroom
Foundation
Basement
Crawl Space
Daylight Basement
Slab
Framing Information
Stick
Roof Framing:
2x4
Exterior Wall Framing:
Insulation (R)
0
Exterior Wall:
0
Interior Wall:
0
Ceiling:
0
Floor:
Key Features
2 Story Volume
Attached
Basement
Bonus Room
Covered Front Porch
Crawlspace
Dining Room
Double Vanity Sink
Family Room
Fireplace
Formal LR
Foyer
Front Porch
Front-entry
His and Hers Primary Closets
Kitchen Island
Laundry 1st Fl
Loft / Balcony
Primary Bdrm Main Floor
Nook / Breakfast Area
Peninsula / Eating Bar
Rec Room
Separate Tub and Shower
Side-entry
Slab
Storage Space
Suited for corner lot
Unfinished Space
Vaulted Ceilings
Walk-in Closet
Walk-in Pantry

Our Guarantees

  • Only the highest quality plans
  • Int’l Residential Code Compliant
  • Full structural details on all plans
  • Best plan price guarantee
  • Free modification Estimates
  • Builder-ready construction drawings
  • Expert advice from leading designers
  •  PDFs NOW!™ plans in minutes
  • 100% satisfaction guarantee
  • Free Home Building Organizer