15% off ALL House Plans Sitewide
15% off ALL House Plans Sitewide

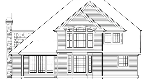
House Plan: DFD-2733

See All 5 Photos > (photographs may reflect modified homes)
© copyright by designer
SQ FT
3,382
BEDS
3
BATHS
2.5
STORIES
2
CARS
3
HOUSE PLANS SALE 
START AT  $1,849.60
For questions and help, live chat, email or call us at 877-895-5299
Floor Plans
Click to Zoom In on Floor Plan
 
House Plan 2733
House Plan Pricing
STEP 1 Select Your Package

PDF Single Build


Digital plans emailed to you in PDF format that allows for printing copies and sharing electronically with contractors, subs, decorators, and more. This package includes a license to build the home one time.

PDF Single Build $2,176
Most recommended package

5 Printed Sets + PDF


Includes 5 physical printed blueprint sets, shipped free via UPS within the U.S. Printed sets ship within 1 business day and are delivered within 3 – 5 business days. A complimentary PDF plan set is also emailed within 1 business day for easy sharing and local printing. These plans may be used to construct one home.

5 Printed Sets + PDF $2,501
5 Printed Sets + PDF

CAD + PDF Single Build


This plan package is created in AutoCAD and delivered in .DWG format. CAD files are intended for use by design professionals, structural engineers, and builders to update plans for local building codes or to make revisions based on specific needs, lot requirements, and budget considerations. A complimentary PDF copy is included with this package for reference. CAD packages are delivered within 1 to 2 business days.
 
This package also comes with a copyright release for making revisions and printing unlimited copies.

For details on the specific CAD program used, please refer to the PLAN DETAILS section located above the floor plan on each plan page.

CAD + PDF Single Build $4,352
2D electronic editable computer files
STEP 2 Need To Reverse This Plan?
STEP 3 CHOOSE YOUR FOUNDATION
STEP 4 OPTIONAL ADD-ONS
Subtotal:
$2176
FREE SHIPPING
 
Plan Details
See All Details
Finished Square Footage
1,892 Sq. Ft.
Main Level:
1,490 Sq. Ft.
Upper Level:
3,382 Sq. Ft.
Total:
Room Details
3
Bedrooms:
2
Full Baths:
1
Half Baths:
General House Information
2
Number of Stories:
50' 0"
Width:
63' 0"
Depth:
Single
Dwelling Number:
Unfinished Square Footage
665 Sq. Ft.
Garage:
GARAGE
Front
Garage Location:
3
Garage Size:
Exterior Style
Cottage
Craftsman
Traditional
Collections
Luxury
Old House Classics
Open Floor Plan
PDFs Fast!
Foundation
Basement
Crawlspace
Stem Wall Slab Foundation-Included
Framing Information
Stick
Roof Framing:
2x6
Exterior Wall Framing:
Roof Pitch
10/12
Primary:
Roof Load
25
Live:
15
Dead:
80
Wind:
Insulation (R)
Per IRC Climate Zones
House And Ceiling Heights
Varies
First Floor Ceiling:
Varies
Second Floor Ceiling:
31' 0"
Maximum House Height:
Key Features
2 Story Volume
Attached
Basement
Covered Rear Porch
Crawlspace
Dining Room
Double Vanity Sink
Fireplace
Foyer
Front Porch
Front-entry
Great Room
Kitchen Island
Laundry 1st Fl
Loft / Balcony
Primary Bdrm Upstairs
Nook / Breakfast Area
Open Floor Plan
Separate Tub and Shower
Slab
Suited for corner lot
Suited for narrow lot
Suited for view lot
Tandem
Vaulted Ceilings
Walk-in Closet
Walk-in Pantry

Our Guarantees

  • Only the highest quality plans
  • Int’l Residential Code Compliant
  • Full structural details on all plans
  • Best plan price guarantee
  • Free modification Estimates
  • Builder-ready construction drawings
  • Expert advice from leading designers
  •  PDFs NOW!™ plans in minutes
  • 100% satisfaction guarantee
  • Free Home Building Organizer