20% Off House Plans Sitewide Ends Sunday
20% Off House Plans Sitewide Ends Sunday

House Plan: DFD-2954

See All 2 Photos > (photographs may reflect modified homes)
© copyright by designer
SQ FT
2,962
BEDS
4
BATHS
3.5
STORIES
2
CARS
2
HOUSE PLANS SALE 
START AT  $1,156.00
For questions and help, live chat, email or call us at 877-895-5299
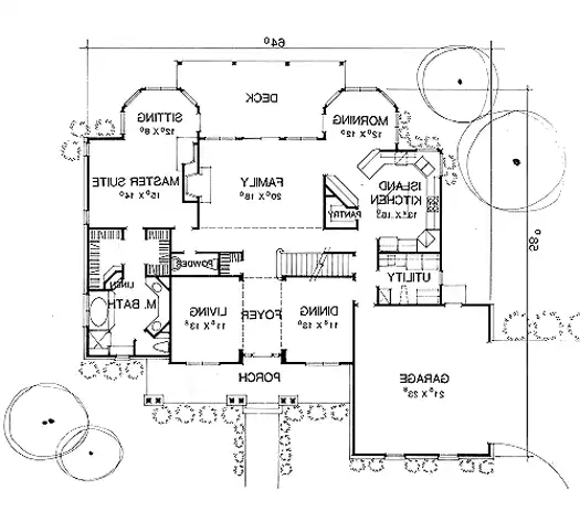
Floor Plans
Click to Zoom In on Floor Plan
 
House Plan 2954
House Plan Pricing
STEP 1 Select Your Package

PDF Single Build


Digital plans emailed to you in PDF format that allows for printing copies and sharing electronically with contractors, subs, decorators, and more. This package includes a license to build the home one time.

PDF Single Build $1,445
Most recommended package

CAD + PDF Single Build


CAD files are a complete set of construction drawings delivered electronically. They can be used for any type of modification—including major design changes and engineering—and include a release granting permission to modify the plan. Most CAD plan orders are emailed the same or next business day.
 
This package also comes with a PDF set of plans and a copyright release for making modifications and printing unlimited copies.
 
CAD files are provided in .dwg format. For details on the specific CAD program used, please refer to the PLAN DETAILS section located above the floor plan on each plan’s page.

CAD + PDF Single Build $2,445

States N/A: TX,NM,LA,AR
2D electronic editable computer files
STEP 2 Need To Reverse This Plan?
STEP 3 CHOOSE YOUR FOUNDATION
STEP 4 OPTIONAL ADD-ONS
Subtotal:
$1445
FREE SHIPPING
IMPORTANT NOTE: Due to state regulations, the CAD version may not be sold to residents of AL, TN, TX, NM and LA. If residing in any of the aforementioned states, the PDF version does not come with a release to make plan modifications. Modifications can be provided by the original architect. Please contact us for more information.
 
Plan Details
See All Details
Finished Square Footage
2,046 Sq. Ft.
Main Level:
916 Sq. Ft.
Upper Level:
2,962 Sq. Ft.
Total:
Room Details
4
Bedrooms:
3
Full Baths:
1
Half Baths:
General House Information
2
Number of Stories:
64' 11"
Width:
63' 0"
Depth:
Single
Dwelling Number:
None
Bonus Access:
Unfinished Square Footage
516 Sq. Ft.
Garage:
195 Sq. Ft.
Porch:
275 Sq. Ft.
Deck:
GARAGE
Side
Garage Location:
2
Garage Size:
Exterior Style
Country
Farmhouse
Southern
Traditional
Collections
Kitchens
Primary Suites
Old House Classics
Open Floor Plan
Outdoor Living
Foundation
Basement
Crawl Space
Slab
Framing Information
Stick
Roof Framing:
2x4
Exterior Wall Framing:
Roof Pitch
12/12
Primary:
9/12
Secondary:
6.6/12
Teritary:
9/12
Dormer:
3.5/12
Porch:
Roof Load
20
Live:
10
Dead:
Insulation (R)
13
Exterior Wall:
0
Interior Wall:
30
Ceiling:
0
Floor:
House And Ceiling Heights
9/11/Slp
First Floor Ceiling:
8
Second Floor Ceiling:
26' 6"
Maximum House Height:
Facade
Brick/Siding
Key Features
Attached
Crawlspace
Daylight Basement
Front Porch
Side-entry
Slab
Suited for corner lot
Suited for view lot

Our Guarantees

  • Only the highest quality plans
  • Int’l Residential Code Compliant
  • Full structural details on all plans
  • Best plan price guarantee
  • Free modification Estimates
  • Builder-ready construction drawings
  • Expert advice from leading designers
  •  PDFs NOW!™ plans in minutes
  • 100% satisfaction guarantee
  • Free Home Building Organizer