20% off ALL House Plans Sitewide
20% off ALL House Plans Sitewide

House Plan: DFD-3034

See All 6 Photos > (photographs may reflect modified homes)
© copyright by designer
SQ FT
1,200
BEDS
2
BATHS
2
STORIES
1
CARS
2
HOUSE PLANS SALE 
START AT  $720.00
For questions and help, live chat, email or call us at 877-895-5299
Floor Plans
Click to Zoom In on Floor Plan
 
About House Plan 3034:
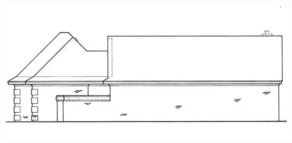
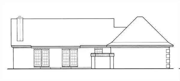
Designed especially as a patio home, this super energy saving design has a windowless side so that it can also be used in zero lot line developments. The living space is open and spacious with soaring sloped ceilings. The living room also has an energy efficient wood burning fireplace. An intimate garden provides the perfect setting for the main entrance and a side patio is perfect for entertaining. The kitchen is sizeable and features a floor to ceiling pantry and an eating bar.
House Plan Pricing
STEP 1 Select Your Package

PDF Bid Set


Home plans stamped "NOT FOR CONSTRUCTION" for cost estimating and bidding purposes only; a minimum 5 set plan package must be purchased within 90 days for a license to build plan set; a credit will be applied towards your house plan upgrade

PDF Bid Set $700
Immediate Delivery!
Digital set of plans for bidding purposes only

PDF Single Build


Digital plans emailed to you in PDF format that allows for printing copies and sharing electronically with contractors, subs, decorators, and more. This package includes a license to build the home one time.

PDF Single Build $900
Immediate Delivery!
Most recommended package

4 Printed Sets


Four printed sets of construction drawings shipped and received in 3-5 business days

4 Printed Sets $1,005
Four printed sets of house plans

5 Printed Sets


Five Printed Sets of Residential Construction Drawings are typically 24” x 36” documents and come with a license to construct a single residence shipped to a physical address. Keep in mind PDF Plan Packages are our most popular choice which allows you to print as many copies as you need and to electronically send files to your builder, subcontractors, etc.

5 Printed Sets $1,050
Five printed sets of house plans

8 Printed Sets


Eight Printed Sets of Construction Drawings, typically 24” x 36” documents, with a license to construct a single residence shipped to your physical address. PDF Plan Packages are our most popular choice which allows you to print as many copies as you need and to electronically send files to your builder, subcontractors, bank/mortgage reps, material stores, decorators and more.

8 Printed Sets $1,110
Eight printed sets of house plans

CAD + PDF Single Build


CAD files are a complete set of construction drawings delivered electronically. They can be used for any type of modification—including major design changes and engineering—and include a release granting permission to modify the plan. Most CAD plan orders are emailed the same or next business day.
 
This package also comes with a PDF set of plans and a copyright release for making modifications and printing unlimited copies.
 
CAD files are provided in .dwg format. For details on the specific CAD program used, please refer to the PLAN DETAILS section located above the floor plan on each plan’s page.

CAD + PDF Single Build $1,600
2D electronic editable computer files
STEP 2 CHOOSE YOUR FOUNDATION
STEP 3 OPTIONAL ADD-ONS
Subtotal:
$900
FREE SHIPPING
 
Plan Details
See All Details
Finished Square Footage
1,200 Sq. Ft.
Total:
Room Details
2
Bedrooms:
2
Full Baths:
General House Information
1
Number of Stories:
40' 0"
Width:
60' 0"
Depth:
Single
Dwelling Number:
Unfinished Square Footage
448 Sq. Ft.
Garage:
40 Sq. Ft.
Storage:
40 Sq. Ft.
Porch:
GARAGE
Front
Garage Location:
2
Garage Size:
Exterior Style
Cottage
Traditional
Collections
Affordable
Exclusive
First Home
Old House Classics
Foundation
Concrete Slab Foundation
Optional Crawl Space Foundation
Framing Information
Stick
Roof Framing:
2x6
Exterior Wall Framing:
Roof Pitch
7/12
Primary:
Insulation (R)
19
Exterior Wall:
0
Interior Wall:
38
Ceiling:
19
Floor:
House And Ceiling Heights
8
First Floor Ceiling:
23' 0"
Maximum House Height:
Facade
Brick
Key Features
Attached
Breezeway
Country Kitchen
Courtyard
Covered Front Porch
Crawlspace
Fireplace
Foyer
Front-entry
Open Floor Plan
Slab
Suited for narrow lot

Our Guarantees

  • Only the highest quality plans
  • Int’l Residential Code Compliant
  • Full structural details on all plans
  • Best plan price guarantee
  • Free modification Estimates
  • Builder-ready construction drawings
  • Expert advice from leading designers
  •  PDFs NOW!™ plans in minutes
  • 100% satisfaction guarantee
  • Free Home Building Organizer

See terms opt out anytime