17% off ALL House Plans Sitewide
17% off ALL House Plans Sitewide

House Plan: DFD-3239

See All 6 Photos > (photographs may reflect modified homes)
© copyright by designer
SQ FT
1,488
BEDS
3
BATHS
2
STORIES
1
CARS
2
HOUSE PLANS SALE 
START AT  $1,245.00
For questions and help, live chat, email or call us at 877-895-5299
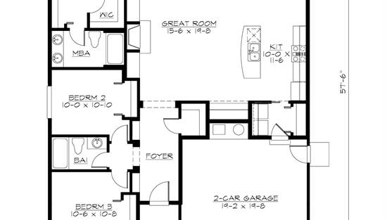
Floor Plans
Click to Zoom In on Floor Plan
 
About House Plan 3239:
Beyond the classically proportioned exterior, its easy to see that the Gallatin is all about practicality. Thoughtful details like the generously-sized open family living space with its handy computer desk, the large dining area with huge kitchen eating island, the spacious covered rear BBQ porch, the private laundry room, and the master suite located far away from the secondary bedrooms are evidence that it was designed for both convenience and privacy. The Gallatin is an ideal plan for families and empty nesters.
House Plan Pricing
STEP 1 Select Your Package

PDF Single Build


Digital plans emailed to you in PDF format that allows for printing copies and sharing electronically with contractors, subs, decorators, and more. This package includes a license to build the home one time.

PDF Single Build $1,500
Most recommended package

CAD + PDF Unlimited Build


CAD files are a complete set of construction drawings delivered electronically. They can be used for any type of modification—including major design changes and engineering—and include a release granting permission to modify the plan. Most CAD plan orders are emailed the same or next business day.
 
This package also comes with a PDF set of plans and a multi-use building license, granting permission to construct the home an unlimited number of times, along with a copyright release for making modifications and printing unlimited copies.
 
CAD files are provided in .dwg format. For details on the specific CAD program used, please refer to the PLAN DETAILS section located above the floor plan on each plan’s page.

CAD + PDF Unlimited Build $2,600
2D electronic editable computer files
STEP 2 Need To Reverse This Plan?
STEP 3 CHOOSE YOUR FOUNDATION
STEP 4 OPTIONAL ADD-ONS
Subtotal:
$1500
FREE SHIPPING
IMPORTANT NOTE: Due to state regulations, this home is not available for purchase in the State of Washington. Contact us for more information.

Note: This plan cannot be purchased for construction in Washington State.
 
Plan Details
See All Details
Finished Square Footage
1,488 Sq. Ft.
Main Level:
1,488 Sq. Ft.
Total:
Room Details
3
Bedrooms:
2
Full Baths:
General House Information
1
Number of Stories:
40' 0"
Width:
57' 6"
Depth:
Single
Dwelling Number:
Unfinished Square Footage
410 Sq. Ft.
Garage:
GARAGE
Front
Garage Location:
2
Garage Size:
Exterior Style
Cape Cod
Cottage
Craftsman
Traditional
Collections
Affordable
First Home
Old House Classics
Open Floor Plan
Split Bedroom
Foundation
Crawl Space
Framing Information
Truss
Roof Framing:
2x6
Exterior Wall Framing:
Roof Pitch
6
Primary:
Roof Load
25
Live:
15
Dead:
85
Wind:
Insulation (R)
21
Exterior Wall:
0
Interior Wall:
38
Ceiling:
30
Floor:
House And Ceiling Heights
9
First Floor Ceiling:
19' 6"
Maximum House Height:
Key Features
Attached
Covered Rear Porch
Crawlspace
Double Vanity Sink
Fireplace
Foyer
Front-entry
Great Room
His and Hers Primary Closets
Kitchen Island
Laundry 1st Fl
Primary Bdrm Main Floor
Nook / Breakfast Area
Open Floor Plan
Rear Porch
Split Bedrooms
Suited for narrow lot
Walk-in Closet

Our Guarantees

  • Only the highest quality plans
  • Int’l Residential Code Compliant
  • Full structural details on all plans
  • Best plan price guarantee
  • Free modification Estimates
  • Builder-ready construction drawings
  • Expert advice from leading designers
  •  PDFs NOW!™ plans in minutes
  • 100% satisfaction guarantee
  • Free Home Building Organizer

See terms opt out anytime