20% off ALL House Plans Sitewide
20% off ALL House Plans Sitewide

House Plan: DFD-3275

See All 2 Photos > (photographs may reflect modified homes)
© copyright by designer
SQ FT
1,655
BEDS
3
BATHS
1.5
STORIES
1
CARS
0
HOUSE PLANS SALE 
START AT  $1,932.00
For questions and help, live chat, email or call us at 877-895-5299
Floor Plans
Click to Zoom In on Floor Plan
 
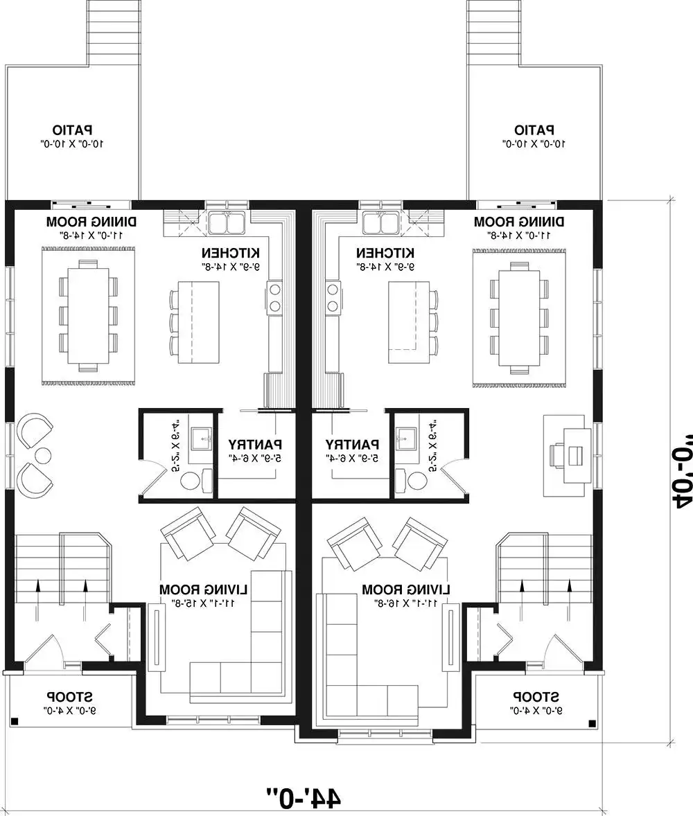
About House Plan 3275:
Discreet placement of entrances assures privacy for each unit of the semi-detached home. Handsome stone cladding and pleasing gable details further enhance this dwellings charm. The units are close to mirror images of one another. The covered split entry provides an ideal welcoming point. Upstairs, the open activities area is well-organized, with living room forward and computer area, kitchen with island eating bar and dining area facing the back. A powder room and laundry complete the main floor. Downstairs, the raised basement allows ample light for the three bedrooms. A four-piece bathroom is centrally located and a 7' x 8' storage room is sure to be appreciated.
House Plan Pricing
STEP 1 Select Your Package

PDF Single Build


Digital plans emailed to you in PDF format that allows for printing copies and sharing electronically with contractors, subs, decorators, and more. This package includes a license to build the home one time.

PDF Single Build $2,415
Most recommended package

3 sets + PDF


Please allow 3-5 days for delivery
3 sets + PDF $2,555
3 sets + PDF

CAD + PDF Single Build


CAD files are a complete set of construction drawings delivered electronically. They can be used for any type of modification—including major design changes and engineering—and include a release granting permission to modify the plan. Most CAD plan orders are emailed the same or next business day.
 
This package also comes with a PDF set of plans and a copyright release for making modifications and printing unlimited copies.
 
CAD files are provided in .dwg format. For details on the specific CAD program used, please refer to the PLAN DETAILS section located above the floor plan on each plan’s page.

CAD + PDF Single Build $3,800
2D electronic editable computer files
STEP 2 Need To Reverse This Plan?
STEP 3 CHOOSE YOUR FOUNDATION
STEP 4 OPTIONAL ADD-ONS
Subtotal:
$2415
FREE SHIPPING
Please allow 3-5 business days for delivery of this plan Please check our PDFs NOW collection for plans that can be downloaded and received immediately or live chat us to help you find a similar plan available now.
 
Plan Details
See All Details
Finished Square Footage
833 Sq. Ft.
Main Level:
833 Sq. Ft.
Lower Level:
1,655 Sq. Ft.
Total:
Room Details
3
Bedrooms:
1
Full Baths:
1
Half Baths:
General House Information
1
Number of Stories:
44' 0"
Width:
40' 0"
Depth:
Duplex
Dwelling Number:
None
Bonus Access:
Unfinished Square Footage
GARAGE
None
Garage Location:
0
Garage Size:
Exterior Style
Craftsman
European
Collections
Affordable
Builders
Canada
First Home
Luxury
Open Floor Plan
Split Level
Foundation
Finished basement (included)
Framing Information
Truss
Roof Framing:
2x6
Exterior Wall Framing:
Roof Pitch
8/12
Primary:
12/12
Secondary:
4/12
Porch:
Roof Load
55
Live:
20
Dead:
Insulation (R)
20
Exterior Wall:
0
Interior Wall:
40
Ceiling:
0
Floor:
House And Ceiling Heights
8
First Floor Ceiling:
26' 4"
Maximum House Height:
Key Features
Basement
Covered Front Porch
Daylight Basement
Double Vanity Sink
Foyer
Front Porch
Kitchen Island
None
Open Floor Plan
Peninsula / Eating Bar
Separate Tub and Shower
Storage Space
Walk-in Closet

Our Guarantees

  • Only the highest quality plans
  • Int’l Residential Code Compliant
  • Full structural details on all plans
  • Best plan price guarantee
  • Free modification Estimates
  • Builder-ready construction drawings
  • Expert advice from leading designers
  •  PDFs NOW!™ plans in minutes
  • 100% satisfaction guarantee
  • Free Home Building Organizer

See terms opt out anytime