17% off ALL House Plans Sitewide
17% off ALL House Plans Sitewide

House Plan: DFD-3443

See All 5 Photos > (photographs may reflect modified homes)
© copyright by architect
SQ FT
2,421
BEDS
4
BATHS
2.5
STORIES
1.5
CARS
2
HOUSE PLANS SALE 
START AT  $933.75
For questions and help, live chat, email or call us at 877-895-5299
Floor Plans
Click to Zoom In on Floor Plan
 
About House Plan 3443:
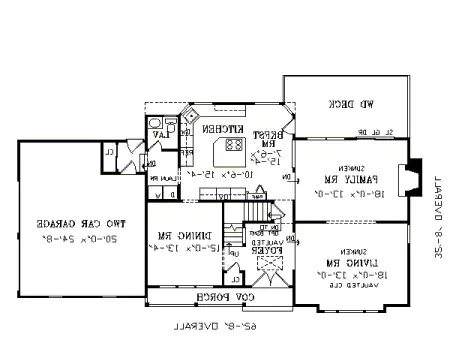
Modern rooflines and arched window treatments dress up this farmhouse-styled home. A skylit, cathedral-ceilinged foyer opens to the upper level. It is flanked by a formal dining room and a sunken living room with cathedral ceiling. Merging with the living room is a sunken family room with a huge fireplace and sliders that access an attached rear deck.
A large island kitchen adjoins a breakfast area with a rear deck view and a pantry. A nearby half-bath and a laundry room buffer the garage entrance.
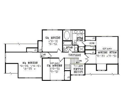
The upper level houses the large master bedroom with a cathedral ceiling and large dressing area. The private bath features a circular tub, separate shower and skylit vanity area.

Three additional bedrooms and a second full bath complete this level.
House Plan Pricing
STEP 1 Select Your Package

PDF Bid Set


Home plans stamped "NOT FOR CONSTRUCTION" for cost estimating and bidding purposes only; a minimum 5 set plan package must be purchased within 90 days for a license to build plan set; a credit will be applied towards your house plan upgrade

PDF Bid Set $825
Immediate Delivery!
Digital set of plans for bidding purposes only

PDF Single Build


Digital plans emailed to you in PDF format that allows for printing copies and sharing electronically with contractors, subs, decorators, and more. This package includes a license to build the home one time.

PDF Single Build $1,125
Immediate Delivery!
Most recommended package

5 Printed Sets


Five Printed Sets of Residential Construction Drawings are typically 24” x 36” documents and come with a license to construct a single residence shipped to a physical address. Keep in mind PDF Plan Packages are our most popular choice which allows you to print as many copies as you need and to electronically send files to your builder, subcontractors, etc.

5 Printed Sets $1,236
Five printed sets of house plans

8 Printed Sets


Eight Printed Sets of Construction Drawings, typically 24” x 36” documents, with a license to construct a single residence shipped to your physical address. PDF Plan Packages are our most popular choice which allows you to print as many copies as you need and to electronically send files to your builder, subcontractors, bank/mortgage reps, material stores, decorators and more.

8 Printed Sets $1,310
Eight printed sets of house plans
STEP 2 CHOOSE YOUR FOUNDATION
STEP 3 OPTIONAL ADD-ONS
Subtotal:
$1125
FREE SHIPPING
 
Plan Details
See All Details
Finished Square Footage
1,240 Sq. Ft.
Main Level:
1,181 Sq. Ft.
Upper Level:
2,421 Sq. Ft.
Total:
Room Details
4
Bedrooms:
2
Full Baths:
1
Half Baths:
General House Information
1.5
Number of Stories:
62' 8"
Width:
32' 8"
Depth:
Single
Dwelling Number:
Unfinished Square Footage
470 Sq. Ft.
Garage:
GARAGE
Side
Garage Location:
2
Garage Size:
Exterior Style
Country
Farmhouse
Traditional
Collections
Exclusive
Old House Classics
Foundation
Basement
Crawl Space
Slab Foundation
Framing Information
Stick
Roof Framing:
2x4
Exterior Wall Framing:
Roof Pitch
11/12
Primary:
8-1/2: 12
Secondary:
Roof Load
30
Live:
10
Dead:
Insulation (R)
13
Exterior Wall:
0
Interior Wall:
30
Ceiling:
19
Floor:
House And Ceiling Heights
8'-1"
First Floor Ceiling:
8'-1"
Second Floor Ceiling:
31' 0"
Maximum House Height:
Facade
Owner's Choice
OwnersChoice
Key Features
2 & 1/2 Baths
2 Story Volume
4 Bedrooms
Attached
Basement
Country Kitchen
Covered Front Porch
Crawlspace
Deck
Dining Room
Double Vanity Sink
Family Room
Fireplace
Formal Dining Room
Formal LR
Kitchen Island
Laundry 1st Fl
Loft / Balcony
Primary Bdrm Upstairs
Primary Suite
Mud Room
Nook / Breakfast Area
Separate Living / Family Room
Separate Tub and Shower
Slab
Storage Space
Vaulted Ceilings
Vaulted Foyer
Vaulted Living Room

Our Guarantees

  • Only the highest quality plans
  • Int’l Residential Code Compliant
  • Full structural details on all plans
  • Best plan price guarantee
  • Free modification Estimates
  • Builder-ready construction drawings
  • Expert advice from leading designers
  •  PDFs NOW!™ plans in minutes
  • 100% satisfaction guarantee
  • Free Home Building Organizer

See terms opt out anytime