17% off ALL House Plans Sitewide
17% off ALL House Plans Sitewide

House Plan: DFD-3683

See All 2 Photos > (photographs may reflect modified homes)
© copyright by designer
SQ FT
2,100
BEDS
3
BATHS
2.5
STORIES
1.5
CARS
2
HOUSE PLANS SALE 
START AT  $913.00
For questions and help, live chat, email or call us at 877-895-5299
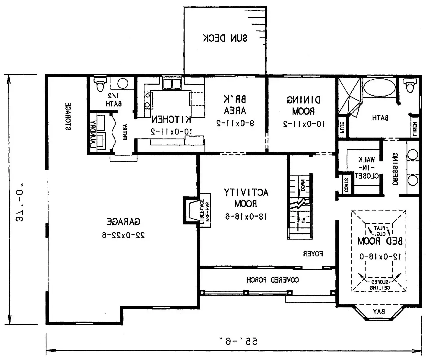
Floor Plans
Click to Zoom In on Floor Plan
 
About House Plan 3683:
A sheltering covered front porch is instrumental in the appeal of this country style home, with a warm rural feel. Entry is into a central corridor, which feeds the first floor. Read a good book by the central fireplace in the great room. Direct passage is into the breakfast room and kitchen area of the home. The kitchen includes abundant cabinets and counter space, and the breakfast room is a bright informal area. Nearby is the formal dining room, which is positioned for privacy. Also included in this area, and placed for convenience, are a half bath and a laundry room. Access to the oversized double garage is adjacent and the garage includes lots of storage. The master bedroom is on the first floor, providing splendid isolation for the homeowner. A tray ceiling provides definition, and a sitting bay enhances the room. A sunlit spa tub is the highlight of the garden bath, which also includes a double vanity, separate shower and linen storage. A generous walk-in closet is alongside. Upstairs are two family bedrooms and an incredible bonus room. Imagine the possibilities for this room, from studio to storage. A central bath services the second floor. Arch top dormer windows and a bay window creating a quaint image emphasize a multitude of gable roof lines.


House Plan Pricing
STEP 1 Select Your Package

PDF Single Build


Digital plans emailed to you in PDF format that allows for printing copies and sharing electronically with contractors, subs, decorators, and more. This package includes a license to build the home one time.

PDF Single Build $1,100
Most recommended package
STEP 2 Need To Reverse This Plan?
STEP 3 CHOOSE YOUR FOUNDATION
STEP 4 OPTIONAL ADD-ONS
Subtotal:
$1100
FREE SHIPPING
 
Plan Details
See All Details
Finished Square Footage
1,227 Sq. Ft.
Main Level:
456 Sq. Ft.
Upper Level:
2,100 Sq. Ft.
Total:
Room Details
3
Bedrooms:
2
Full Baths:
1
Half Baths:
General House Information
1.5
Number of Stories:
55' 6"
Width:
37' 0"
Depth:
Single
Dwelling Number:
2nd Floor
Bonus Access:
Unfinished Square Footage
612 Sq. Ft.
Garage:
81 Sq. Ft.
Porch:
120 Sq. Ft.
Deck:
421 Sq. Ft.
Bonus Room:
GARAGE
Side
Garage Location:
2
Garage Size:
Exterior Style
Cape Cod
Cottage
Country
Collections
Builders
Empty Nester
Exclusive
Old House Classics
Foundation
Basement
Framing Information
Stick
Roof Framing:
2x4
Exterior Wall Framing:
Roof Pitch
12/12
Primary:
Roof Load
20
Live:
10
Dead:
80
Wind:
Insulation (R)
17
Exterior Wall:
0
Interior Wall:
30
Ceiling:
13
Floor:
House And Ceiling Heights
9
First Floor Ceiling:
8
Second Floor Ceiling:
29' 0"
Maximum House Height:
Key Features
Attached
Basement
Bonus Room
Country Kitchen
Covered Front Porch
Deck
Dining Room
Double Vanity Sink
Fireplace
Foyer
Front Porch
Great Room
Laundry 1st Fl
Primary Bdrm Main Floor
Nook / Breakfast Area
Separate Tub and Shower
Side-entry
Storage Space
Vaulted Ceilings
Walk-in Closet
Walkout Basement

Our Guarantees

  • Only the highest quality plans
  • Int’l Residential Code Compliant
  • Full structural details on all plans
  • Best plan price guarantee
  • Free modification Estimates
  • Builder-ready construction drawings
  • Expert advice from leading designers
  •  PDFs NOW!™ plans in minutes
  • 100% satisfaction guarantee
  • Free Home Building Organizer