20% Off House Plans Sitewide Ends Sunday
20% Off House Plans Sitewide Ends Sunday

House Plan: DFD-3721

See All 4 Photos > (photographs may reflect modified homes)
© copyright by architect
SQ FT
2,638
BEDS
4
BATHS
2.5
STORIES
2
CARS
2
HOUSE PLANS SALE 
START AT  $924.00
For questions and help, live chat, email or call us at 877-895-5299
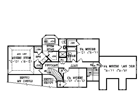
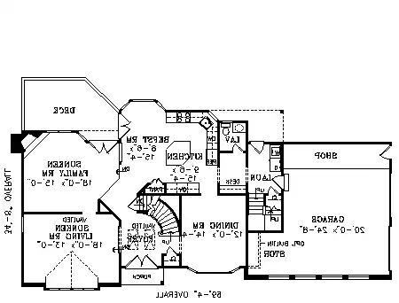
Floor Plans
Click to Zoom In on Floor Plan
 
About House Plan 3721:
This luxurious home features a rear staircase and dramatic angles. The sunken living room includes a vaulted ceiling. The adjacent sunken family room has a delightful corner fireplace and doors to a rear deck. The enormous island kitchen faces the adjoining breakfast room, with a pair of doors to the deck. This entire informal area is designed wide open with sweeping views of the rear. The master suite has a great,compartmented, master bath with a vaulted ceiling, three walk-in closets and a dressing alcove.
House Plan Pricing
STEP 1 Select Your Package

PDF Bid Set


Home plans stamped "NOT FOR CONSTRUCTION" for cost estimating and bidding purposes only; a minimum 5 set plan package must be purchased within 90 days for a license to build plan set; a credit will be applied towards your house plan upgrade

PDF Bid Set $875
Immediate Delivery!
Digital set of plans for bidding purposes only

PDF Single Build


Digital plans emailed to you in PDF format that allows for printing copies and sharing electronically with contractors, subs, decorators, and more. This package includes a license to build the home one time.

PDF Single Build $1,155
Immediate Delivery!
Most recommended package

5 Printed Sets


Five Printed Sets of Residential Construction Drawings are typically 24” x 36” documents and come with a license to construct a single residence shipped to a physical address. Keep in mind PDF Plan Packages are our most popular choice which allows you to print as many copies as you need and to electronically send files to your builder, subcontractors, etc.

5 Printed Sets $1,265
Five printed sets of house plans

8 Printed Sets


Eight Printed Sets of Construction Drawings, typically 24” x 36” documents, with a license to construct a single residence shipped to your physical address. PDF Plan Packages are our most popular choice which allows you to print as many copies as you need and to electronically send files to your builder, subcontractors, bank/mortgage reps, material stores, decorators and more.

8 Printed Sets $1,340
Eight printed sets of house plans
STEP 2 CHOOSE YOUR FOUNDATION
STEP 3 OPTIONAL ADD-ONS
Subtotal:
$1155
FREE SHIPPING
 
Plan Details
See All Details
Finished Square Footage
1,371 Sq. Ft.
Main Level:
1,267 Sq. Ft.
Upper Level:
2,638 Sq. Ft.
Total:
Room Details
4
Bedrooms:
2
Full Baths:
1
Half Baths:
General House Information
2
Number of Stories:
69' 4"
Width:
34' 8"
Depth:
Single
Dwelling Number:
Unfinished Square Footage
581 Sq. Ft.
Garage:
GARAGE
Side
Garage Location:
2
Garage Size:
Exterior Style
Contemporary
Modern
Collections
Exclusive
Mountain
Foundation
Basement
Crawl Space
Slab Foundation
Framing Information
Stick
Roof Framing:
2x4
Exterior Wall Framing:
Roof Pitch
8-1/2: 12
Primary:
Roof Load
30
Live:
10
Dead:
Insulation (R)
13
Exterior Wall:
0
Interior Wall:
30
Ceiling:
19
Floor:
House And Ceiling Heights
8'-1"
First Floor Ceiling:
8'-1"
Second Floor Ceiling:
27' 8"
Maximum House Height:
Facade
Owner's Choice
OwnersChoice
Key Features
2 Story Volume
Attached
Basement
Covered Front Porch
Crawlspace
Deck
Dining Room
Double Vanity Sink
Family Room
Fireplace
Formal LR
His and Hers Primary Closets
Kitchen Island
Laundry 1st Fl
Loft / Balcony
Primary Bdrm Upstairs
Mud Room
Nook / Breakfast Area
Rec Room
Separate Tub and Shower
Slab
Vaulted Ceilings
Walk-in Closet

Our Guarantees

  • Only the highest quality plans
  • Int’l Residential Code Compliant
  • Full structural details on all plans
  • Best plan price guarantee
  • Free modification Estimates
  • Builder-ready construction drawings
  • Expert advice from leading designers
  •  PDFs NOW!™ plans in minutes
  • 100% satisfaction guarantee
  • Free Home Building Organizer