20% Off House Plans Sitewide Ends Sunday
20% Off House Plans Sitewide Ends Sunday

House Plan: DFD-3872

See All 3 Photos > (photographs may reflect modified homes)
© copyright by designer
SQ FT
1,619
BEDS
3
BATHS
2
STORIES
1.5
CARS
1
HOUSE PLANS SALE 
START AT  $752.00
For questions and help, live chat, email or call us at 877-895-5299
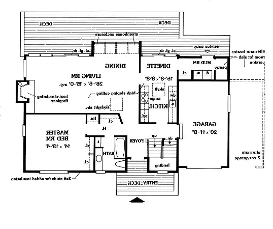
Floor Plans
Click to Zoom In on Floor Plan
 
About House Plan 3872:
A south-facing window wall , greenhouse enclosure, and vaulted ceiling are among the passive solar ideas incorporated into this home. Whether intended for leisure use or year round occupancy, the interior is delightful. Note the first floor master suite, the huge great room, and skylit eat-in kitchen.
House Plan Pricing
STEP 1 Select Your Package

PDF Bid Set


Home plans stamped "NOT FOR CONSTRUCTION" for cost estimating and bidding purposes only; a minimum 5 set plan package must be purchased within 90 days for a license to build plan set; a credit will be applied towards your house plan upgrade

PDF Bid Set $710
Immediate Delivery!
Digital set of plans for bidding purposes only

PDF Single Build


Digital plans emailed to you in PDF format that allows for printing copies and sharing electronically with contractors, subs, decorators, and more. This package includes a license to build the home one time.

PDF Single Build $940
Immediate Delivery!
Most recommended package

5 Printed Sets


Five Printed Sets of Residential Construction Drawings are typically 24” x 36” documents and come with a license to construct a single residence shipped to a physical address. Keep in mind PDF Plan Packages are our most popular choice which allows you to print as many copies as you need and to electronically send files to your builder, subcontractors, etc.

5 Printed Sets $1,050
Five printed sets of house plans

8 Printed Sets


Eight Printed Sets of Construction Drawings, typically 24” x 36” documents, with a license to construct a single residence shipped to your physical address. PDF Plan Packages are our most popular choice which allows you to print as many copies as you need and to electronically send files to your builder, subcontractors, bank/mortgage reps, material stores, decorators and more.

8 Printed Sets $1,125
Eight printed sets of house plans
STEP 2 CHOOSE YOUR FOUNDATION
STEP 3 OPTIONAL ADD-ONS
Subtotal:
$940
FREE SHIPPING
 
Plan Details
See All Details
Finished Square Footage
1,100 Sq. Ft.
Main Level:
519 Sq. Ft.
Upper Level:
1,619 Sq. Ft.
Total:
Room Details
3
Bedrooms:
2
Full Baths:
General House Information
1.5
Number of Stories:
48' 6"
Width:
31' 4"
Depth:
Single
Dwelling Number:
Unfinished Square Footage
234 Sq. Ft.
Garage:
38 Sq. Ft.
Storage:
GARAGE
Side
Garage Location:
1
Garage Size:
Exterior Style
Beach
Contemporary
Modern
Collections
Empty Nester
Mountain
Old House Classics
Vacation
Foundation
Basement
Crawl Space
Slab Foundation
Framing Information
Stick
Roof Framing:
2x6
Exterior Wall Framing:
Roof Pitch
7/12
Primary:
Roof Load
30
Live:
7
Dead:
Insulation (R)
19
Exterior Wall:
0
Interior Wall:
38
Ceiling:
19
Floor:
House And Ceiling Heights
8'-1"
First Floor Ceiling:
8'-1"
Second Floor Ceiling:
24' 0"
Maximum House Height:
Facade
Owner's Choice
OwnersChoice
Key Features
Attached
Basement
Country Kitchen
Crawlspace
Deck
Fireplace
Foyer
Front Porch
Front-entry
Great Room
Laundry 1st Fl
Loft / Balcony
Primary Bdrm Main Floor
Mud Room
Nook / Breakfast Area
Slab
Storage Space
Suited for narrow lot
Suited for view lot
Vaulted Ceilings

Our Guarantees

  • Only the highest quality plans
  • Int’l Residential Code Compliant
  • Full structural details on all plans
  • Best plan price guarantee
  • Free modification Estimates
  • Builder-ready construction drawings
  • Expert advice from leading designers
  •  PDFs NOW!™ plans in minutes
  • 100% satisfaction guarantee
  • Free Home Building Organizer