20% off ALL House Plans Sitewide
20% off ALL House Plans Sitewide

House Plan: DFD-3907

See All 3 Photos > (photographs may reflect modified homes)
© copyright by designer
SQ FT
1,476
BEDS
4
BATHS
2
STORIES
1
CARS
0
HOUSE PLANS SALE 
START AT  $696.00
For questions and help, live chat, email or call us at 877-895-5299
Floor Plans
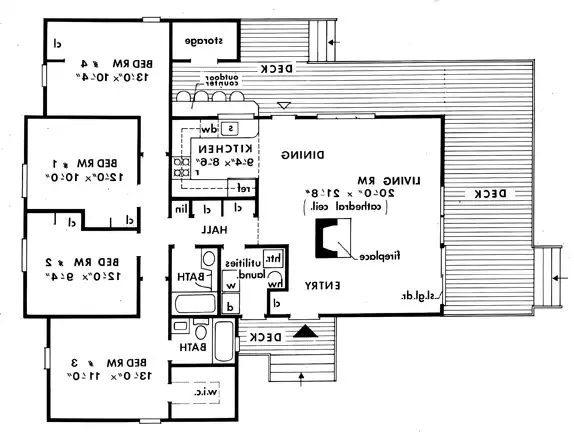
Click to Zoom In on Floor Plan
 
About House Plan 3907:
This contemporary beach or lake front vacation home is designed to be built in 4 stages if you so choose. When complete it provides for 4 bedrooms, two full baths and a great activity area. The kitchen features an outdoor serving counter to the rear deck. The great room has a soaring vaulted ceiling, a large fireplace and access to the three decks. Circulation is beautiful with very defined areas, leaving the home ideal for furnishing. Although designed on a pier foundation you could build it with a basement if desired.
House Plan Pricing
STEP 1 Select Your Package

PDF Bid Set


Home plans stamped "NOT FOR CONSTRUCTION" for cost estimating and bidding purposes only; a minimum 5 set plan package must be purchased within 90 days for a license to build plan set; a credit will be applied towards your house plan upgrade

PDF Bid Set $640
Immediate Delivery!
Digital set of plans for bidding purposes only

PDF Single Build


Digital plans emailed to you in PDF format that allows for printing copies and sharing electronically with contractors, subs, decorators, and more. This package includes a license to build the home one time.

PDF Single Build $870
Immediate Delivery!
Most recommended package

5 Printed Sets


Five Printed Sets of Residential Construction Drawings are typically 24” x 36” documents and come with a license to construct a single residence shipped to a physical address. Keep in mind PDF Plan Packages are our most popular choice which allows you to print as many copies as you need and to electronically send files to your builder, subcontractors, etc.

5 Printed Sets $980
Five printed sets of house plans

8 Printed Sets


Eight Printed Sets of Construction Drawings, typically 24” x 36” documents, with a license to construct a single residence shipped to your physical address. PDF Plan Packages are our most popular choice which allows you to print as many copies as you need and to electronically send files to your builder, subcontractors, bank/mortgage reps, material stores, decorators and more.

8 Printed Sets $1,055
Eight printed sets of house plans
STEP 2 CHOOSE YOUR FOUNDATION
STEP 3 OPTIONAL ADD-ONS
Subtotal:
$870
FREE SHIPPING
 
Plan Details
See All Details
Finished Square Footage
1,476 Sq. Ft.
Main Level:
1,476 Sq. Ft.
Total:
Room Details
4
Bedrooms:
2
Full Baths:
General House Information
1
Number of Stories:
45' 8"
Width:
44' 4"
Depth:
Single
Dwelling Number:
Unfinished Square Footage
496 Sq. Ft.
Deck:
GARAGE
0
Garage Size:
Exterior Style
Beach
Contemporary
Modern
Collections
Exclusive
Open Floor Plan
Outdoor Living
Vacation
Foundation
Pier Foundation
Framing Information
Stick
Roof Framing:
2x4
Exterior Wall Framing:
Roof Pitch
4.5/12
Primary:
Roof Load
30
Live:
10
Dead:
Insulation (R)
Per IRC Climate Zones
House And Ceiling Heights
8.1
First Floor Ceiling:
16' 0"
Maximum House Height:
Key Features
Deck
Fireplace
Foyer
Great Room
Nook / Breakfast Area
Open Floor Plan
Peninsula / Eating Bar
Pier
Vaulted Ceilings
Walk-in Closet
Wraparound Porch

Our Guarantees

  • Only the highest quality plans
  • Int’l Residential Code Compliant
  • Full structural details on all plans
  • Best plan price guarantee
  • Free modification Estimates
  • Builder-ready construction drawings
  • Expert advice from leading designers
  •  PDFs NOW!™ plans in minutes
  • 100% satisfaction guarantee
  • Free Home Building Organizer