15% off ALL House Plans Sitewide

House Plan: DFD-4241

See All 2 Photos > (photographs may reflect modified homes)
© copyright by designer
SQ FT
2,758
BEDS
4
BATHS
2
STORIES
1
CARS
1
HOUSE PLANS SALE 
START AT  $1,870.00
For questions and help, live chat, email or call us at 877-895-5299
Floor Plans
Click to Zoom In on Floor Plan
 
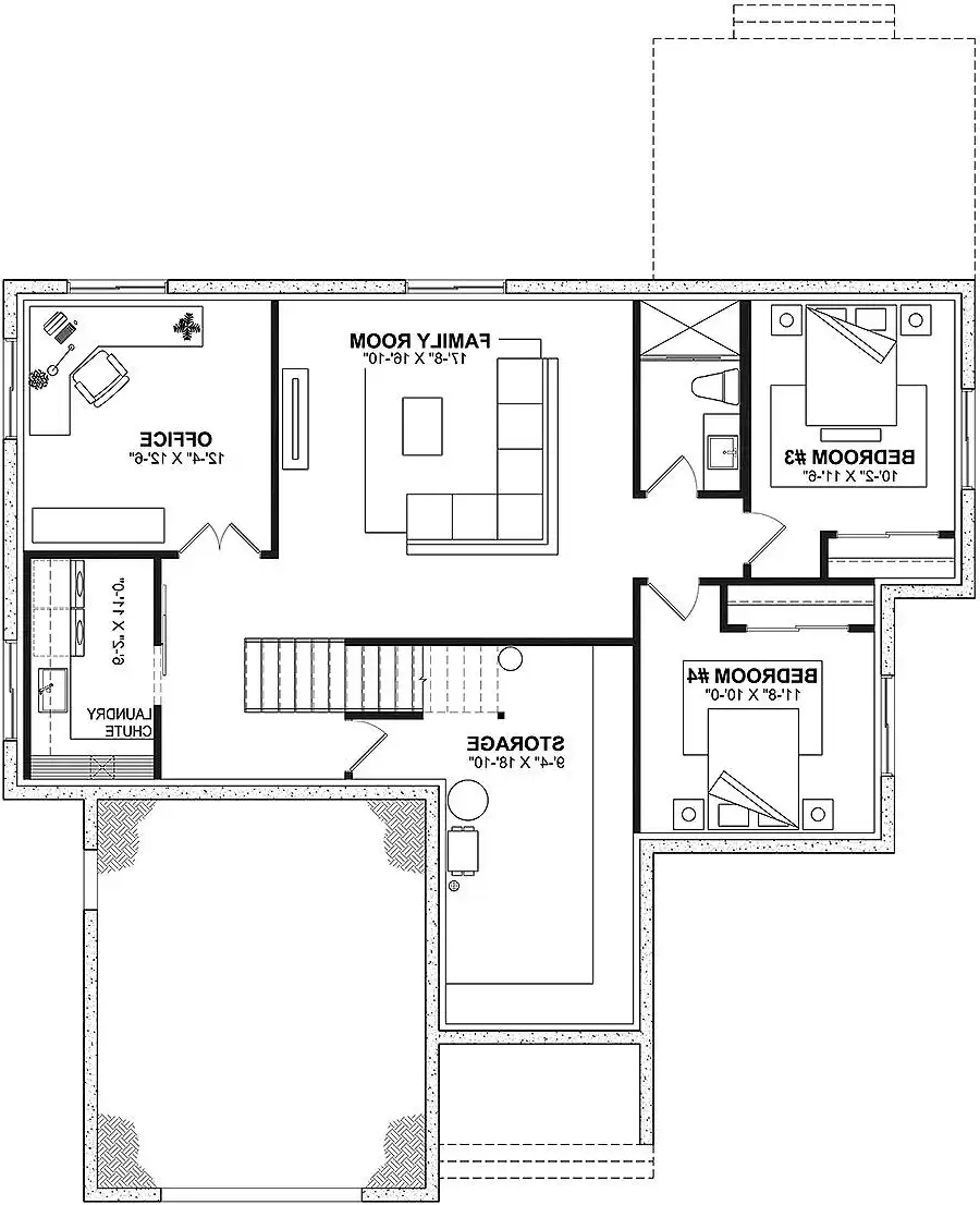
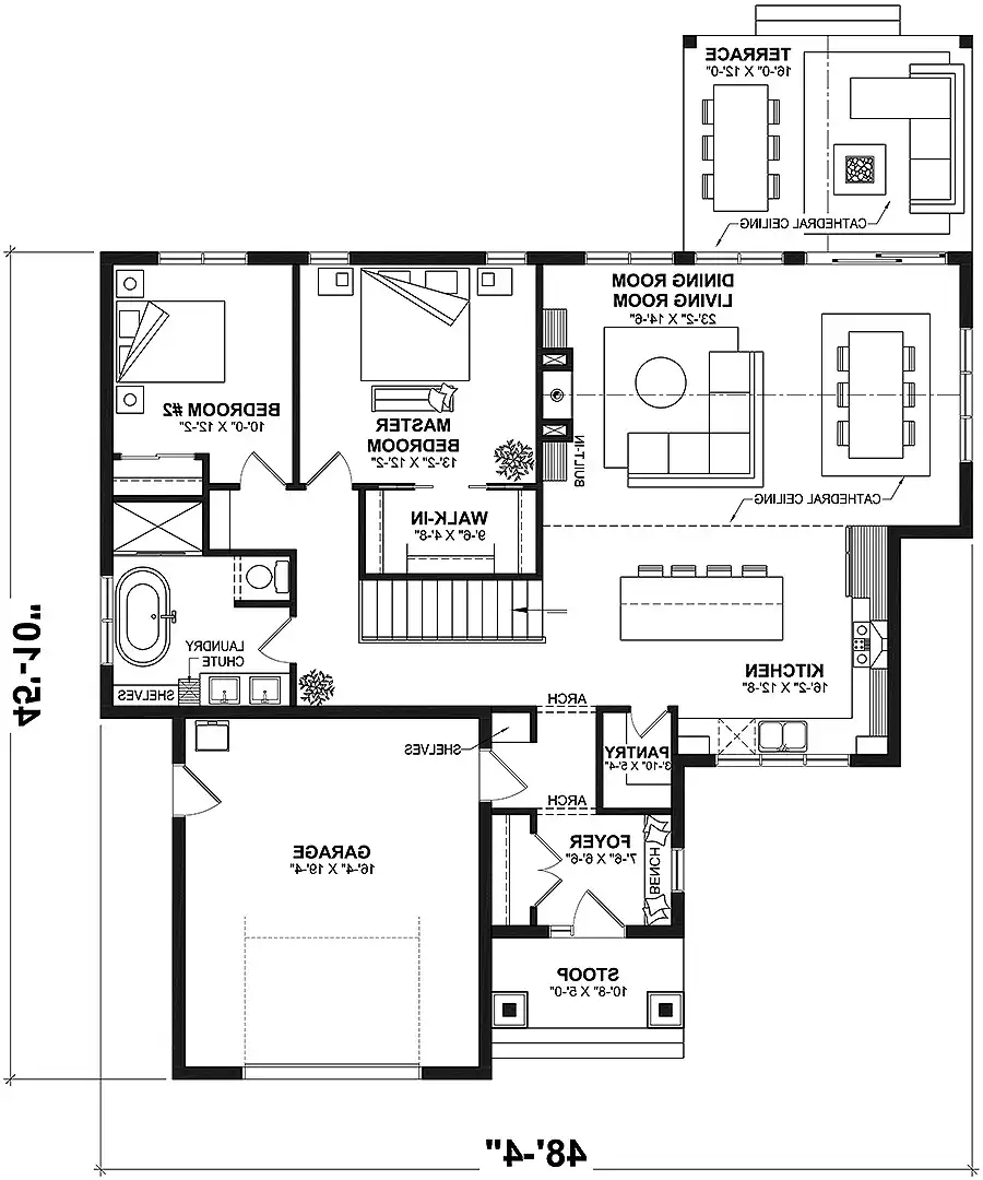
About House Plan 4241:
House Plan 4241 is a lovely cottage with 2,758 square feet, four bedrooms, and two bathrooms in an inverted layout. The main level includes the foyer, open-concept living with an island kitchen and vaulted great room, two bedrooms including the primary, and a five-piece hall bath. Downstairs, you'll find the other two bedrooms, a hall bathroom, the family room, the office, and the laundry room. This home is smartly designed with a laundry chute from the main level bath down to the laundry room, a large storage room in the lower level, and covered outdoor living space off the main level. Just imagine the possibilities here!
House Plan Pricing
STEP 1 Select Your Package

PDF Single Build


Digital plans emailed to you in PDF format that allows for printing copies and sharing electronically with contractors, subs, decorators, and more. This package includes a license to build the home one time.

PDF Single Build $2,200
Most recommended package

3 Printed Sets + PDF


Includes 3 physical printed blueprint sets, shipped free via UPS within the U.S. Printed sets ship within 1 business day and are delivered within 3 – 5 business days. A complimentary PDF plan set is also emailed within 1 business day for easy sharing and local printing. These plans may be used to construct one home.

3 Printed Sets + PDF $2,340
3 Printed Sets + PDF

CAD + PDF Single Build


This plan package is created in AutoCAD and delivered in .DWG format. CAD files are intended for use by design professionals, structural engineers, and builders to update plans for local building codes or to make revisions based on specific needs, lot requirements, and budget considerations. A complimentary PDF copy is included with this package for reference. CAD packages are delivered within 1 to 2 business days.
 
This package also comes with a copyright release for making revisions and printing unlimited copies.

For details on the specific CAD program used, please refer to the PLAN DETAILS section located above the floor plan on each plan page.

CAD + PDF Single Build $3,200
2D electronic editable computer files
STEP 2 Need To Reverse This Plan?
STEP 3 CHOOSE YOUR FOUNDATION
STEP 4 OPTIONAL ADD-ONS
Subtotal:
$2200
FREE SHIPPING
Please allow 3-5 business days for delivery of this plan Please check our PDFs NOW collection for plans that can be downloaded and received immediately or live chat us to help you find a similar plan available now.
 
Plan Details
See All Details
Finished Square Footage
1,379 Sq. Ft.
Main Level:
1,379 Sq. Ft.
Lower Level:
2,758 Sq. Ft.
Total:
Room Details
4
Bedrooms:
2
Full Baths:
General House Information
1
Number of Stories:
48' 4"
Width:
45' 10"
Depth:
Single
Dwelling Number:
None
Bonus Access:
Unfinished Square Footage
365 Sq. Ft.
Garage:
53 Sq. Ft.
Front Porch:
192 Sq. Ft.
Rear Porch:
GARAGE
Front
Garage Location:
1
Garage Size:
Exterior Style
Bungalow
Cottage
Country
European
Modern Farmhouse
Collections
Budget
Canada
Mountain
Open Floor Plan
Outdoor Living
Split Bedroom
Foundation
Crawlspace
Finished basement (included)
Floating slab
Monolithic slab
Framing Information
Truss
Roof Framing:
2x6
Exterior Wall Framing:
Roof Pitch
10/12
Primary:
Insulation (R)
House And Ceiling Heights
9
First Floor Ceiling:
24' 0"
Maximum House Height:
Key Features
Arches
Attached
Covered Front Porch
Covered Rear Porch
Double Vanity Sink
Family Room
Family Style
Fireplace
Foyer
Front-entry
Great Room
Home Office
Inverted Living
Kitchen Island
L-Shaped
Primary Bdrm Main Floor
Mud Room
Nursery Room
Open Floor Plan
Outdoor Living Space
Separate Tub and Shower
Split Bedrooms
Suited for sloping lot
Vaulted Ceilings
Vaulted Great Room/Living
Walk-in Closet
Walk-in Pantry

Our Guarantees

  • Only the highest quality plans
  • Int’l Residential Code Compliant
  • Full structural details on all plans
  • Best plan price guarantee
  • Free modification Estimates
  • Builder-ready construction drawings
  • Expert advice from leading designers
  •  PDFs NOW!™ plans in minutes
  • 100% satisfaction guarantee
  • Free Home Building Organizer