17% off ALL House Plans Sitewide
17% off ALL House Plans Sitewide

House Plan: DFD-4374

See All 2 Photos > (photographs may reflect modified homes)
© copyright by designer
SQ FT
4,276
BEDS
4
BATHS
3.5
STORIES
1.5
CARS
2
HOUSE PLANS SALE 
START AT  $1,037.50
For questions and help, live chat, email or call us at 877-895-5299
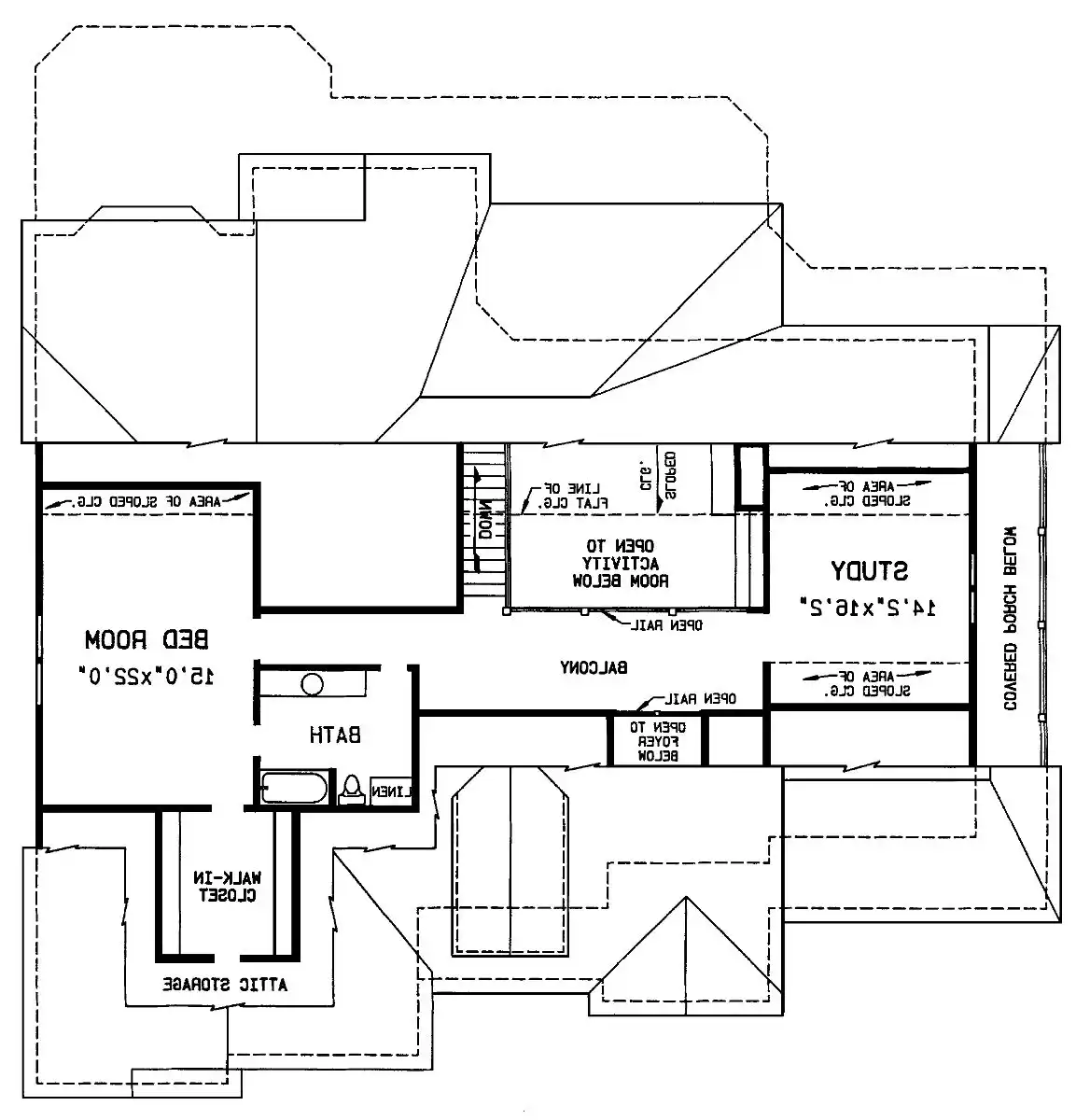
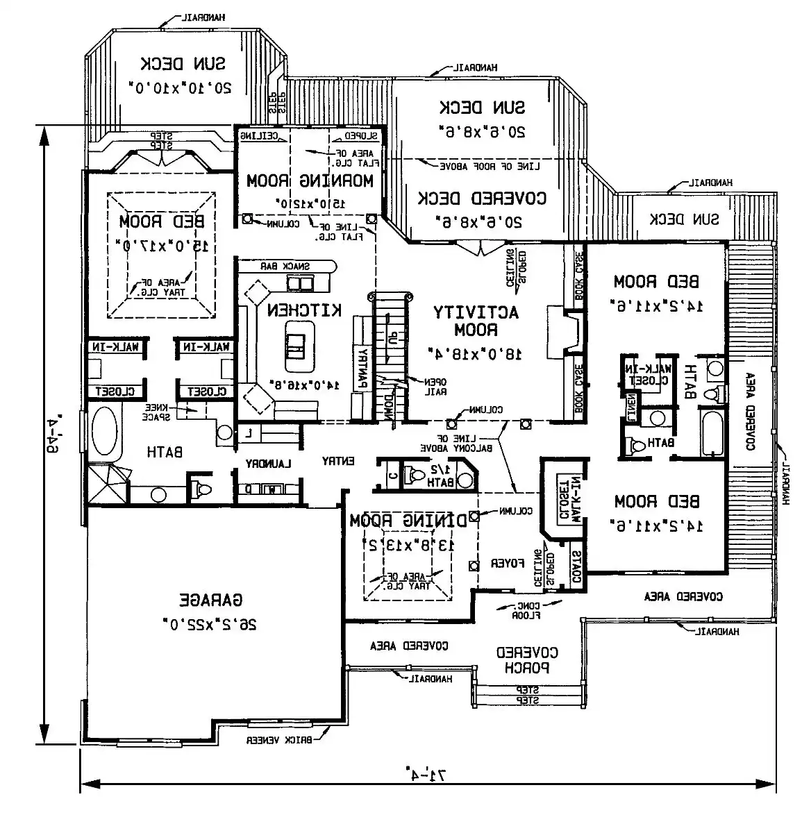
Floor Plans
Click to Zoom In on Floor Plan
 
House Plan 4374
House Plan Pricing
STEP 1 Select Your Package

PDF Single Build


Digital plans emailed to you in PDF format that allows for printing copies and sharing electronically with contractors, subs, decorators, and more. This package includes a license to build the home one time.

PDF Single Build $1,250
Most recommended package
STEP 2 Need To Reverse This Plan?
STEP 3 CHOOSE YOUR FOUNDATION
STEP 4 OPTIONAL ADD-ONS
Subtotal:
$1250
FREE SHIPPING
 
Plan Details
See All Details
Finished Square Footage
2,512 Sq. Ft.
Main Level:
1,142 Sq. Ft.
Upper Level:
4,276 Sq. Ft.
Total:
Room Details
4
Bedrooms:
3
Full Baths:
2
Half Baths:
General House Information
1.5
Number of Stories:
71' 4"
Width:
64' 4"
Depth:
Single
Dwelling Number:
None
Bonus Access:
Unfinished Square Footage
622 Sq. Ft.
Garage:
447 Sq. Ft.
Porch:
747 Sq. Ft.
Deck:
GARAGE
Side
Garage Location:
2
Garage Size:
Exterior Style
Country
Southern
Collections
Builders
Empty Nester
Exclusive
Luxury
Primary Suites
Old House Classics
Open Floor Plan
Outdoor Living
Split Bedroom
Foundation
Basement
Framing Information
Stick
Roof Framing:
2x4
Exterior Wall Framing:
Roof Pitch
8/12
Primary:
10/12
Secondary:
Roof Load
20
Live:
10
Dead:
80
Wind:
Insulation (R)
17
Exterior Wall:
0
Interior Wall:
30
Ceiling:
13
Floor:
House And Ceiling Heights
9
First Floor Ceiling:
8
Second Floor Ceiling:
26' 8"
Maximum House Height:
Key Features
2 Story Volume
Basement
Country Kitchen
Covered Front Porch
Covered Rear Porch
Deck
Dining Room
Double Vanity Sink
Fireplace
Foyer
Front Porch
Great Room
His and Hers Primary Closets
Kitchen Island
Laundry 1st Fl
Loft / Balcony
Primary Bdrm Main Floor
Nook / Breakfast Area
Peninsula / Eating Bar
Rear Porch
Screened Porch/Sunroom
Separate Tub and Shower
Split Bedrooms
Storage Space
Vaulted Ceilings
Walk-in Closet
Wraparound Porch

Our Guarantees

  • Only the highest quality plans
  • Int’l Residential Code Compliant
  • Full structural details on all plans
  • Best plan price guarantee
  • Free modification Estimates
  • Builder-ready construction drawings
  • Expert advice from leading designers
  •  PDFs NOW!™ plans in minutes
  • 100% satisfaction guarantee
  • Free Home Building Organizer

See terms opt out anytime