House Plan: DFD-4719

See All 2 Photos > (photographs may reflect modified homes)
© copyright by designer
SQ FT
2,288
BEDS
5
BATHS
1.5
STORIES
2
CARS
1
PLANS FROM $1,855
For questions and help, live chat, email or call us at 877-895-5299
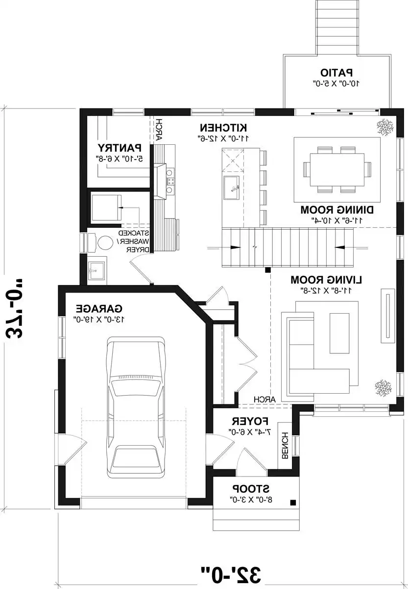
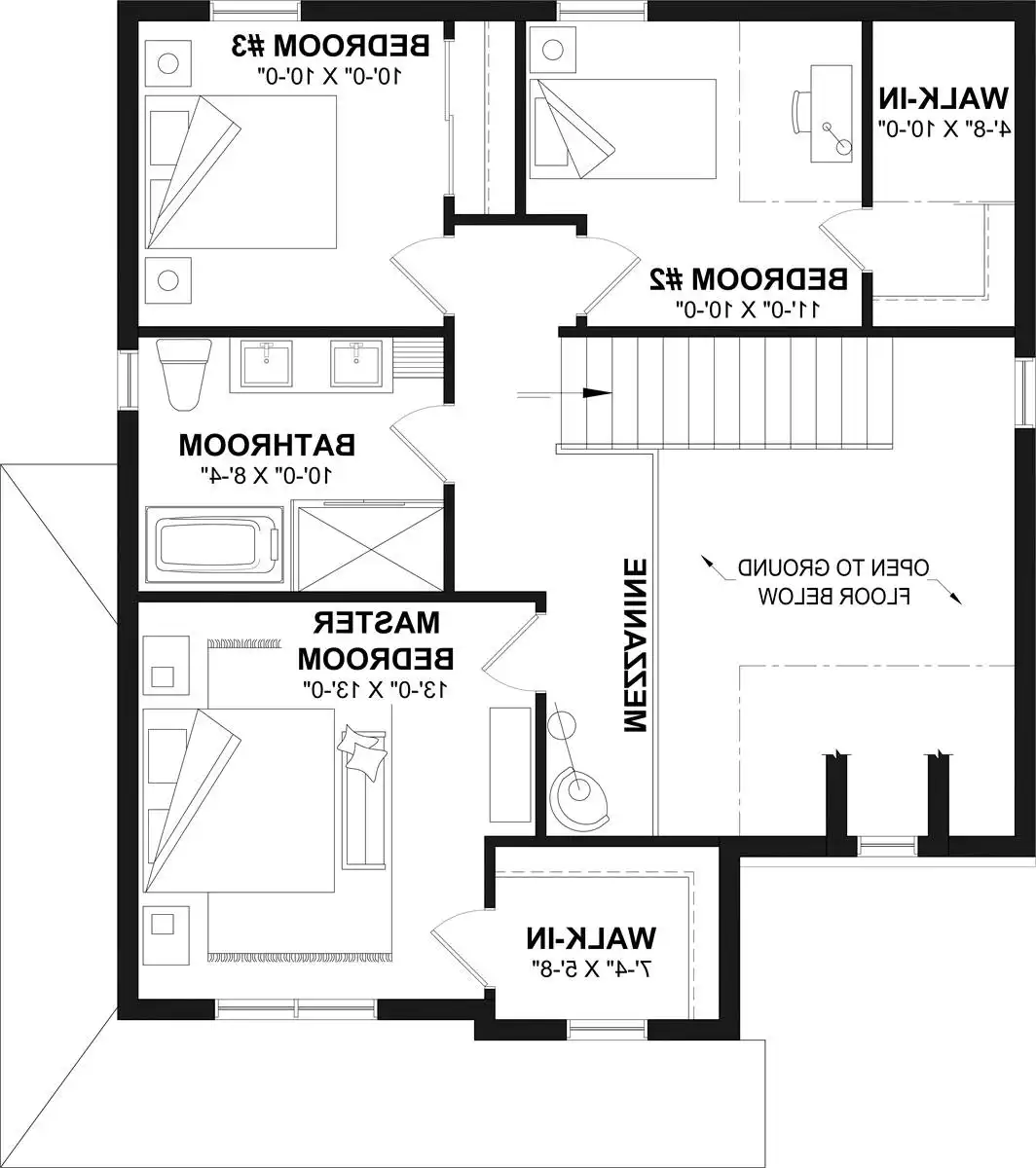
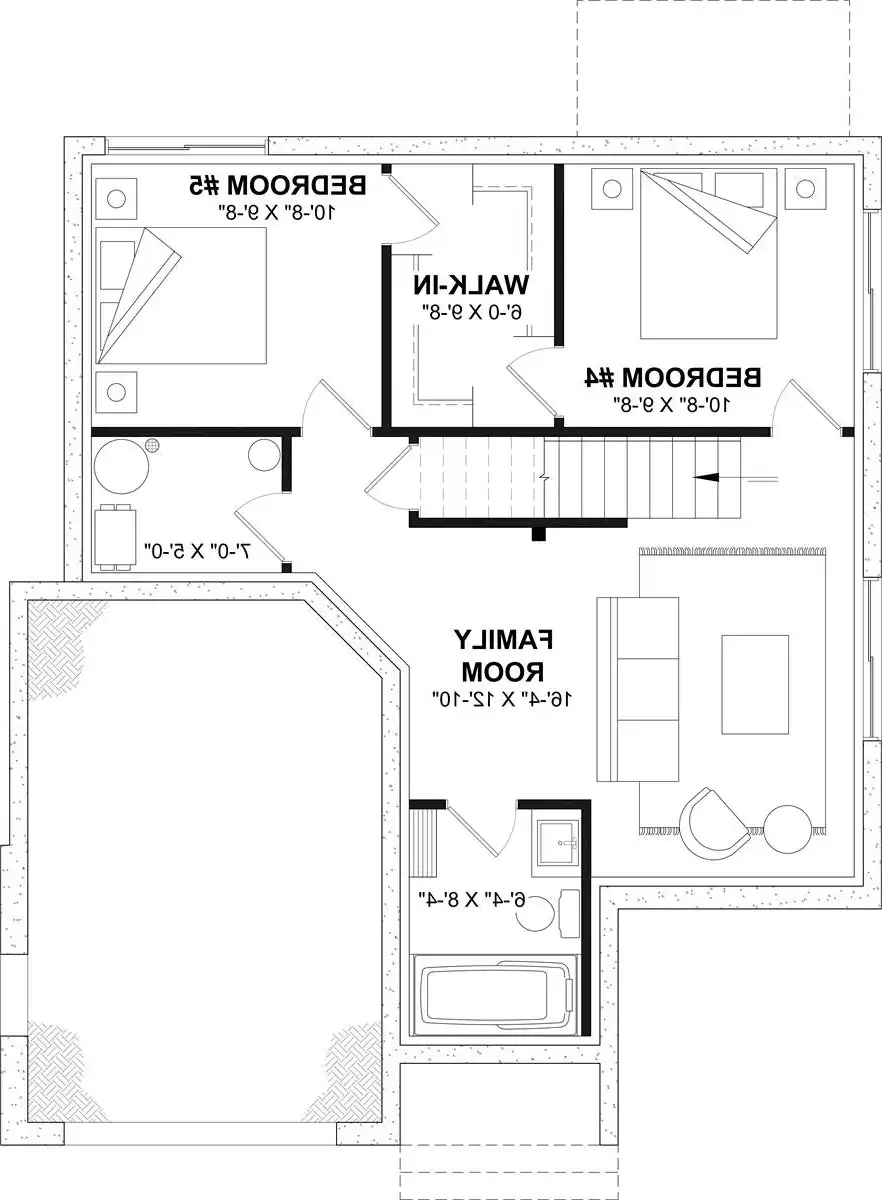
Floor Plans
Click to Zoom In on Floor Plan
 
About House Plan 4719:
 Providing 1,496 square feet of space, this home has enough space for everyone while still feeling intimate and family-oriented. With 3 bedrooms and 1.5 bathrooms, this 2-story home can fit all of your needs. The main floor finds the open family room and its gorgeous latticed windows facing out over the front of the home, letting in tons of natural light, while the kitchen and dining room has a sliding glass door providing easy and convenient outdoor access. All of the bedrooms are on the second floor, including a master bedroom and large walk-in closet. The landing of the second story looks over the family room, giving the space an open and grand feeling.

 
House Plan Pricing
STEP 1 Select Your Package

PDF Single Build


Digital plans emailed to you in PDF format that allows for printing copies and sharing electronically with contractors, subs, decorators, and more. This package includes a license to build the home one time.

PDF Single Build $1,855
Most recommended package

3 Printed Sets + PDF


Includes 3 physical printed blueprint sets, shipped free via UPS within the U.S. Printed sets ship within 1 business day and are delivered within 3 – 5 business days. A complimentary PDF plan set is also emailed within 1 business day for easy sharing and local printing. These plans may be used to construct one home.

3 Printed Sets + PDF $1,995
3 Printed Sets + PDF

CAD + PDF Single Build


This plan package is created in AutoCAD and delivered in .DWG format. CAD files are intended for use by design professionals, structural engineers, and builders to update plans for local building codes or to make revisions based on specific needs, lot requirements, and budget considerations. A complimentary PDF copy is included with this package for reference. CAD packages are delivered within 1 to 2 business days.
 
This package also comes with a copyright release for making revisions and printing unlimited copies.

For details on the specific CAD program used, please refer to the PLAN DETAILS section located above the floor plan on each plan page.

CAD + PDF Single Build $2,855
2D electronic editable computer files
STEP 2 Need To Reverse This Plan?
STEP 3 CHOOSE YOUR FOUNDATION
STEP 4 OPTIONAL ADD-ONS
Subtotal:
$1855
FREE SHIPPING
Please allow 3-5 business days for delivery of this plan Please check our PDFs NOW collection for plans that can be downloaded and received immediately or live chat us to help you find a similar plan available now.
 
Plan Details
See All Details
Finished Square Footage
771 Sq. Ft.
Main Level:
746 Sq. Ft.
Upper Level:
771 Sq. Ft.
Lower Level:
2,288 Sq. Ft.
Total:
Room Details
5
Bedrooms:
1
Full Baths:
1
Half Baths:
General House Information
2
Number of Stories:
32' 0"
Width:
37' 0"
Depth:
Single
Dwelling Number:
Unfinished Square Footage
295 Sq. Ft.
Garage:
17 Sq. Ft.
Porch:
GARAGE
Front
Garage Location:
1
Garage Size:
Exterior Style
European
Farmhouse
French Country
Modern Farmhouse
Collections
Affordable
Canada
First Home
Open Floor Plan
Foundation
Crawlspace
Finished basement (included)
Floating slab
Monolithic slab
Framing Information
Truss
Roof Framing:
2x6
Exterior Wall Framing:
Roof Pitch
12:12
Primary:
12:12
Secondary:
Roof Load
55
Live:
20
Dead:
Insulation (R)
25
Exterior Wall:
0
Interior Wall:
40
Ceiling:
0
Floor:
House And Ceiling Heights
8
First Floor Ceiling:
8
Second Floor Ceiling:
30' 2"
Maximum House Height:
Key Features
Arches
Attached
Basement
Covered Front Porch
Crawlspace
Deck
Dining Room
Double Vanity Sink
Family Room
Front-entry
Kitchen Island
Laundry 1st Fl
Primary Bdrm Upstairs
Open Floor Plan
Pantry
Separate Tub and Shower
Slab
Split Bedrooms
Suited for narrow lot
Vaulted Ceilings
Vaulted Great Room/Living
Walk-in Closet
Walk-in Pantry

Our Guarantees

  • Only the highest quality plans
  • Int’l Residential Code Compliant
  • Full structural details on all plans
  • Best plan price guarantee
  • Free modification Estimates
  • Builder-ready construction drawings
  • Expert advice from leading designers
  •  PDFs NOW!™ plans in minutes
  • 100% satisfaction guarantee
  • Free Home Building Organizer