20% Off House Plans Sitewide Ends Sunday
20% Off House Plans Sitewide Ends Sunday

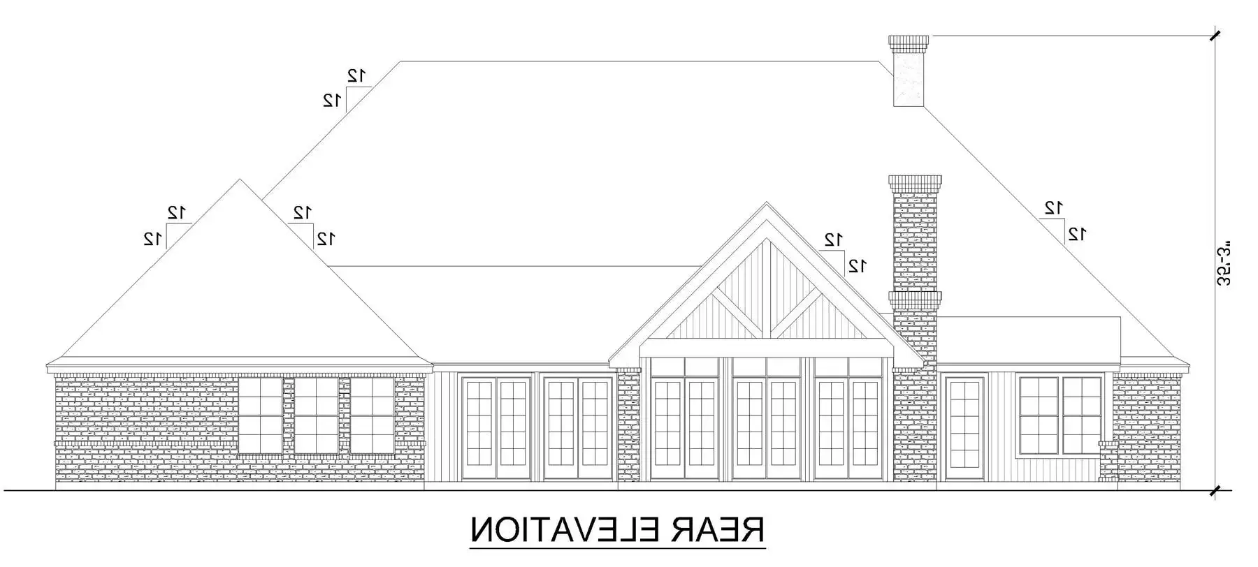
House Plan: DFD-4747

See All 6 Photos > (photographs may reflect modified homes)
© copyright by designer
SQ FT
3,553
BEDS
4
BATHS
4
STORIES
1
CARS
3
HOUSE PLANS SALE 
START AT  $1,032.00
For questions and help, live chat, email or call us at 877-895-5299
Floor Plans
Click to Zoom In on Floor Plan
 
House Plan 4747
House Plan Pricing
STEP 1 Select Your Package

PDF Single Build


Digital plans emailed to you in PDF format that allows for printing copies and sharing electronically with contractors, subs, decorators, and more. This package includes a license to build the home one time.

PDF Single Build $1,290
Most recommended package

5 Printed Sets


Five Printed Sets of Residential Construction Drawings are typically 24” x 36” documents and come with a license to construct a single residence shipped to a physical address. Keep in mind PDF Plan Packages are our most popular choice which allows you to print as many copies as you need and to electronically send files to your builder, subcontractors, etc.

5 Printed Sets $1,920
Five printed sets of house plans

CAD + PDF Single Build


CAD files are a complete set of construction drawings delivered electronically. They can be used for any type of modification—including major design changes and engineering—and include a release granting permission to modify the plan. Most CAD plan orders are emailed the same or next business day.
 
This package also comes with a PDF set of plans and a copyright release for making modifications and printing unlimited copies.
 
CAD files are provided in .dwg format. For details on the specific CAD program used, please refer to the PLAN DETAILS section located above the floor plan on each plan’s page.

CAD + PDF Single Build $1,920
2D electronic editable computer files
STEP 2 Need To Reverse This Plan?
STEP 3 CHOOSE YOUR FOUNDATION
STEP 4 OPTIONAL ADD-ONS
Subtotal:
$1290
FREE SHIPPING
 
Plan Details
See All Details
Finished Square Footage
3,553 Sq. Ft.
Main Level:
3,553 Sq. Ft.
Total:
Room Details
4
Bedrooms:
4
Full Baths:
General House Information
1
Number of Stories:
87' 0"
Width:
77' 6"
Depth:
Single
Dwelling Number:
Unfinished Square Footage
871 Sq. Ft.
Garage:
224 Sq. Ft.
Front Porch:
94 Sq. Ft.
Rear Porch:
251 Sq. Ft.
Deck:
GARAGE
Side
Garage Location:
3
Garage Size:
Exterior Style
Classical
Contemporary
Cottage
Country
European
Modern
Southern
Traditional
Transitional
Collections
Architects Choice
Kitchens
Primary Suites
Open Floor Plan
Outdoor Living
Split Bedroom
Vacation
Foundation
Slab
Framing Information
Stick
Roof Framing:
2x4
Exterior Wall Framing:
Roof Pitch
12:12
Primary:
Insulation (R)
House And Ceiling Heights
10
First Floor Ceiling:
35' 3"
Maximum House Height:
Key Features
Attached
Bonus Room
Covered Front Porch
Covered Rear Porch
Deck
Double Vanity Sink
Family Room
Fireplace
Foyer
Front Porch
Great Room
Home Office
Kitchen Island
Laundry 1st Fl
Primary Bdrm Main Floor
Mud Room
Open Floor Plan
Outdoor Kitchen
Outdoor Living Space
Oversized
Pantry
Peninsula / Eating Bar
Rear Porch
Rec Room
Side-entry
Storage Space
Suited for corner lot
Suited for sloping lot
Suited for view lot
Vaulted Ceilings
Vaulted Foyer
Vaulted Great Room/Living
Vaulted Primary
Walk-in Closet
Walk-in Pantry

Our Guarantees

  • Only the highest quality plans
  • Int’l Residential Code Compliant
  • Full structural details on all plans
  • Best plan price guarantee
  • Free modification Estimates
  • Builder-ready construction drawings
  • Expert advice from leading designers
  •  PDFs NOW!™ plans in minutes
  • 100% satisfaction guarantee
  • Free Home Building Organizer

See terms opt out anytime