20% off ALL House Plans Sitewide
20% off ALL House Plans Sitewide

House Plan: DFD-4749

See All 7 Photos > (photographs may reflect modified homes)
© copyright by designer
SQ FT
5,413
BEDS
4
BATHS
4.5
STORIES
2
CARS
3
HOUSE PLANS SALE 
START AT  $2,000.00
For questions and help, live chat, email or call us at 877-895-5299
Floor Plans
Click to Zoom In on Floor Plan
 
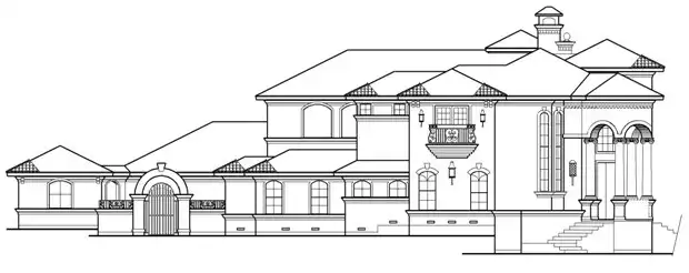
About House Plan 4749:
This Tuscan luxury home plan is simply breathtaking, with its tall windows and repeated arches. Off the two-story foyer lies a dramatic piano room, which flows into the dining and living rooms. The island kitchen serves the relaxing family room, which offers access to a handy elevator. Upstairs, a fun game room leads to the sprawling master suite, which boasts a deluxe bath. French doors open from the sleeping chamber to a private balcony with fireplace. From the balcony, a spiral staircase ascends to a high sitting room, complete with an observation deck (inset).
House Plan Pricing
STEP 1 Select Your Package

PDF Single Build


Digital plans emailed to you in PDF format that allows for printing copies and sharing electronically with contractors, subs, decorators, and more. This package includes a license to build the home one time.

PDF Single Build $2,500
Most recommended package

CAD + PDF Single Build


CAD files are a complete set of construction drawings delivered electronically. They can be used for any type of modification—including major design changes and engineering—and include a release granting permission to modify the plan. Most CAD plan orders are emailed the same or next business day.
 
This package also comes with a PDF set of plans and a copyright release for making modifications and printing unlimited copies.
 
CAD files are provided in .dwg format. For details on the specific CAD program used, please refer to the PLAN DETAILS section located above the floor plan on each plan’s page.

CAD + PDF Single Build $3,760
2D electronic editable computer files

5 Printed Sets


Five Printed Sets of Residential Construction Drawings are typically 24” x 36” documents and come with a license to construct a single residence shipped to a physical address. Keep in mind PDF Plan Packages are our most popular choice which allows you to print as many copies as you need and to electronically send files to your builder, subcontractors, etc.

5 Printed Sets $3,760
Five printed sets of house plans
STEP 2 Need To Reverse This Plan?
STEP 3 CHOOSE YOUR FOUNDATION
STEP 4 OPTIONAL ADD-ONS
Subtotal:
$2500
FREE SHIPPING
 
Plan Details
See All Details
Finished Square Footage
3,250 Sq. Ft.
Main Level:
2,163 Sq. Ft.
Upper Level:
5,413 Sq. Ft.
Total:
Room Details
4
Bedrooms:
4
Full Baths:
3
Half Baths:
General House Information
2
Number of Stories:
77' 2"
Width:
112' 0"
Depth:
Single
Dwelling Number:
Unfinished Square Footage
GARAGE
3
Garage Size:
Exterior Style
Mediterranean
Tuscan
Collections
Luxury
Foundation
Slab
Framing Information
Stick
Roof Framing:
2x6
Exterior Wall Framing:
Roof Pitch
6
Primary:
Insulation (R)
0
Exterior Wall:
0
Interior Wall:
0
Ceiling:
0
Floor:
House And Ceiling Heights
10
First Floor Ceiling:
9
Second Floor Ceiling:
35' 3"
Maximum House Height:
Key Features
Arches
Attached
Butler's Pantry
Country Kitchen
Covered Front Porch
Covered Rear Porch
Dining Room
Double Vanity Sink
Family Room
Fireplace
Formal LR
Foyer
Front Porch
Guest Suite
In-law Suite
Kitchen Island
Laundry 1st Fl
Loft / Balcony
Primary Bdrm Upstairs
Open Floor Plan
Peninsula / Eating Bar
Rear Porch
Rear-entry
Rec Room
Separate Tub and Shower
Sitting Area
Slab
Split Bedrooms
Walk-in Closet
Walk-in Pantry

Our Guarantees

  • Only the highest quality plans
  • Int’l Residential Code Compliant
  • Full structural details on all plans
  • Best plan price guarantee
  • Free modification Estimates
  • Builder-ready construction drawings
  • Expert advice from leading designers
  •  PDFs NOW!™ plans in minutes
  • 100% satisfaction guarantee
  • Free Home Building Organizer