22% off ALL House Plans Sitewide
22% off ALL House Plans Sitewide

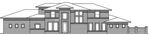
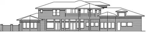
House Plan: DFD-4842

See All 6 Photos > (photographs may reflect modified homes)
© copyright by designer
SQ FT
6,056
BEDS
5
BATHS
5
STORIES
2
CARS
3
HOUSE PLANS SALE 
START AT  $2,262.00
For questions and help, live chat, email or call us at 877-895-5299
Floor Plans
Click to Zoom In on Floor Plan
 
About House Plan 4842:
This stucco mansion boasts a striking facade that is sure to turn heads. Plenty of windows along the rear take full advantage of scenic views. On the main level, the posh master suite and the secluded guest suite are perfect for those who do not wish to climb stairs. The family room anchors the central living area. Three more bedrooms on the upper floor enjoy private baths. A large bonus room would make a great man cave or studio.
House Plan Pricing
STEP 1 Select Your Package

PDF Single Build


Digital plans emailed to you in PDF format that allows for printing copies and sharing electronically with contractors, subs, decorators, and more. This package includes a license to build the home one time.

PDF Single Build $2,900
Most recommended package

CAD + PDF Single Build


CAD files are a complete set of construction drawings delivered electronically. They can be used for any type of modification—including major design changes and engineering—and include a release granting permission to modify the plan. Most CAD plan orders are emailed the same or next business day.
 
This package also comes with a PDF set of plans and a copyright release for making modifications and printing unlimited copies.
 
CAD files are provided in .dwg format. For details on the specific CAD program used, please refer to the PLAN DETAILS section located above the floor plan on each plan’s page.

CAD + PDF Single Build $4,440
2D electronic editable computer files

5 Printed Sets


Five Printed Sets of Residential Construction Drawings are typically 24” x 36” documents and come with a license to construct a single residence shipped to a physical address. Keep in mind PDF Plan Packages are our most popular choice which allows you to print as many copies as you need and to electronically send files to your builder, subcontractors, etc.

5 Printed Sets $4,440
Five printed sets of house plans
STEP 2 Need To Reverse This Plan?
STEP 3 CHOOSE YOUR FOUNDATION
STEP 4 OPTIONAL ADD-ONS
Subtotal:
$2900
FREE SHIPPING
 
Plan Details
See All Details
Finished Square Footage
3,539 Sq. Ft.
Main Level:
1,918 Sq. Ft.
Upper Level:
6,056 Sq. Ft.
Total:
Room Details
5
Bedrooms:
5
Full Baths:
General House Information
2
Number of Stories:
119' 0"
Width:
62' 0"
Depth:
Single
Dwelling Number:
Unfinished Square Footage
1050 Sq. Ft.
Garage:
29 Sq. Ft.
Porch:
286 Sq. Ft.
Deck:
553 Sq. Ft.
Patio:
599 Sq. Ft.
Bonus Room:
GARAGE
Side
Garage Location:
3
Garage Size:
Exterior Style
Contemporary
Collections
Luxury
Open Floor Plan
Outdoor Living
Foundation
Crawlspace
Slab
Framing Information
Stick
Roof Framing:
2x4
Exterior Wall Framing:
Insulation (R)
0
Exterior Wall:
0
Interior Wall:
0
Ceiling:
0
Floor:
House And Ceiling Heights
12
First Floor Ceiling:
9
Second Floor Ceiling:
30' 0"
Maximum House Height:
Key Features
2 Story Volume
Attached
Bonus Room
Butler's Pantry
Country Kitchen
Covered Front Porch
Covered Rear Porch
Dining Room
Family Room
Fireplace
Foyer
Front Porch
Home Office
Kitchen Island
Laundry 1st Fl
Library/Media Rm
Loft / Balcony
Primary Bdrm Main Floor
Nook / Breakfast Area
Open Floor Plan
Rear Porch
Side-entry
Sitting Area
Slab
Vaulted Ceilings

Our Guarantees

  • Only the highest quality plans
  • Int’l Residential Code Compliant
  • Full structural details on all plans
  • Best plan price guarantee
  • Free modification Estimates
  • Builder-ready construction drawings
  • Expert advice from leading designers
  •  PDFs NOW!™ plans in minutes
  • 100% satisfaction guarantee
  • Free Home Building Organizer