20% off ALL House Plans Sitewide
20% off ALL House Plans Sitewide

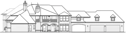
House Plan: DFD-4851

See All 4 Photos > (photographs may reflect modified homes)
© copyright by designer
SQ FT
7,517
BEDS
6
BATHS
5
STORIES
2
CARS
4
HOUSE PLANS SALE 
START AT  $2,720.00
For questions and help, live chat, email or call us at 877-895-5299
Floor Plans
Click to Zoom In on Floor Plan
 
About House Plan 4851:
This sprawling estate home plan will draw compliments from visitors. The family room is the central gathering place, with the island kitchen nearby. The master suite basks in unparalleled luxury. Above the four-car garage, a bonus room would make a great art studio.
House Plan Pricing
STEP 1 Select Your Package

PDF Single Build


Digital plans emailed to you in PDF format that allows for printing copies and sharing electronically with contractors, subs, decorators, and more. This package includes a license to build the home one time.

PDF Single Build $3,400
Most recommended package

CAD + PDF Single Build


CAD files are a complete set of construction drawings delivered electronically. They can be used for any type of modification—including major design changes and engineering—and include a release granting permission to modify the plan. Most CAD plan orders are emailed the same or next business day.
 
This package also comes with a PDF set of plans and a copyright release for making modifications and printing unlimited copies.
 
CAD files are provided in .dwg format. For details on the specific CAD program used, please refer to the PLAN DETAILS section located above the floor plan on each plan’s page.

CAD + PDF Single Build $5,120
2D electronic editable computer files

5 Printed Sets


Five Printed Sets of Residential Construction Drawings are typically 24” x 36” documents and come with a license to construct a single residence shipped to a physical address. Keep in mind PDF Plan Packages are our most popular choice which allows you to print as many copies as you need and to electronically send files to your builder, subcontractors, etc.

5 Printed Sets $5,120
Five printed sets of house plans
STEP 2 Need To Reverse This Plan?
STEP 3 CHOOSE YOUR FOUNDATION
STEP 4 OPTIONAL ADD-ONS
Subtotal:
$3400
FREE SHIPPING
 
Plan Details
See All Details
Finished Square Footage
4,890 Sq. Ft.
Main Level:
2,627 Sq. Ft.
Upper Level:
7,517 Sq. Ft.
Total:
Room Details
6
Bedrooms:
5
Full Baths:
General House Information
2
Number of Stories:
179' 2"
Width:
121' 8"
Depth:
Single
Dwelling Number:
Unfinished Square Footage
1318 Sq. Ft.
Garage:
107 Sq. Ft.
Porch:
291 Sq. Ft.
Deck:
573 Sq. Ft.
Patio:
1168 Sq. Ft.
Bonus Room:
GARAGE
Side
Garage Location:
4
Garage Size:
Exterior Style
European
Traditional
Collections
Luxury
Old House Classics
Open Floor Plan
Outdoor Living
Foundation
Crawlspace
Slab
Framing Information
Stick
Roof Framing:
2x4
Exterior Wall Framing:
Insulation (R)
0
Exterior Wall:
0
Interior Wall:
0
Ceiling:
0
Floor:
House And Ceiling Heights
11
First Floor Ceiling:
9
Second Floor Ceiling:
35' 0"
Maximum House Height:
Key Features
2 Story Volume
Arches
Attached
Butler's Pantry
Country Kitchen
Covered Front Porch
Covered Rear Porch
Deck
Dining Room
Double Vanity Sink
Family Room
Fireplace
Formal LR
Foyer
Front Porch
Guest Suite
His and Hers Primary Closets
Home Office
Kitchen Island
Laundry 1st Fl
Library/Media Rm
Loft / Balcony
Primary Bdrm Main Floor
Nook / Breakfast Area
Open Floor Plan
Rear Porch
Rear-entry
Separate Tub and Shower
Sitting Area
Slab
Vaulted Ceilings

Our Guarantees

  • Only the highest quality plans
  • Int’l Residential Code Compliant
  • Full structural details on all plans
  • Best plan price guarantee
  • Free modification Estimates
  • Builder-ready construction drawings
  • Expert advice from leading designers
  •  PDFs NOW!™ plans in minutes
  • 100% satisfaction guarantee
  • Free Home Building Organizer

See terms opt out anytime