15% off ALL House Plans Sitewide

House Plan: DFD-5197

See All 20 Photos > (photographs may reflect modified homes)
© copyright by designer
SQ FT
3,294
BEDS
4
BATHS
3.5
STORIES
2
CARS
1
HOUSE PLANS SALE 
START AT  $1,963.50
For questions and help, live chat, email or call us at 877-895-5299
Floor Plans
Click to Zoom In on Floor Plan
 
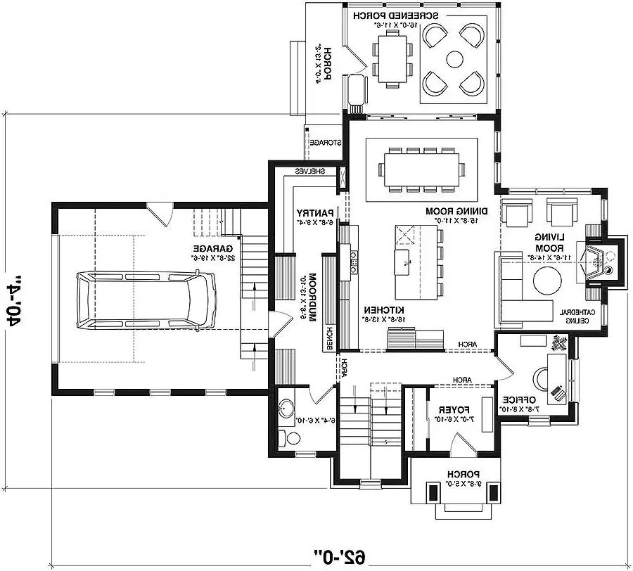
About House Plan 5197:
House Plan 5197 is a modern farmhouse with European flair, featuring a spacious walkout basement that includes a guest bedroom, family room, and access to a terrace. The main floor offers an L-shaped kitchen with an island eat bar, a cozy living room with a fireplace, a screened-in porch, and an office. Upstairs, there are three bedrooms and a versatile loft that can be used as a fourth bedroom. The primary suite includes a luxurious soaker tub, combining comfort and style in this beautifully designed home.

House Plan Pricing
STEP 1 Select Your Package

PDF Single Build


Digital plans emailed to you in PDF format that allows for printing copies and sharing electronically with contractors, subs, decorators, and more. This package includes a license to build the home one time.

PDF Single Build $2,310
Most recommended package

3 Printed Sets + PDF


Includes 3 physical printed blueprint sets, shipped free via UPS within the U.S. Printed sets ship within 1 business day and are delivered within 3 – 5 business days. A complimentary PDF plan set is also emailed within 1 business day for easy sharing and local printing. These plans may be used to construct one home.

3 Printed Sets + PDF $2,450
3 Printed Sets + PDF

CAD + PDF Single Build


This plan package is created in AutoCAD and delivered in .DWG format. CAD files are intended for use by design professionals, structural engineers, and builders to update plans for local building codes or to make revisions based on specific needs, lot requirements, and budget considerations. A complimentary PDF copy is included with this package for reference. CAD packages are delivered within 1 to 2 business days.
 
This package also comes with a copyright release for making revisions and printing unlimited copies.

For details on the specific CAD program used, please refer to the PLAN DETAILS section located above the floor plan on each plan page.

CAD + PDF Single Build $3,310
2D electronic editable computer files
STEP 2 Need To Reverse This Plan?
STEP 3 CHOOSE YOUR FOUNDATION
STEP 4 OPTIONAL ADD-ONS
Subtotal:
$2310
FREE SHIPPING
Please allow 3-5 business days for delivery of this plan Please check our PDFs NOW collection for plans that can be downloaded and received immediately or live chat us to help you find a similar plan available now.
 
Plan Details
See All Details
Finished Square Footage
1,190 Sq. Ft.
Main Level:
914 Sq. Ft.
Upper Level:
1,190 Sq. Ft.
Lower Level:
3,294 Sq. Ft.
Total:
Room Details
4
Bedrooms:
3
Full Baths:
1
Half Baths:
General House Information
2
Number of Stories:
62' 0"
Width:
40' 4"
Depth:
Single
Dwelling Number:
Unfinished Square Footage
500 Sq. Ft.
Garage:
275 Sq. Ft.
Storage:
48 Sq. Ft.
Front Porch:
126 Sq. Ft.
Rear Porch:
GARAGE
Side
Garage Location:
1
Garage Size:
Exterior Style
French Country
Modern Farmhouse
Traditional
Transitional
Collections
Kitchens
Open Floor Plan
Outdoor Living
Pet Lovers
Foundation
Crawlspace
Floating slab
Monolithic slab
Walkout basement (included)
Framing Information
Truss
Roof Framing:
2x6
Exterior Wall Framing:
Roof Pitch
8/12
Primary:
Insulation (R)
House And Ceiling Heights
9
First Floor Ceiling:
8
Second Floor Ceiling:
30' 10"
Maximum House Height:
Key Features
Arches
Attached
Bonus Room
Dining Room
Double Vanity Sink
Family Room
Family Style
Foyer
Front Porch
Guest Suite
Home Office
Kitchen Island
Laundry 2nd Fl
Loft / Balcony
L-Shaped
Primary Bdrm Upstairs
Mud Room
Nursery Room
Open Floor Plan
Screened Porch/Sunroom
Separate Tub and Shower
Side-entry
Suited for sloping lot
Suited for view lot
Walk-in Closet
Walk-in Pantry

Our Guarantees

  • Only the highest quality plans
  • Int’l Residential Code Compliant
  • Full structural details on all plans
  • Best plan price guarantee
  • Free modification Estimates
  • Builder-ready construction drawings
  • Expert advice from leading designers
  •  PDFs NOW!™ plans in minutes
  • 100% satisfaction guarantee
  • Free Home Building Organizer