20% off ALL House Plans Sitewide
20% off ALL House Plans Sitewide

House Plan: DFD-5291

See All 7 Photos > (photographs may reflect modified homes)
© copyright by designer
SQ FT
1,637
BEDS
3
BATHS
2
STORIES
1
CARS
2
HOUSE PLANS SALE 
START AT  $1,040.00
For questions and help, live chat, email or call us at 877-895-5299
Floor Plans
Click to Zoom In on Floor Plan
 
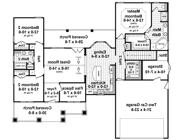
About House Plan 5291:
Craftsman styling's mixed with an abundance of upscale features. The front and rear covered porches offer great spaces for outdoor entertainment and relaxation while being sheltered from the elements. Upon entering, you are greeted by the great room and its vaulted cathedral ceiling as well as built in cabinets and a fireplace. The well-equipped kitchen has a large island with an eating bar for more informal meals and entertaining occasions. A hall bathroom is equipped with dual lavatories for ease and convenience for guests and residents alike. The master bedroom has a raised ceiling and opens into the luxurious bathroom with dual sinks, a corner tub and a large walk in closet. This spectacular plan also offers a shop area off the garage, great for projects and additional storage. You can also find a flex space off of the foyer which provides a great area for a home office or den that is private and secluded. Overall, this is a very flexible and adjustable home, complete with plenty of options to suit all of your family's needs.

 
House Plan Pricing
STEP 1 Select Your Package

Study Set - Printed


One printed set of house plans stamped NOT FOR CONSTRUCTION". This set is intended for review purposes and are mailed to you. To build from the plans, you need to upgrade to a licensed set.
Study Set - Printed $1,150
One Printed Set - Not for Construction

PDF Single Build


Digital plans emailed to you in PDF format that allows for printing copies and sharing electronically with contractors, subs, decorators, and more. This package includes a license to build the home one time.

PDF Single Build $1,300
Most recommended package

5 Printed Sets


Five Printed Sets of Residential Construction Drawings are typically 24” x 36” documents and come with a license to construct a single residence shipped to a physical address. Keep in mind PDF Plan Packages are our most popular choice which allows you to print as many copies as you need and to electronically send files to your builder, subcontractors, etc.

5 Printed Sets $1,400
Five printed sets of house plans

5 Printed Sets + PDF


Digital plan emailed to you in PDF format that allows for printing copies on a home printer or local print shop and sharing with contractors, subs, decorators, and more. PLUS five printed sets shipped and delivered 3-5 business days.

5 Printed Sets + PDF $1,600
Digital plans plus 5 printed sets

CAD + PDF Single Build


CAD files are a complete set of construction drawings delivered electronically. They can be used for any type of modification—including major design changes and engineering—and include a release granting permission to modify the plan. Most CAD plan orders are emailed the same or next business day.
 
This package also comes with a PDF set of plans and a copyright release for making modifications and printing unlimited copies.
 
CAD files are provided in .dwg format. For details on the specific CAD program used, please refer to the PLAN DETAILS section located above the floor plan on each plan’s page.

CAD + PDF Single Build $1,950
2D electronic editable computer files
STEP 2 Need To Reverse This Plan?
STEP 3 CHOOSE YOUR FOUNDATION
STEP 4 OPTIONAL ADD-ONS
Subtotal:
$1300
FREE SHIPPING
 
Plan Details
See All Details
Finished Square Footage
1,637 Sq. Ft.
Main Level:
1,637 Sq. Ft.
Total:
Room Details
3
Bedrooms:
2
Full Baths:
General House Information
1
Number of Stories:
64' 0"
Width:
56' 2"
Depth:
Single
Dwelling Number:
None
Bonus Access:
Unfinished Square Footage
681 Sq. Ft.
Garage:
418 Sq. Ft.
Porch:
GARAGE
Front
Garage Location:
2
Garage Size:
Exterior Style
Cottage
Country
Craftsman
Collections
Empty Nester
First Home
Old House Classics
Open Floor Plan
Split Bedroom
Foundation
Basement
Framing Information
Stick
Roof Framing:
2x4
Exterior Wall Framing:
Roof Pitch
8/12
Primary:
12 in 12
Secondary:
Roof Load
30
Live:
10
Dead:
40
Wind:
Insulation (R)
15
Exterior Wall:
38
Interior Wall:
19
Ceiling:
19
Floor:
House And Ceiling Heights
9
First Floor Ceiling:
20' 6"
Maximum House Height:
Key Features
Attached
Basement
Covered Front Porch
Covered Rear Porch
Dining Room
Exercise Room
Foyer
Front Porch
Front-entry
Home Office
Kitchen Island
Laundry 1st Fl
Library/Media Rm
Primary Bdrm Main Floor
Nook / Breakfast Area
Nursery Room
Open Floor Plan
Oversized
Rear Porch
Separate Tub and Shower
Split Bedrooms
Storage Space
Suited for corner lot
Suited for sloping lot
Suited for view lot
Walk-in Closet
Walkout Basement

Our Guarantees

  • Only the highest quality plans
  • Int’l Residential Code Compliant
  • Full structural details on all plans
  • Best plan price guarantee
  • Free modification Estimates
  • Builder-ready construction drawings
  • Expert advice from leading designers
  •  PDFs NOW!™ plans in minutes
  • 100% satisfaction guarantee
  • Free Home Building Organizer