15% off ALL House Plans Sitewide

House Plan: DFD-5597

See All 2 Photos > (photographs may reflect modified homes)
© copyright by designer
SQ FT
2,001
BEDS
2
BATHS
2.5
STORIES
2
CARS
1
HOUSE PLANS SALE 
START AT  $2,371.50
For questions and help, live chat, email or call us at 877-895-5299
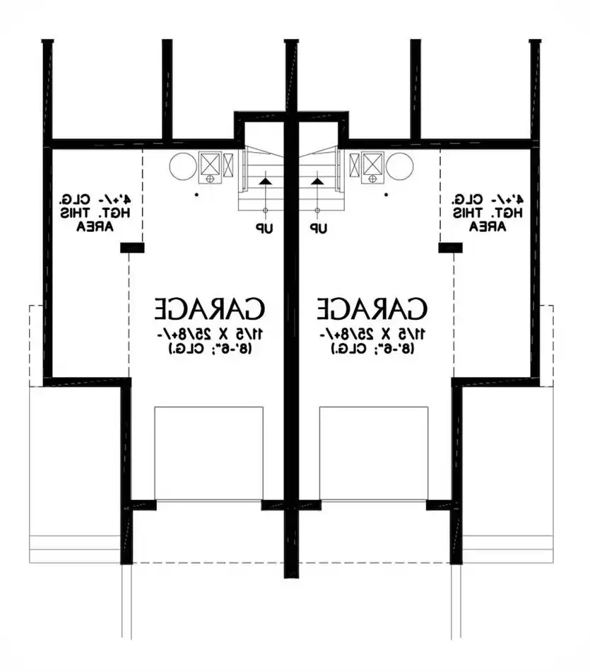
Floor Plans
Click to Zoom In on Floor Plan
 
About House Plan 5597:
This modern style duplex maximizes its footprint, offering 2 spacious units with 3 levels a piece. A drive-under garage for each unit means that these homes take up a reduced amount of lot space, making them great for a limited build. From there, each side offers 2,001 square feet of living space, each with 2 bedrooms and 2.5 bathrooms, both sides having identical layouts. Once you park your car, move upstairs to the main level where you will find an office and powder room, as well as a quaint eat-in kitchen and a combined living and dining room space with a private balcony. The top level of each unit features all of the sleeping quarters, including the master with its large bathroom and dual his and hers walk-in closets, along with a second bedroom with its own en-suite and walk-in closet. The size of this efficient plan makes the units great options for a new couple or first-time home buyers.
House Plan Pricing
STEP 1 Select Your Package

PDF Single Build


Digital plans emailed to you in PDF format that allows for printing copies and sharing electronically with contractors, subs, decorators, and more. This package includes a license to build the home one time.

PDF Single Build $2,790
Most recommended package

5 Printed Sets + PDF


Includes 5 physical printed blueprint sets, shipped free via UPS within the U.S. Printed sets ship within 1 business day and are delivered within 3 – 5 business days. A complimentary PDF plan set is also emailed within 1 business day for easy sharing and local printing. These plans may be used to construct one home.

5 Printed Sets + PDF $3,115
5 Printed Sets + PDF

CAD + PDF Single Build


This plan package is created in AutoCAD and delivered in .DWG format. CAD files are intended for use by design professionals, structural engineers, and builders to update plans for local building codes or to make revisions based on specific needs, lot requirements, and budget considerations. A complimentary PDF copy is included with this package for reference. CAD packages are delivered within 1 to 2 business days.
 
This package also comes with a copyright release for making revisions and printing unlimited copies.

For details on the specific CAD program used, please refer to the PLAN DETAILS section located above the floor plan on each plan page.

CAD + PDF Single Build $5,580
2D electronic editable computer files
STEP 2 Need To Reverse This Plan?
STEP 3 CHOOSE YOUR FOUNDATION
STEP 4 OPTIONAL ADD-ONS
Subtotal:
$2790
FREE SHIPPING
 
Plan Details
See All Details
Finished Square Footage
1,081 Sq. Ft.
Main Level:
920 Sq. Ft.
Upper Level:
2,001 Sq. Ft.
Total:
Room Details
2
Bedrooms:
2
Full Baths:
1
Half Baths:
General House Information
2
Number of Stories:
38' 8"
Width:
72' 0"
Depth:
Duplex
Dwelling Number:
Unfinished Square Footage
420 Sq. Ft.
Garage:
GARAGE
Under
Garage Location:
1
Garage Size:
Exterior Style
Contemporary
Modern
Collections
Budget
Builders
Foundation
Crawlspace
Stem Wall Slab Foundation-Included
Framing Information
Stick
Roof Framing:
2x6
Exterior Wall Framing:
Roof Pitch
4/12
Primary:
Roof Load
25
Live:
15
Dead:
Insulation (R)
0
Exterior Wall:
0
Interior Wall:
0
Ceiling:
0
Floor:
House And Ceiling Heights
12
First Floor Ceiling:
8
Second Floor Ceiling:
29' 5"
Maximum House Height:
Key Features
Basement
Crawlspace
Double Vanity Sink
Kitchen Island
Primary Bdrm Upstairs
Open Floor Plan
Slab
Split Bedrooms
Storage Space
Walk-in Closet

Our Guarantees

  • Only the highest quality plans
  • Int’l Residential Code Compliant
  • Full structural details on all plans
  • Best plan price guarantee
  • Free modification Estimates
  • Builder-ready construction drawings
  • Expert advice from leading designers
  •  PDFs NOW!™ plans in minutes
  • 100% satisfaction guarantee
  • Free Home Building Organizer