15% off ALL House Plans Sitewide
15% off ALL House Plans Sitewide

House Plan: DFD-6306

See All 15 Photos > (photographs may reflect modified homes)
© copyright by designer
SQ FT
1,982
BEDS
3
BATHS
2.5
STORIES
1
CARS
3
HOUSE PLANS SALE 
START AT  $1,185.75
For questions and help, live chat, email or call us at 877-895-5299
Floor Plans
Click to Zoom In on Floor Plan
 
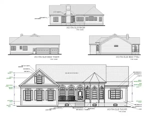
About House Plan 6306:
We've taken our most popular plan and made it even better. The lovely siding exterior is accented with areas of wood shingles, a "bayed" living room, and an irresistable front porch. It's radius top windows, luxurious master suite, a large screened porch, and the addition of a 386 square foot bonus room, are sure to make this 1982 square foot home hard to top.

The exquisite master suite boasts a vaulted ceiling, a sitting area, and a large walk-in closet. Also adorning the family room, living room, and screened porch are vaulted ceilings, and a tray ceiling in the dining room. Other rooms have 9' ceilings. Just off the kitchen are stairs leading to the enormous bonus room, measuring 11'-4" x 30'-8". The spacious secondary bedrooms each measure apx. 13' x 11' , have walk-in closets, and share a "Jack and Jill" bath.
House Plan Pricing
STEP 1 Select Your Package

PDF Bid Set


Home plans stamped "NOT FOR CONSTRUCTION" for cost estimating and bidding purposes only; a minimum 5 set plan package must be purchased within 90 days for a license to build plan set; a credit will be applied towards your house plan upgrade

PDF Bid Set $895
Immediate Delivery!
Digital set of plans for bidding purposes only

PDF Single Build


Digital plans emailed to you in PDF format that allows for printing copies and sharing electronically with contractors, subs, decorators, and more. This package includes a license to build the home one time.

PDF Single Build $1,395
Immediate Delivery!
Most recommended package

5 Printed Sets


Five Printed Sets of Residential Construction Drawings are typically 24” x 36” documents and come with a license to construct a single residence shipped to a physical address. Keep in mind PDF Plan Packages are our most popular choice which allows you to print as many copies as you need and to electronically send files to your builder, subcontractors, etc.

5 Printed Sets $1,445
Five printed sets of house plans

8 Printed Sets


Eight Printed Sets of Construction Drawings, typically 24” x 36” documents, with a license to construct a single residence shipped to your physical address. PDF Plan Packages are our most popular choice which allows you to print as many copies as you need and to electronically send files to your builder, subcontractors, bank/mortgage reps, material stores, decorators and more.

8 Printed Sets $1,495
Eight printed sets of house plans

CAD + PDF Single Build


CAD files are a complete set of construction drawings delivered electronically. They can be used for any type of modification—including major design changes and engineering—and include a release granting permission to modify the plan. Most CAD plan orders are emailed the same or next business day.
 
This package also comes with a PDF set of plans and a copyright release for making modifications and printing unlimited copies.
 
CAD files are provided in .dwg format. For details on the specific CAD program used, please refer to the PLAN DETAILS section located above the floor plan on each plan’s page.

CAD + PDF Single Build $1,895
2D electronic editable computer files
STEP 2 Need To Reverse This Plan?
STEP 3 CHOOSE YOUR FOUNDATION
STEP 4 OPTIONAL ADD-ONS
Subtotal:
$1395
FREE SHIPPING
 
Plan Details
See All Details
Finished Square Footage
1,982 Sq. Ft.
Main Level:
1,982 Sq. Ft.
Total:
Room Details
3
Bedrooms:
2
Full Baths:
1
Half Baths:
General House Information
1
Number of Stories:
63' 0"
Width:
58' 0"
Depth:
Single
Dwelling Number:
1st Floor
Bonus Access:
Unfinished Square Footage
386 Sq. Ft.
Bonus Room:
GARAGE
Side
Garage Location:
3
Garage Size:
Exterior Style
Country
Ranch
Southern
Traditional
Collections
Empty Nester
First Home
Old House Classics
Foundation
Basement
Crawl Space
Slab Foundation
Framing Information
Stick
Roof Framing:
2x4
Exterior Wall Framing:
Roof Pitch
7/12
Primary:
Roof Load
30
Live:
90
Wind:
Insulation (R)
21
Exterior Wall:
0
Interior Wall:
38
Ceiling:
25
Floor:
House And Ceiling Heights
9
First Floor Ceiling:
22' 0"
Maximum House Height:
Key Features
Attached
Basement
Covered Front Porch
Crawlspace
Deck
Family Room
Front Porch
Laundry 1st Fl
Primary Bdrm Main Floor
Nook / Breakfast Area
Screened Porch/Sunroom
Sitting Area
Slab

Our Guarantees

  • Only the highest quality plans
  • Int’l Residential Code Compliant
  • Full structural details on all plans
  • Best plan price guarantee
  • Free modification Estimates
  • Builder-ready construction drawings
  • Expert advice from leading designers
  •  PDFs NOW!™ plans in minutes
  • 100% satisfaction guarantee
  • Free Home Building Organizer