15% off ALL House Plans Sitewide
15% off ALL House Plans Sitewide
 Save   |  Cost-To-Build  |  Print  |  Modify Plan

House Plan: DFD-6605

See All 5 Photos > (photographs may reflect modified homes)
© copyright by designer
SQ FT
1,580
BEDS
1
BATHS
1
STORIES
2
CARS
3
HOUSE PLANS SALE 
START AT  $1,487.50
For questions and help, live chat, email or call us at 877-895-5299
Floor Plans
Click to Zoom In on Floor Plan
 
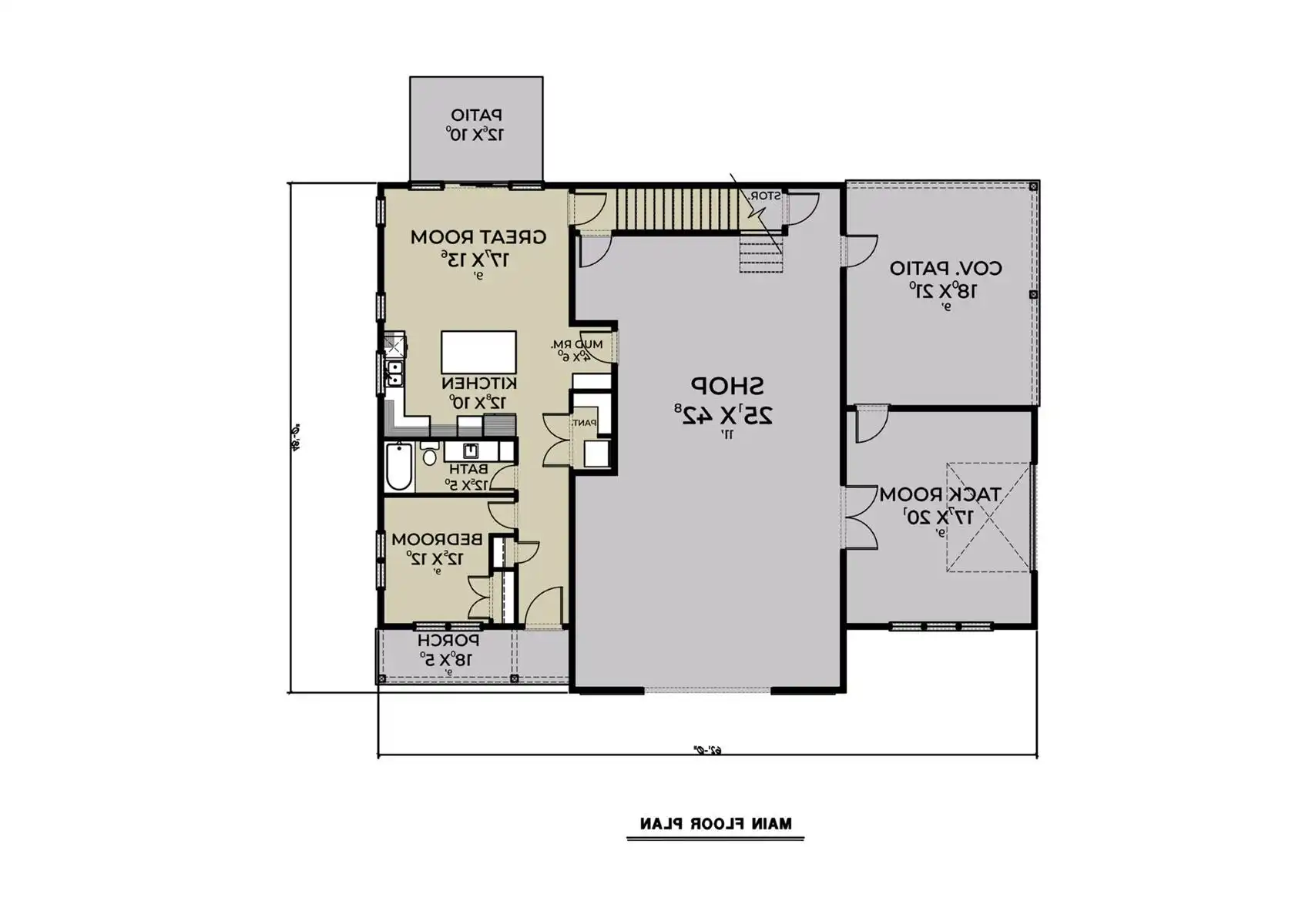
About House Plan 6605:
House Plan 6605 offers a unique mix of living and working space for handy types! The interior consists of 1,580 square feet with open living, one bedroom, and one full hall bath on the main level and a large loft upstairs. Make it a bunkroom or use it for storage--the choice is yours! If you have your sights set on an at-home workshop, you'll find plenty of potential in the center portion of the main level. It offers over 1,000 square feet for you to fill with whatever tools, supplies, and projects suit your fancy. There's also an additional tack room on the side with its own large exterior door for any other needs you may have. All this is wrapped up in a rustic barn-style exterior that'll look great on a rural lot, on its own or in addition to another home! 
House Plan Pricing
STEP 1 Select Your Package

PDF Bid Set


Home plans stamped "NOT FOR CONSTRUCTION" for cost estimating and bidding purposes only; a minimum 5 set plan package must be purchased within 90 days for a license to build plan set; a credit will be applied towards your house plan upgrade

PDF Bid Set $875
Digital set of plans for bidding purposes only

PDF Single Build


Digital plans emailed to you in PDF format that allows for printing copies and sharing electronically with contractors, subs, decorators, and more. This package includes a license to build the home one time.

PDF Single Build $1,750
Most recommended package

5 Printed Sets + PDF


Includes 5 physical printed blueprint sets, shipped free via UPS within the U.S. Printed sets ship within 1 business day and are delivered within 3 – 5 business days. A complimentary PDF plan set is also emailed within 1 business day for easy sharing and local printing. These plans may be used to construct one home.

5 Printed Sets + PDF $2,200
5 Printed Sets + PDF

CAD + PDF Single Build


This plan package is created in AutoCAD and delivered in .DWG format. CAD files are intended for use by design professionals, structural engineers, and builders to update plans for local building codes or to make revisions based on specific needs, lot requirements, and budget considerations. A complimentary PDF copy is included with this package for reference. CAD packages are delivered within 1 to 2 business days.
 
This package also comes with a copyright release for making revisions and printing unlimited copies.

For details on the specific CAD program used, please refer to the PLAN DETAILS section located above the floor plan on each plan page.

CAD + PDF Single Build $2,250
2D electronic editable computer files
STEP 2 Need To Reverse This Plan?
STEP 3 CHOOSE YOUR FOUNDATION
STEP 4 OPTIONAL ADD-ONS
Subtotal:
$1750
FREE SHIPPING
 
Plan Details
See All Details
Finished Square Footage
833 Sq. Ft.
Main Level:
747 Sq. Ft.
Upper Level:
1,580 Sq. Ft.
Total:
Room Details
1
Bedrooms:
1
Full Baths:
General House Information
2
Number of Stories:
62' 0"
Width:
48' 0"
Depth:
Garage
Dwelling Number:
1st Floor
Bonus Access:
Unfinished Square Footage
1072 Sq. Ft.
Garage:
378 Sq. Ft.
Storage:
378 Sq. Ft.
Deck:
GARAGE
Front
Garage Location:
3
Garage Size:
Exterior Style
Barndominium
Country
Farmhouse
Collections
ADU
Empty Nester
First Home
Mountain
Open Floor Plan
Foundation
Slab
Framing Information
Truss
Roof Framing:
2x6
Exterior Wall Framing:
Roof Pitch
10/12
Primary:
3/12
Secondary:
Insulation (R)
House And Ceiling Heights
9
First Floor Ceiling:
9
Second Floor Ceiling:
28' 8"
Maximum House Height:
Key Features
Attached
Bonus Room
Covered Front Porch
Front Porch
Front-entry
Great Room
Kitchen Island
Laundry 1st Fl
Loft / Balcony
L-Shaped
Primary Bdrm Main Floor
Mud Room
Open Floor Plan
Outdoor Living Space
Oversized
Pantry
RV Garage
Side-entry
Tandem
Walk-in Pantry
With Living Space
Workshop

Our Guarantees

  • Only the highest quality plans
  • Int’l Residential Code Compliant
  • Full structural details on all plans
  • Best plan price guarantee
  • Free modification Estimates
  • Builder-ready construction drawings
  • Expert advice from leading designers
  •  PDFs NOW!™ plans in minutes
  • 100% satisfaction guarantee
  • Free Home Building Organizer