20% off ALL House Plans Sitewide
20% off ALL House Plans Sitewide

House Plan: DFD-6675

See All 7 Photos > (photographs may reflect modified homes)
© copyright by designer
SQ FT
1,550
BEDS
3
BATHS
2.5
STORIES
2
CARS
2
HOUSE PLANS SALE 
START AT  $800.00
For questions and help, live chat, email or call us at 877-895-5299
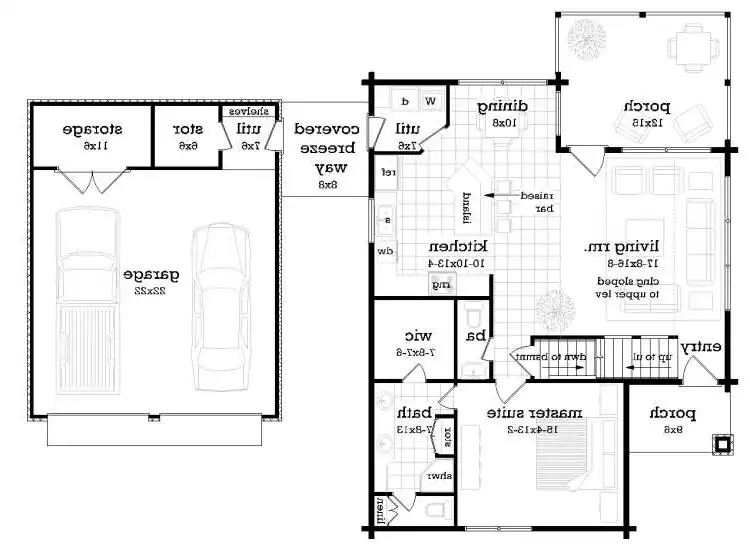
Floor Plans
Click to Zoom In on Floor Plan
 
About House Plan 6675:
This mountain log home has 1,550 square feet of living area. The three spacious bedrooms and 2.5 bathrooms provide the ideal balance of comfort and style. The kitchen, the center of the house, is outfitted with an island that is ideal for cooking and hosting visitors. The living room features open ceilings with optional railings to the bedroom or flexible space upstairs. The master suite is a true sanctuary, a peaceful and serene space that offers isolation and relaxation. Upstairs has two huge bedrooms that share a large bathroom. A small breezeway connects to a two-car garage.
House Plan Pricing
STEP 1 Select Your Package

PDF Bid Set


Home plans stamped "NOT FOR CONSTRUCTION" for cost estimating and bidding purposes only; a minimum 5 set plan package must be purchased within 90 days for a license to build plan set; a credit will be applied towards your house plan upgrade

PDF Bid Set $800
Digital set of plans for bidding purposes only

PDF Single Build


Digital plans emailed to you in PDF format that allows for printing copies and sharing electronically with contractors, subs, decorators, and more. This package includes a license to build the home one time.

PDF Single Build $1,000
Most recommended package

4 Printed Sets


Four printed sets of construction drawings shipped and received in 3-5 business days

4 Printed Sets $1,085
Four printed sets of house plans

5 Printed Sets


Five Printed Sets of Residential Construction Drawings are typically 24” x 36” documents and come with a license to construct a single residence shipped to a physical address. Keep in mind PDF Plan Packages are our most popular choice which allows you to print as many copies as you need and to electronically send files to your builder, subcontractors, etc.

5 Printed Sets $1,130
Five printed sets of house plans

8 Printed Sets


Eight Printed Sets of Construction Drawings, typically 24” x 36” documents, with a license to construct a single residence shipped to your physical address. PDF Plan Packages are our most popular choice which allows you to print as many copies as you need and to electronically send files to your builder, subcontractors, bank/mortgage reps, material stores, decorators and more.

8 Printed Sets $1,240
Eight printed sets of house plans

CAD + PDF Single Build


CAD files are a complete set of construction drawings delivered electronically. They can be used for any type of modification—including major design changes and engineering—and include a release granting permission to modify the plan. Most CAD plan orders are emailed the same or next business day.
 
This package also comes with a PDF set of plans and a copyright release for making modifications and printing unlimited copies.
 
CAD files are provided in .dwg format. For details on the specific CAD program used, please refer to the PLAN DETAILS section located above the floor plan on each plan’s page.

CAD + PDF Single Build $1,900
2D electronic editable computer files
STEP 2 Need To Reverse This Plan?
STEP 3 CHOOSE YOUR FOUNDATION
STEP 4 OPTIONAL ADD-ONS
Subtotal:
$1000
FREE SHIPPING
 
Plan Details
See All Details
Finished Square Footage
1,073 Sq. Ft.
Main Level:
477 Sq. Ft.
Upper Level:
1,073 Sq. Ft.
Lower Level:
1,550 Sq. Ft.
Total:
Room Details
3
Bedrooms:
2
Full Baths:
1
Half Baths:
General House Information
2
Number of Stories:
62' 0"
Width:
46' 0"
Depth:
Single
Dwelling Number:
None
Bonus Access:
Unfinished Square Footage
484 Sq. Ft.
Garage:
132 Sq. Ft.
Storage:
304 Sq. Ft.
Porch:
GARAGE
Front
Garage Location:
2
Garage Size:
Exterior Style
Cottage
Country
Lake
Log
Collections
Cabin
Mountain
Open Floor Plan
Outdoor Living
PDFs Fast!
Split Bedroom
Vacation
Foundation
Basement Foundation
Framing Information
Stick
Roof Framing:
2x4
Exterior Wall Framing:
Roof Pitch
12:12
Primary:
12:12
Gable:
12:12
Dormer:
12:12
Porch:
Insulation (R)
38
Ceiling:
19
Floor:
House And Ceiling Heights
9
First Floor Ceiling:
8
Second Floor Ceiling:
26' 8"
Maximum House Height:
Key Features
2 Story Volume
Attached
Breezeway
Covered Front Porch
Covered Rear Porch
Dining Room
Double Vanity Sink
Front-entry
Great Room
Kitchen Island
Laundry 1st Fl
Loft / Balcony
L-Shaped
Primary Bdrm Main Floor
Mud Room
Open Floor Plan
Split Bedrooms
Storage Space
Suited for corner lot
Suited for narrow lot
Suited for sloping lot
Suited for view lot
Vaulted Ceilings
Vaulted Great Room/Living
Walk-in Closet

Our Guarantees

  • Only the highest quality plans
  • Int’l Residential Code Compliant
  • Full structural details on all plans
  • Best plan price guarantee
  • Free modification Estimates
  • Builder-ready construction drawings
  • Expert advice from leading designers
  •  PDFs NOW!™ plans in minutes
  • 100% satisfaction guarantee
  • Free Home Building Organizer