House Plan: DFD-6697

See All 20 Photos > (photographs may reflect modified homes)
© copyright by designer
SQ FT
3,122
BEDS
4
BATHS
2.5
STORIES
1
CARS
1
PLANS FROM $2,200
For questions and help, live chat, email or call us at 877-895-5299
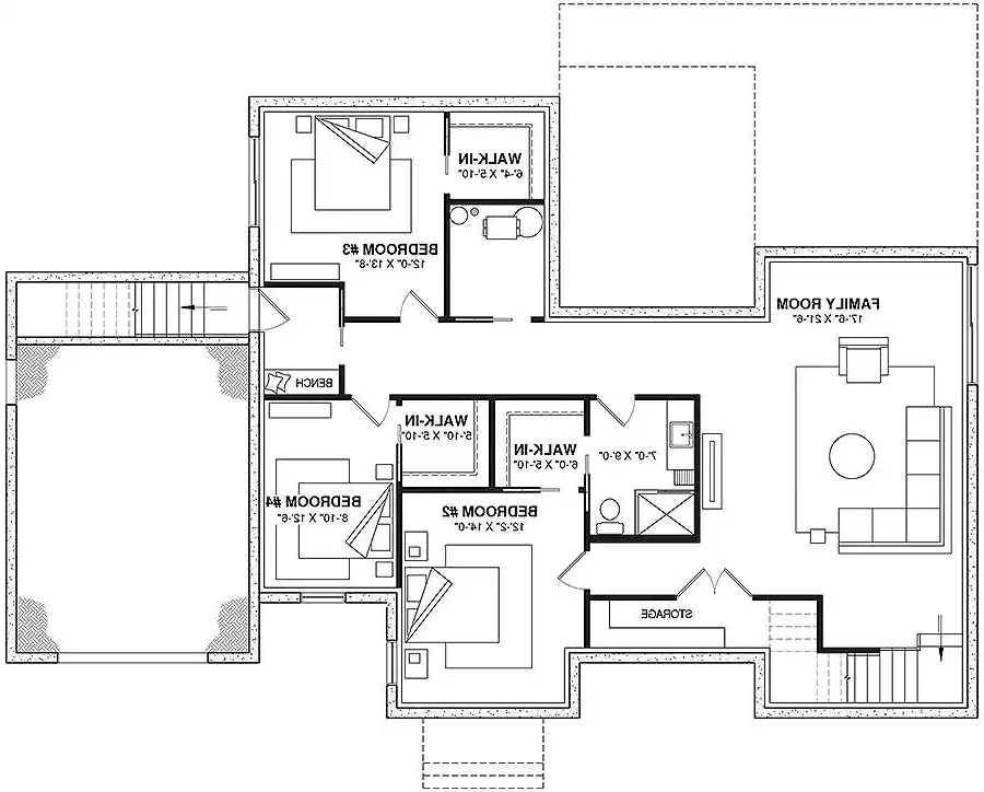
Floor Plans
Click to Zoom In on Floor Plan
 
House Plan 6697
House Plan Pricing
STEP 1 Select Your Package

PDF Single Build


Digital plans emailed to you in PDF format that allows for printing copies and sharing electronically with contractors, subs, decorators, and more. This package includes a license to build the home one time.

PDF Single Build $2,200
Most recommended package

3 Printed Sets + PDF


Includes 3 physical printed blueprint sets, shipped free via UPS within the U.S. Printed sets ship within 1 business day and are delivered within 3 – 5 business days. A complimentary PDF plan set is also emailed within 1 business day for easy sharing and local printing. These plans may be used to construct one home.

3 Printed Sets + PDF $2,340
3 Printed Sets + PDF

CAD + PDF Single Build


This plan package is created in AutoCAD and delivered in .DWG format. CAD files are intended for use by design professionals, structural engineers, and builders to update plans for local building codes or to make revisions based on specific needs, lot requirements, and budget considerations. A complimentary PDF copy is included with this package for reference. CAD packages are delivered within 1 to 2 business days.
 
This package also comes with a copyright release for making revisions and printing unlimited copies.

For details on the specific CAD program used, please refer to the PLAN DETAILS section located above the floor plan on each plan page.

CAD + PDF Single Build $3,200
2D electronic editable computer files
STEP 2 Need To Reverse This Plan?
STEP 3 CHOOSE YOUR FOUNDATION
STEP 4 OPTIONAL ADD-ONS
Subtotal:
$2200
FREE SHIPPING
Please allow 3-5 business days for delivery of this plan Please check our PDFs NOW collection for plans that can be downloaded and received immediately or live chat us to help you find a similar plan available now.
 
Plan Details
See All Details
Finished Square Footage
1,561 Sq. Ft.
Main Level:
1,561 Sq. Ft.
Lower Level:
3,122 Sq. Ft.
Total:
Room Details
4
Bedrooms:
2
Full Baths:
1
Half Baths:
General House Information
1
Number of Stories:
64' 8"
Width:
41' 4"
Depth:
Single
Dwelling Number:
Unfinished Square Footage
438 Sq. Ft.
Garage:
24 Sq. Ft.
Front Porch:
208 Sq. Ft.
Deck:
GARAGE
Front
Garage Location:
1
Garage Size:
Exterior Style
Bungalow
Contemporary
Modern
Scandinavian
Collections
Canada
Florida
Luxury
Mountain
Open Floor Plan
Outdoor Living
Pet Lovers
Foundation
Crawlspace
Finished basement (included)
Floating slab
Monolithic slab
Framing Information
Truss
Roof Framing:
2x6
Exterior Wall Framing:
Insulation (R)
House And Ceiling Heights
9
First Floor Ceiling:
20' 11"
Maximum House Height:
Key Features
Arches
Attached
Dining Room
Double Vanity Sink
Fireplace
Formal LR
Foyer
Front Porch
Front-entry
Guest Suite
Home Office
Kitchen Island
Laundry 1st Fl
Primary Bdrm Main Floor
Mud Room
Nursery Room
Open Floor Plan
Outdoor Living Space
Rear Porch
Separate Tub and Shower
Suited for view lot
Walk-in Closet
Walk-in Pantry
Wine Cellar

Our Guarantees

  • Only the highest quality plans
  • Int’l Residential Code Compliant
  • Full structural details on all plans
  • Best plan price guarantee
  • Free modification Estimates
  • Builder-ready construction drawings
  • Expert advice from leading designers
  •  PDFs NOW!™ plans in minutes
  • 100% satisfaction guarantee
  • Free Home Building Organizer