House Plan: DFD-6786

See All 68 Photos > (photographs may reflect modified homes)
© copyright by designer
SQ FT
4,032
BEDS
4
BATHS
4.5
STORIES
1
CARS
3
PLANS FROM $2,330
For questions and help, live chat, email or call us at 877-895-5299
Floor Plans
Click to Zoom In on Floor Plan
 
About House Plan 6786:
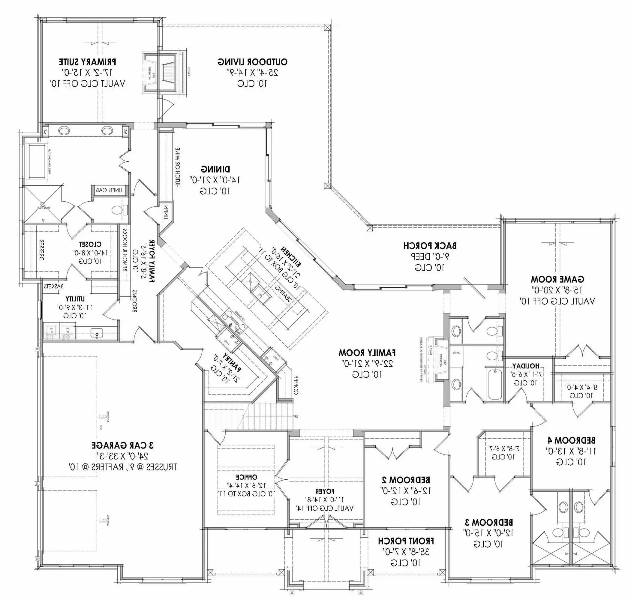
With a spacious 4,032-square-foot layout boasting defined-yet-connected spaces, split bedrooms, and plenty of finer design features, House Plan 6786 makes a great choice for anybody who wants a luxury European ranch to call home. The center of the floor plan is comprised of the family room, island kitchen, and dining area, which line up and wrap around the back porch in that order. Check out all the patio doors that practically erase the back walls! The primary suite is on side of this while two more bedroom suites and a bedroom with hall bath access are on the other along with a game room. There's also an office for the at-home worker. Remember those finer features? This design boasts beautiful boxed ceilings in the office and over the kitchen; vaulted ceilings in the foyer, primary suite, and game room; and fireplaces in the family room, primary bedroom, and back porch. Talk about a home that comes dressed to impress! 
House Plan Pricing
STEP 1 Select Your Package

PDF Single Build


Digital plans emailed to you in PDF format that allows for printing copies and sharing electronically with contractors, subs, decorators, and more. This package includes a license to build the home one time.

PDF Single Build $2,330
Most recommended package

5 Printed Sets + PDF


Includes 5 physical printed blueprint sets, shipped free via UPS within the U.S. Printed sets ship within 1 business day and are delivered within 3 – 5 business days. A complimentary PDF plan set is also emailed within 1 business day for easy sharing and local printing. These plans may be used to construct one home.

5 Printed Sets + PDF $2,680
5 Printed Sets + PDF

PDF Unlimited Build


Digital plans with an unlimited build license emailed in PDF format, that allows for printing copies on a home printer or local print shop and sharing with contractors, subs, decorators and more 

PDF Unlimited Build $2,965
Digital plans including unlimited build license

CAD + PDF Unlimited Build


This plan package is created in AutoCAD and delivered in .DWG format. CAD files are intended for use by design professionals, structural engineers, and builders to update plans for local building codes or to make revisions based on specific needs, lot requirements, and budget considerations. A complimentary PDF copy is included with this package for reference. CAD packages are delivered within 1 to 2 business days.
 
This package also comes with a multi-use building license, granting permission to construct the home an unlimited number of times, along with a copyright release for making revisions and printing unlimited copies.
 
For details on the specific CAD program used, please refer to the PLAN DETAILS section located above the floor plan on each plan page.

CAD + PDF Unlimited Build $3,385
2D electronic editable computer files
STEP 2 Need To Reverse This Plan?
STEP 3 CHOOSE YOUR FOUNDATION
STEP 4 OPTIONAL ADD-ONS
Subtotal:
$2330
FREE SHIPPING
 
Plan Details
See All Details
Finished Square Footage
4,032 Sq. Ft.
Main Level:
4,032 Sq. Ft.
Total:
Room Details
4
Bedrooms:
4
Full Baths:
1
Half Baths:
General House Information
1
Number of Stories:
89' 5"
Width:
85' 10"
Depth:
Single
Dwelling Number:
2nd Floor
Bonus Access:
Unfinished Square Footage
845 Sq. Ft.
Garage:
275 Sq. Ft.
Front Porch:
761 Sq. Ft.
Rear Porch:
573 Sq. Ft.
Bonus Room:
GARAGE
Front
Garage Location:
3
Garage Size:
Exterior Style
Country
European
Farmhouse
French Country
Collections
Kitchens
Luxury
Primary Suites
Mountain
Open Floor Plan
Outdoor Living
Split Bedroom
Tennessee
Foundation
Basement
Crawlspace
Monolithic Slab
Walkout Basement
Framing Information
Stick
Roof Framing:
2x4
Exterior Wall Framing:
Roof Pitch
9
Primary:
12
Secondary:
Insulation (R)
Per IRC Climate Zones
House And Ceiling Heights
10
First Floor Ceiling:
30' 8"
Maximum House Height:
Key Features
Arches
Bonus Room
Covered Front Porch
Covered Rear Porch
Dining Room
Double Vanity Sink
Family Room
Fireplace
Foyer
Home Office
Kitchen Island
Laundry 1st Fl
Primary Bdrm Main Floor
Mud Room
Open Floor Plan
Outdoor Living Space
Rec Room
Separate Tub and Shower
Side-entry
Split Bedrooms
Suited for view lot
Vaulted Ceilings
Vaulted Foyer
Vaulted Primary
Walk-in Closet
Walk-in Pantry

Our Guarantees

  • Only the highest quality plans
  • Int’l Residential Code Compliant
  • Full structural details on all plans
  • Best plan price guarantee
  • Free modification Estimates
  • Builder-ready construction drawings
  • Expert advice from leading designers
  •  PDFs NOW!™ plans in minutes
  • 100% satisfaction guarantee
  • Free Home Building Organizer

See terms opt out anytime