15% off ALL House Plans Sitewide
15% off ALL House Plans Sitewide

House Plan: DFD-6794

See All 13 Photos > (photographs may reflect modified homes)
© copyright by designer
SQ FT
3,880
BEDS
4
BATHS
3.5
STORIES
2
CARS
3
HOUSE PLANS SALE 
START AT  $1,797.75
For questions and help, live chat, email or call us at 877-895-5299
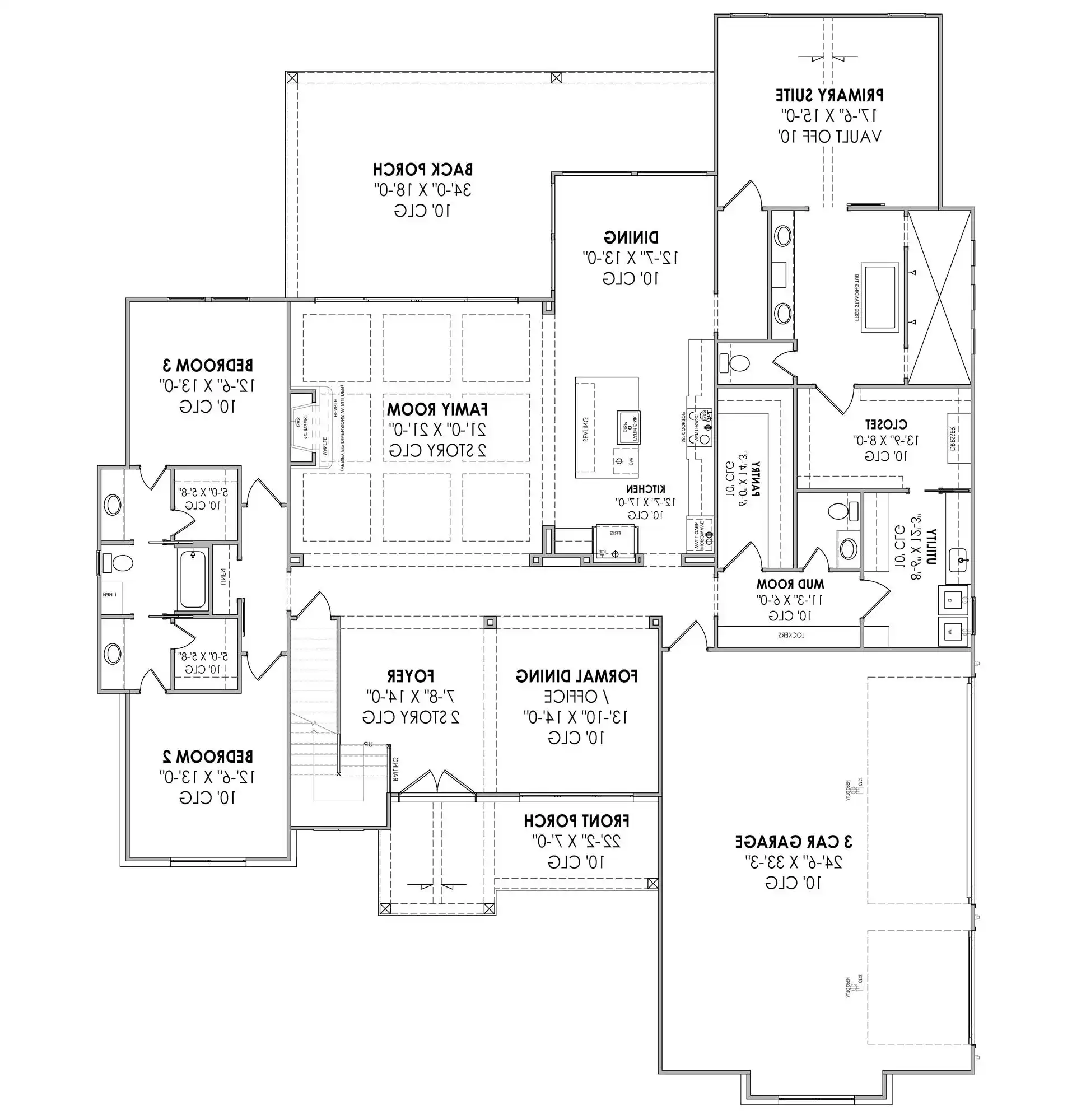
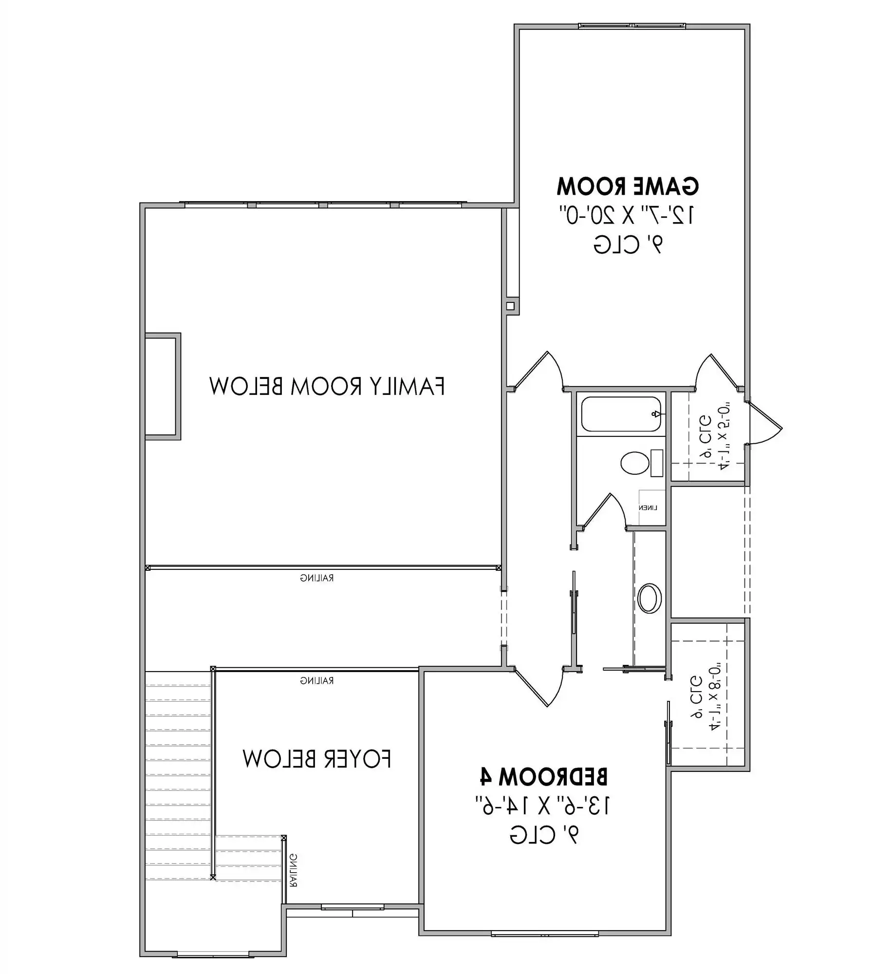
Floor Plans
Click to Zoom In on Floor Plan
 
About House Plan 6794:
House Plan 6794 is a spacious modern farmhouse full of possibilities! It offers 3,880 square feet with four bedrooms and four-and-a-half bathrooms across two stories. The main level includes formal dining, an island kitchen open to the two-story family room, a five-piece primary suite, an office/gym, and a large family foyer/mudroom that connects the rear side-entry garage and side entrance to the interior. Make sure not to miss the walk-in pantry, roomy laundry room, powder room with indoor/outdoor access, and the back porch with a barbecue kitchen. Head upstairs and you'll find three bedroom suites with window seats that the kids will love. The second story overlooks the family room, but if you'd rather have more square footage than volume, you can close in that space for a game room!
House Plan Pricing
STEP 1 Select Your Package

PDF Single Build


Digital plans emailed to you in PDF format that allows for printing copies and sharing electronically with contractors, subs, decorators, and more. This package includes a license to build the home one time.

PDF Single Build $2,115
Most recommended package

5 Printed Sets + PDF


Includes 5 physical printed blueprint sets, shipped free via UPS within the U.S. Printed sets ship within 1 business day and are delivered within 3 – 5 business days. A complimentary PDF plan set is also emailed within 1 business day for easy sharing and local printing. These plans may be used to construct one home.

5 Printed Sets + PDF $2,465
5 Printed Sets + PDF

PDF Unlimited Build


Digital plans with an unlimited build license emailed in PDF format, that allows for printing copies on a home printer or local print shop and sharing with contractors, subs, decorators and more 

PDF Unlimited Build $2,860
Digital plans including unlimited build license

CAD + PDF Unlimited Build


This plan package is created in AutoCAD and delivered in .DWG format. CAD files are intended for use by design professionals, structural engineers, and builders to update plans for local building codes or to make revisions based on specific needs, lot requirements, and budget considerations. A complimentary PDF copy is included with this package for reference. CAD packages are delivered within 1 to 2 business days.
 
This package also comes with a multi-use building license, granting permission to construct the home an unlimited number of times, along with a copyright release for making revisions and printing unlimited copies.
 
For details on the specific CAD program used, please refer to the PLAN DETAILS section located above the floor plan on each plan page.

CAD + PDF Unlimited Build $3,175
2D electronic editable computer files
STEP 2 Need To Reverse This Plan?
STEP 3 CHOOSE YOUR FOUNDATION
STEP 4 OPTIONAL ADD-ONS
Subtotal:
$2115
FREE SHIPPING
 
Plan Details
See All Details
Finished Square Footage
3,061 Sq. Ft.
Main Level:
819 Sq. Ft.
Upper Level:
3,880 Sq. Ft.
Total:
Room Details
4
Bedrooms:
3
Full Baths:
1
Half Baths:
General House Information
2
Number of Stories:
69' 7"
Width:
86' 7"
Depth:
Single
Dwelling Number:
Unfinished Square Footage
560 Sq. Ft.
Garage:
172 Sq. Ft.
Front Porch:
483 Sq. Ft.
Rear Porch:
GARAGE
Front
Garage Location:
3
Garage Size:
Exterior Style
Country
Craftsman
Farmhouse
Modern Farmhouse
Collections
Kitchens
Luxury
Primary Suites
Mountain
Open Floor Plan
Split Bedroom
Foundation
Basement
Crawlspace
Monolithic Slab
Walkout Basement
Framing Information
Stick
Roof Framing:
2x4
Exterior Wall Framing:
Roof Pitch
9
Primary:
1.5
Secondary:
Insulation (R)
Per IRC Climate Zones
House And Ceiling Heights
10
First Floor Ceiling:
9
Second Floor Ceiling:
33' 1"
Maximum House Height:
Key Features
2 Story Volume
Arches
Covered Front Porch
Covered Rear Porch
Dining Room
Double Vanity Sink
Family Room
Fireplace
Foyer
Home Office
Kitchen Island
Laundry 1st Fl
Loft / Balcony
L-Shaped
Primary Bdrm Main Floor
Mud Room
Open Floor Plan
Rec Room
Separate Tub and Shower
Side-entry
Split Bedrooms
Suited for view lot
Vaulted Ceilings
Vaulted Primary
Walk-in Closet
Walk-in Pantry

Our Guarantees

  • Only the highest quality plans
  • Int’l Residential Code Compliant
  • Full structural details on all plans
  • Best plan price guarantee
  • Free modification Estimates
  • Builder-ready construction drawings
  • Expert advice from leading designers
  •  PDFs NOW!™ plans in minutes
  • 100% satisfaction guarantee
  • Free Home Building Organizer