20% off ALL House Plans Sitewide
20% off ALL House Plans Sitewide

House Plan: DFD-6820

See All 11 Photos > (photographs may reflect modified homes)
© copyright by designer
SQ FT
3,459
BEDS
4
BATHS
3.5
STORIES
2
CARS
3
HOUSE PLANS SALE 
START AT  $960.00
For questions and help, live chat, email or call us at 877-895-5299
Floor Plans
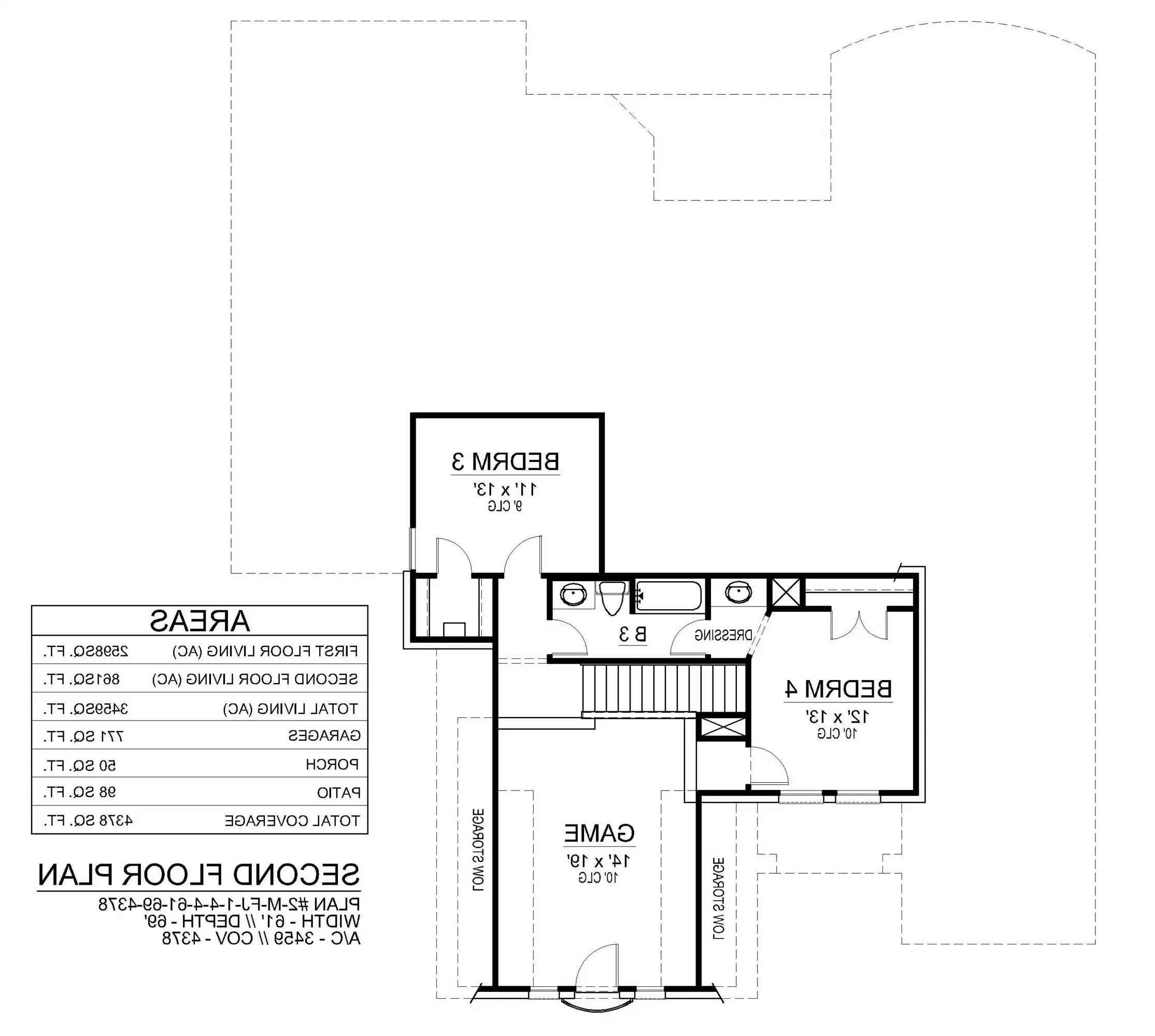
Click to Zoom In on Floor Plan
 
About House Plan 6820:
This two-story traditional luxury house plan, when you enter the foyer you can see all the way to the patio through the family and dining room. The Study accompanies these rooms and is located to the left of the foyer. To the left of the family room is the Master Suite, which has 12' high trey ceilings and a luxurious master bath that features a spacious wardrobe, a garden tub, a separate shower and his and hers vanities. The kitchen opens to the family room and breakfast nook, separated only by the breakfast bar. The kitchen has easy access to the dining room through the butlery, perfect for serving dinner for family and friends. The family bedroom just off of the breakfast nook would make a perfect in-law suite, guest room or teen suite that is complete with access to a one-car garage. On the second floor is two family bedrooms and the sizable game room, they all share one full bathroom, completing this luxury home.
House Plan Pricing
STEP 1 Select Your Package

PDF Single Build


Digital plans emailed to you in PDF format that allows for printing copies and sharing electronically with contractors, subs, decorators, and more. This package includes a license to build the home one time.

PDF Single Build $1,200
Most recommended package

CAD + PDF Single Build


CAD files are a complete set of construction drawings delivered electronically. They can be used for any type of modification—including major design changes and engineering—and include a release granting permission to modify the plan. Most CAD plan orders are emailed the same or next business day.
 
This package also comes with a PDF set of plans and a copyright release for making modifications and printing unlimited copies.
 
CAD files are provided in .dwg format. For details on the specific CAD program used, please refer to the PLAN DETAILS section located above the floor plan on each plan’s page.

CAD + PDF Single Build $1,800
2D electronic editable computer files

5 Printed Sets


Five Printed Sets of Residential Construction Drawings are typically 24” x 36” documents and come with a license to construct a single residence shipped to a physical address. Keep in mind PDF Plan Packages are our most popular choice which allows you to print as many copies as you need and to electronically send files to your builder, subcontractors, etc.

5 Printed Sets $1,800
Five printed sets of house plans
STEP 2 Need To Reverse This Plan?
STEP 3 CHOOSE YOUR FOUNDATION
STEP 4 OPTIONAL ADD-ONS
Subtotal:
$1200
FREE SHIPPING
 
Plan Details
See All Details
Finished Square Footage
2,598 Sq. Ft.
Main Level:
861 Sq. Ft.
Upper Level:
3,459 Sq. Ft.
Total:
Room Details
4
Bedrooms:
3
Full Baths:
1
Half Baths:
General House Information
2
Number of Stories:
61' 0"
Width:
69' 0"
Depth:
Single
Dwelling Number:
Unfinished Square Footage
771 Sq. Ft.
Garage:
GARAGE
Front
Garage Location:
3
Garage Size:
Exterior Style
European
Traditional
Collections
In-Law Suite
Luxury
Old House Classics
Open Floor Plan
Split Bedroom
Foundation
Crawlspace
Slab
Framing Information
Stick
Roof Framing:
2x4
Exterior Wall Framing:
Roof Pitch
9
Primary:
Insulation (R)
0
Exterior Wall:
0
Interior Wall:
0
Ceiling:
0
Floor:
House And Ceiling Heights
10
First Floor Ceiling:
9
Second Floor Ceiling:
33' 0"
Maximum House Height:
Key Features
Attached
Butler's Pantry
Covered Front Porch
Covered Rear Porch
Dining Room
Double Vanity Sink
Family Room
Fireplace
Foyer
Front-entry
Home Office
Kitchen Island
Laundry 1st Fl
Library/Media Rm
Primary Bdrm Main Floor
Nook / Breakfast Area
Peninsula / Eating Bar
Separate Tub and Shower
Side-entry
Slab
Split Bedrooms
Walk-in Closet

Our Guarantees

  • Only the highest quality plans
  • Int’l Residential Code Compliant
  • Full structural details on all plans
  • Best plan price guarantee
  • Free modification Estimates
  • Builder-ready construction drawings
  • Expert advice from leading designers
  •  PDFs NOW!™ plans in minutes
  • 100% satisfaction guarantee
  • Free Home Building Organizer

See terms opt out anytime