House Plan: DFD-6978

See All 3 Photos > (photographs may reflect modified homes)
© copyright by designer
SQ FT
4,585
BEDS
4
BATHS
3.5
STORIES
2
CARS
4
PLANS FROM $2,750
For questions and help, live chat, email or call us at 877-895-5299
Floor Plans
Click to Zoom In on Floor Plan
 
About House Plan 6978:
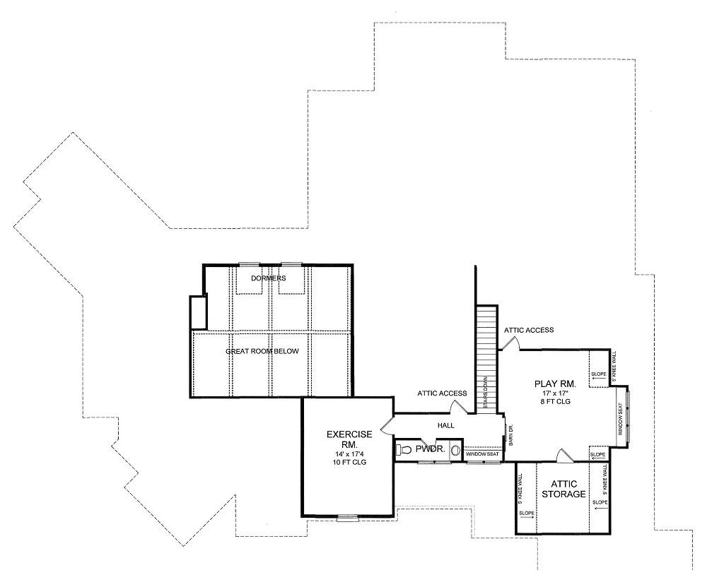
House Plan 6978 is a luxury Tuscan residence designed for refined indoor-outdoor living. The foyer leads into a spectacular cathedral-ceiling great room, framed by stone and beams, and open to a curved kitchen layout that encourages gathering. The primary bedroom suite sits in its own wing for privacy and includes a spacious bath and dressing area. Bedrooms 3 and 4 share a Jack-and-Jill layout, while a private guest suite near the front of the home enhances flexibility. Outdoor living shines with multiple covered patios, a grill zone, fire pit seating, and a layout tailored for a pool courtyard. The second floor provides a play room, exercise room, powder room, and walk-in storage. With 4 garage bays and a thoughtful mudroom drop zone, this home blends Tuscan charm with modern function.
House Plan Pricing
STEP 1 Select Your Package

PDF Bid Set


Home plans stamped "NOT FOR CONSTRUCTION" for cost estimating and bidding purposes only; a minimum 5 set plan package must be purchased within 90 days for a license to build plan set; a credit will be applied towards your house plan upgrade

PDF Bid Set $1,740
Digital set of plans for bidding purposes only

PDF Single Build


Digital plans emailed to you in PDF format that allows for printing copies and sharing electronically with contractors, subs, decorators, and more. This package includes a license to build the home one time.

PDF Single Build $2,750
Most recommended package

PDF Single Build


Digital plans emailed to you in PDF format that allows for printing copies and sharing electronically with contractors, subs, decorators, and more. This package includes a license to build the home one time.

PDF Single Build $3,795
Most recommended package

CAD + PDF Single Build


This plan package is created in AutoCAD and delivered in .DWG format. CAD files are intended for use by design professionals, structural engineers, and builders to update plans for local building codes or to make revisions based on specific needs, lot requirements, and budget considerations. A complimentary PDF copy is included with this package for reference. CAD packages are delivered within 1 to 2 business days.
 
This package also comes with a copyright release for making revisions and printing unlimited copies.

For details on the specific CAD program used, please refer to the PLAN DETAILS section located above the floor plan on each plan page.

CAD + PDF Single Build $4,375
2D electronic editable computer files
STEP 2 Need To Reverse This Plan?
STEP 3 CHOOSE YOUR FOUNDATION
STEP 4 OPTIONAL ADD-ONS
Subtotal:
$2750
FREE SHIPPING
 
Plan Details
See All Details
Finished Square Footage
3,855 Sq. Ft.
Main Level:
730 Sq. Ft.
Upper Level:
4,585 Sq. Ft.
Total:
Room Details
4
Bedrooms:
3
Full Baths:
2
Half Baths:
General House Information
2
Number of Stories:
103' 6"
Width:
88' 5"
Depth:
Single
Dwelling Number:
Unfinished Square Footage
1417 Sq. Ft.
Garage:
510 Sq. Ft.
Porch:
GARAGE
Front
Garage Location:
4
Garage Size:
Exterior Style
Country
Craftsman
European
French Country
Traditional
Tuscan
Collections
Exclusive
Kitchens
Luxury
Primary Suites
Mountain
Open Floor Plan
OtherCustom
Outdoor Living
Split Bedroom
Foundation
Basement
Crawl Space
Daylight Basement
Slab
Framing Information
Stick
Roof Framing:
2x4
Exterior Wall Framing:
Insulation (R)
0
Exterior Wall:
0
Interior Wall:
0
Ceiling:
0
Floor:
House And Ceiling Heights
10
First Floor Ceiling:
Key Features
2 Story Volume
Attached
Basement
Bonus Room
Covered Front Porch
Covered Rear Porch
Crawlspace
Dining Room
Double Vanity Sink
Exercise Room
Fireplace
Foyer
Front Porch
Front-entry
Great Room
Guest Suite
Home Office
Kitchen Island
Laundry 1st Fl
Library/Media Rm
Primary Bdrm Main Floor
Mud Room
Open Floor Plan
Peninsula / Eating Bar
Rear Porch
Rec Room
Separate Tub and Shower
Side-entry
Sitting Area
Slab
Split Bedrooms
Storage Space
Suited for view lot
Vaulted Ceilings
Walk-in Closet
Walk-in Pantry

Our Guarantees

  • Only the highest quality plans
  • Int’l Residential Code Compliant
  • Full structural details on all plans
  • Best plan price guarantee
  • Free modification Estimates
  • Builder-ready construction drawings
  • Expert advice from leading designers
  •  PDFs NOW!™ plans in minutes
  • 100% satisfaction guarantee
  • Free Home Building Organizer