15% off ALL House Plans Sitewide
15% off ALL House Plans Sitewide

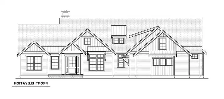
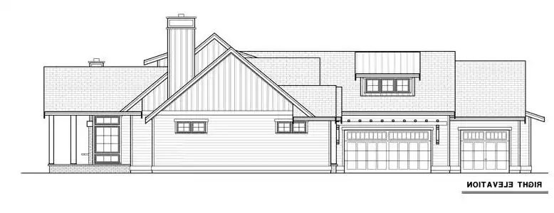
House Plan: DFD-7173

See All 8 Photos > (photographs may reflect modified homes)
© copyright by designer
SQ FT
3,201
BEDS
3
BATHS
2.5
STORIES
1
CARS
3
HOUSE PLANS SALE 
START AT  $1,487.50
For questions and help, live chat, email or call us at 877-895-5299
Floor Plans
Click to Zoom In on Floor Plan
 
About House Plan 7173:
This country farmhouse style plan is the best of both worlds. With 2,688 square feet of space, this home boasts everything from a 3-car garage, a great master suite, and stunning outdoor space; and everything in between. A beautiful kitchen and over-sized island are directly off of the dining room and the hearth room, which features an indoor/outdoor fireplace and reading nook. 3 bedrooms, including the master suite, adorn the main floor, while the second floor houses a great bonus room space, perfect for a playroom or family space. The expansive outdoor space is the true beauty of this home, and it has no shortage or areas to entertain and enjoy the outdoors while being free from the elements.
House Plan Pricing
STEP 1 Select Your Package

PDF Bid Set


Home plans stamped "NOT FOR CONSTRUCTION" for cost estimating and bidding purposes only; a minimum 5 set plan package must be purchased within 90 days for a license to build plan set; a credit will be applied towards your house plan upgrade

PDF Bid Set $875
Digital set of plans for bidding purposes only

PDF Single Build


Digital plans emailed to you in PDF format that allows for printing copies and sharing electronically with contractors, subs, decorators, and more. This package includes a license to build the home one time.

PDF Single Build $1,750
Most recommended package

5 Printed Sets + PDF


Includes 5 physical printed blueprint sets, shipped free via UPS within the U.S. Printed sets ship within 1 business day and are delivered within 3 – 5 business days. A complimentary PDF plan set is also emailed within 1 business day for easy sharing and local printing. These plans may be used to construct one home.

5 Printed Sets + PDF $2,200
5 Printed Sets + PDF

CAD + PDF Single Build


This plan package is created in AutoCAD and delivered in .DWG format. CAD files are intended for use by design professionals, structural engineers, and builders to update plans for local building codes or to make revisions based on specific needs, lot requirements, and budget considerations. A complimentary PDF copy is included with this package for reference. CAD packages are delivered within 1 to 2 business days.
 
This package also comes with a copyright release for making revisions and printing unlimited copies.

For details on the specific CAD program used, please refer to the PLAN DETAILS section located above the floor plan on each plan page.

CAD + PDF Single Build $2,250
2D electronic editable computer files
STEP 2 Need To Reverse This Plan?
STEP 3 CHOOSE YOUR FOUNDATION
STEP 4 OPTIONAL ADD-ONS
Subtotal:
$1750
FREE SHIPPING
 
Plan Details
See All Details
Finished Square Footage
2,688 Sq. Ft.
Main Level:
3,201 Sq. Ft.
Total:
Room Details
3
Bedrooms:
2
Full Baths:
1
Half Baths:
General House Information
1
Number of Stories:
79' 0"
Width:
81' 0"
Depth:
Single
Dwelling Number:
Unfinished Square Footage
926 Sq. Ft.
Garage:
110 Sq. Ft.
Porch:
656 Sq. Ft.
Patio:
GARAGE
Front
Garage Location:
3
Garage Size:
Exterior Style
Contemporary
Country
Craftsman
Farmhouse
Ranch
Collections
Architects Choice
Kitchens
Open Floor Plan
Outdoor Living
Foundation
Crawl Space (no charge)
Framing Information
Truss
Roof Framing:
2x6
Exterior Wall Framing:
Roof Pitch
10:12
Primary:
4:12
Secondary:
Insulation (R)
0
Exterior Wall:
0
Interior Wall:
0
Ceiling:
0
Floor:
House And Ceiling Heights
10
First Floor Ceiling:
26' 0"
Maximum House Height:
Key Features
Attached
Bonus Room
Butler's Pantry
Covered Front Porch
Covered Rear Porch
Crawlspace
Dining Room
Double Vanity Sink
Fireplace
Great Room
Home Office
Kitchen Island
Laundry 1st Fl
Primary Bdrm Main Floor
Nook / Breakfast Area
Open Floor Plan
Separate Tub and Shower
Side-entry
Vaulted Ceilings
Walk-in Closet

Our Guarantees

  • Only the highest quality plans
  • Int’l Residential Code Compliant
  • Full structural details on all plans
  • Best plan price guarantee
  • Free modification Estimates
  • Builder-ready construction drawings
  • Expert advice from leading designers
  •  PDFs NOW!™ plans in minutes
  • 100% satisfaction guarantee
  • Free Home Building Organizer