20% Off House Plans Sitewide Ends Sunday
20% Off House Plans Sitewide Ends Sunday

House Plan: DFD-7179

See All 2 Photos > (photographs may reflect modified homes)
© copyright by designer
SQ FT
4,125
BEDS
4
BATHS
3
STORIES
2
CARS
0
HOUSE PLANS SALE 
START AT  $1,996.00
For questions and help, live chat, email or call us at 877-895-5299
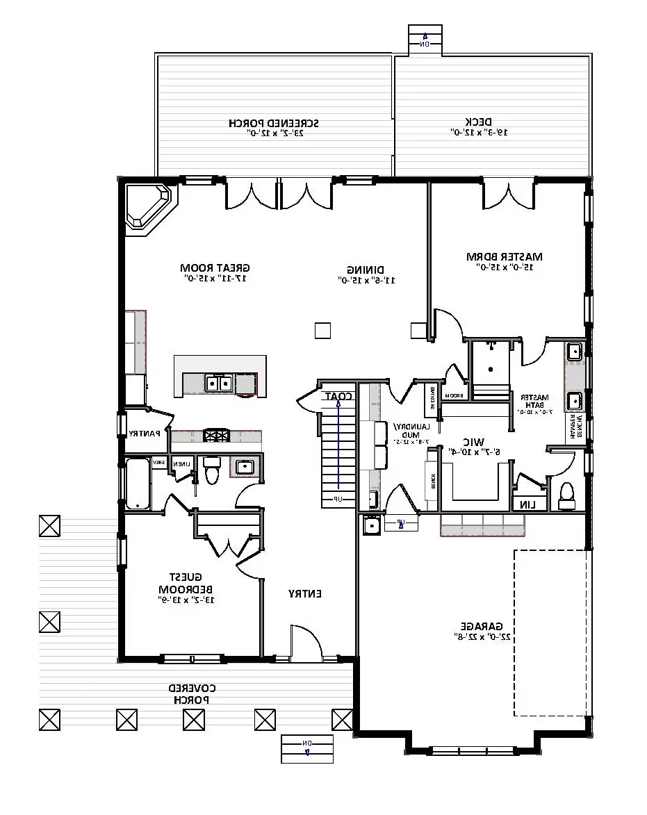
Floor Plans
Click to Zoom In on Floor Plan
 
About House Plan 7179:
Plenty of curb appeal is offered with stylish craftsman detail and a columned wrap around porch. The open concept
floor plan allows plenty of natural light flowing through the family room, kitchen and dining area. The generous
kitchen is well equipped with an eating bar, walk-in pantry an ample cabinets. A cozy fireplace and screened
porch access will make the family room a favorite gathering place. A private guest suite with a full bath is
conveniently located on the main level. The master suite, also on the main level, offers French doors leading out
to the deck, a large walk-in shower, double vanities and an oversized walk-in closet with direct laundry/mudroom
access. Two large family bedrooms share a hall bath on the 2nd floor. A home office/exercise room and
recreation/play area are also located on the 2nd floor.
House Plan Pricing
STEP 1 Select Your Package

PDF Single Build


Digital plans emailed to you in PDF format that allows for printing copies and sharing electronically with contractors, subs, decorators, and more. This package includes a license to build the home one time.

PDF Single Build $2,495
Immediate Delivery!
Most recommended package

5 Printed Sets + PDF


Digital plan emailed to you in PDF format that allows for printing copies on a home printer or local print shop and sharing with contractors, subs, decorators, and more. PLUS five printed sets shipped and delivered 3-5 business days.

5 Printed Sets + PDF $2,745
Immediate Delivery!
Digital plans plus 5 printed sets

CAD + PDF Single Build


CAD files are a complete set of construction drawings delivered electronically. They can be used for any type of modification—including major design changes and engineering—and include a release granting permission to modify the plan. Most CAD plan orders are emailed the same or next business day.
 
This package also comes with a PDF set of plans and a copyright release for making modifications and printing unlimited copies.
 
CAD files are provided in .dwg format. For details on the specific CAD program used, please refer to the PLAN DETAILS section located above the floor plan on each plan’s page.

CAD + PDF Single Build $2,995
Immediate Delivery!
2D electronic editable computer files

CAD + PDF Unlimited Build


CAD files are a complete set of construction drawings delivered electronically. They can be used for any type of modification—including major design changes and engineering—and include a release granting permission to modify the plan. Most CAD plan orders are emailed the same or next business day.
 
This package also comes with a PDF set of plans and a multi-use building license, granting permission to construct the home an unlimited number of times, along with a copyright release for making modifications and printing unlimited copies.
 
CAD files are provided in .dwg format. For details on the specific CAD program used, please refer to the PLAN DETAILS section located above the floor plan on each plan’s page.

CAD + PDF Unlimited Build $3,495
2D electronic editable computer files
STEP 2 Need To Reverse This Plan?
STEP 3 CHOOSE YOUR FOUNDATION
STEP 4 OPTIONAL ADD-ONS
Subtotal:
$2495
FREE SHIPPING
 
Plan Details
See All Details
Finished Square Footage
1,825 Sq. Ft.
Main Level:
1,180 Sq. Ft.
Upper Level:
4,125 Sq. Ft.
Total:
Room Details
4
Bedrooms:
3
Full Baths:
General House Information
2
Number of Stories:
45' 9"
Width:
55' 10"
Depth:
Single
Dwelling Number:
2nd Floor
Bonus Access:
Unfinished Square Footage
510 Sq. Ft.
Garage:
557 Sq. Ft.
Porch:
GARAGE
0
Garage Size:
Exterior Style
Bungalow
Cottage
Craftsman
Farmhouse
Collections
Kitchens
Luxury
Open Floor Plan
Outdoor Living
Foundation
Crawl Space
Daylight Basement
Slab
Unfinished Basement
Walk-Out Basement Option
Framing Information
Stick
Roof Framing:
2x6
Exterior Wall Framing:
Roof Pitch
8:12
Primary:
Roof Load
40
Live:
10
Dead:
Insulation (R)
0
Exterior Wall:
0
Interior Wall:
0
Ceiling:
0
Floor:
House And Ceiling Heights
9
First Floor Ceiling:
8
Second Floor Ceiling:
31' 10"
Maximum House Height:
Key Features
Basement
Bonus Room
Covered Front Porch
Covered Rear Porch
Crawlspace
Daylight Basement
Double Vanity Sink
Exercise Room
Family Room
Fireplace
Foyer
Front Porch
Great Room
Guest Suite
Home Office
In-law Suite
Kitchen Island
Laundry 1st Fl
Loft / Balcony
Primary Bdrm Main Floor
Mud Room
Open Floor Plan
Peninsula / Eating Bar
Rear Porch
Rec Room
Separate Tub and Shower
Slab
Walk-in Closet
Walk-in Pantry
Walkout Basement
Wraparound Porch

Our Guarantees

  • Only the highest quality plans
  • Int’l Residential Code Compliant
  • Full structural details on all plans
  • Best plan price guarantee
  • Free modification Estimates
  • Builder-ready construction drawings
  • Expert advice from leading designers
  •  PDFs NOW!™ plans in minutes
  • 100% satisfaction guarantee
  • Free Home Building Organizer