15% off ALL House Plans Sitewide
15% off ALL House Plans Sitewide

House Plan: DFD-7435

See All 28 Photos > (photographs may reflect modified homes)
© copyright by designer
SQ FT
1,878
BEDS
3
BATHS
2
STORIES
1
CARS
2
HOUSE PLANS SALE 
START AT  $1,487.50
For questions and help, live chat, email or call us at 877-895-5299
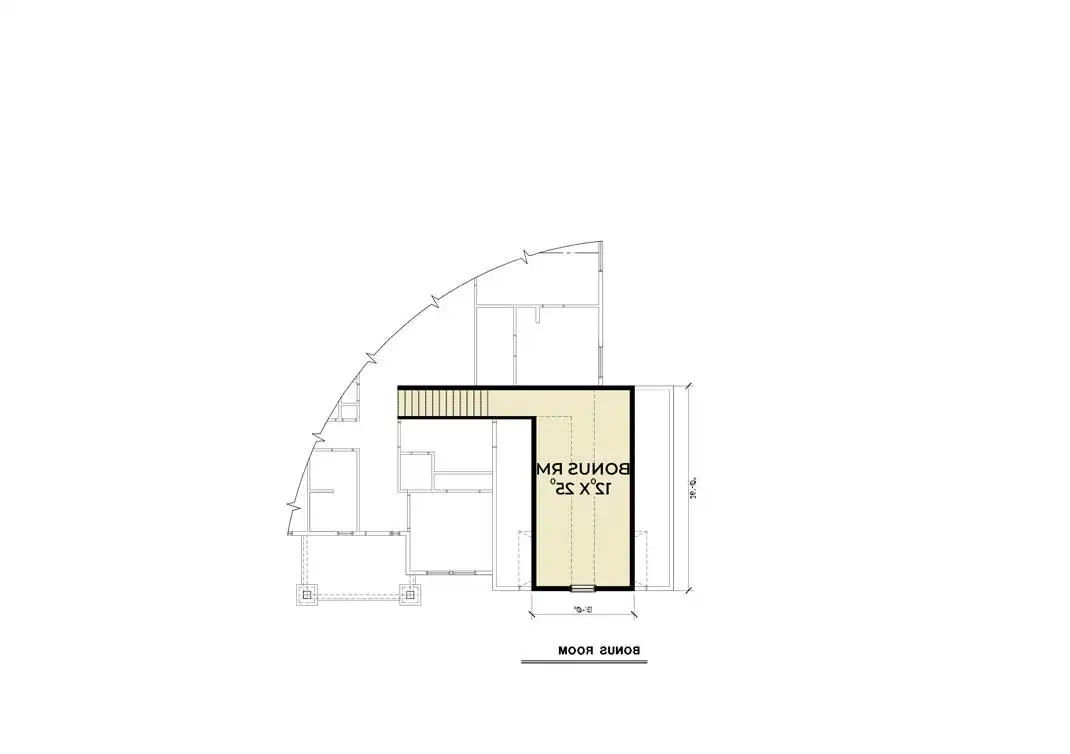
Floor Plans
Click to Zoom In on Floor Plan
 
About House Plan 7435:
This Modern style house plan offers 1,878 square feet, 3 bedrooms and 2 bathrooms, with a little bit of space for everyone.  Past the covered front porch, you enter on to the foyer and spacious den which can double as an office if necessary. From there you move past a convenient laundry room and a short hallway that provides access to two full bedrooms and a shared bathroom. The rear of the home is where all of the main living space is located, including the open family room, dining room and patio access, and country kitchen. Past the dining room a doorway leads to the master suite. Relax after a long day in the spa style bathroom before getting ready for a night out in the large walk-in closet and wardrobe. A spacious second floor bonus room provides a great area for a recreation room or cozy spot for family movie night, the possibilities for customization to your lifestyle are endless.
House Plan Pricing
STEP 1 Select Your Package

PDF Bid Set


Home plans stamped "NOT FOR CONSTRUCTION" for cost estimating and bidding purposes only; a minimum 5 set plan package must be purchased within 90 days for a license to build plan set; a credit will be applied towards your house plan upgrade

PDF Bid Set $875
Digital set of plans for bidding purposes only

PDF Single Build


Digital plans emailed to you in PDF format that allows for printing copies and sharing electronically with contractors, subs, decorators, and more. This package includes a license to build the home one time.

PDF Single Build $1,750
Most recommended package

5 Printed Sets + PDF


Includes 5 physical printed blueprint sets, shipped free via UPS within the U.S. Printed sets ship within 1 business day and are delivered within 3 – 5 business days. A complimentary PDF plan set is also emailed within 1 business day for easy sharing and local printing. These plans may be used to construct one home.

5 Printed Sets + PDF $2,200
5 Printed Sets + PDF

CAD + PDF Single Build


This plan package is created in AutoCAD and delivered in .DWG format. CAD files are intended for use by design professionals, structural engineers, and builders to update plans for local building codes or to make revisions based on specific needs, lot requirements, and budget considerations. A complimentary PDF copy is included with this package for reference. CAD packages are delivered within 1 to 2 business days.
 
This package also comes with a copyright release for making revisions and printing unlimited copies.

For details on the specific CAD program used, please refer to the PLAN DETAILS section located above the floor plan on each plan page.

CAD + PDF Single Build $2,250
2D electronic editable computer files
STEP 2 Need To Reverse This Plan?
STEP 3 CHOOSE YOUR FOUNDATION
STEP 4 OPTIONAL ADD-ONS
Subtotal:
$1750
FREE SHIPPING
 
Plan Details
See All Details
Finished Square Footage
1,878 Sq. Ft.
Main Level:
1,878 Sq. Ft.
Total:
Room Details
3
Bedrooms:
2
Full Baths:
General House Information
1
Number of Stories:
57' 0"
Width:
51' 0"
Depth:
Single
Dwelling Number:
Unfinished Square Footage
579 Sq. Ft.
Garage:
359 Sq. Ft.
Bonus Room:
GARAGE
Front
Garage Location:
2
Garage Size:
Exterior Style
Country
Craftsman
Ranch
Collections
Affordable
Budget
Builders
First Home
Open Floor Plan
Split Bedroom
Foundation
Crawl Space (no charge)
Framing Information
Stick
Roof Framing:
2x6
Exterior Wall Framing:
Roof Pitch
12:12
Primary:
6:12
Secondary:
Insulation (R)
0
Exterior Wall:
0
Interior Wall:
0
Ceiling:
0
Floor:
House And Ceiling Heights
9
First Floor Ceiling:
23' 5"
Maximum House Height:
Key Features
Attached
Bonus Room
Covered Front Porch
Crawlspace
Dining Room
Double Vanity Sink
Family Room
Fireplace
Home Office
Kitchen Island
Laundry 1st Fl
Library/Media Rm
Primary Bdrm Main Floor
Open Floor Plan
Rear Porch
Separate Tub and Shower
Vaulted Ceilings
Walk-in Closet

Our Guarantees

  • Only the highest quality plans
  • Int’l Residential Code Compliant
  • Full structural details on all plans
  • Best plan price guarantee
  • Free modification Estimates
  • Builder-ready construction drawings
  • Expert advice from leading designers
  •  PDFs NOW!™ plans in minutes
  • 100% satisfaction guarantee
  • Free Home Building Organizer