20% off ALL House Plans Sitewide
20% off ALL House Plans Sitewide

House Plan: DFD-7548

See All 16 Photos > (photographs may reflect modified homes)
© copyright by designer
SQ FT
7,714
BEDS
4
BATHS
5.5
STORIES
2
CARS
4
HOUSE PLANS SALE 
START AT  $2,320.00
For questions and help, live chat, email or call us at 877-895-5299
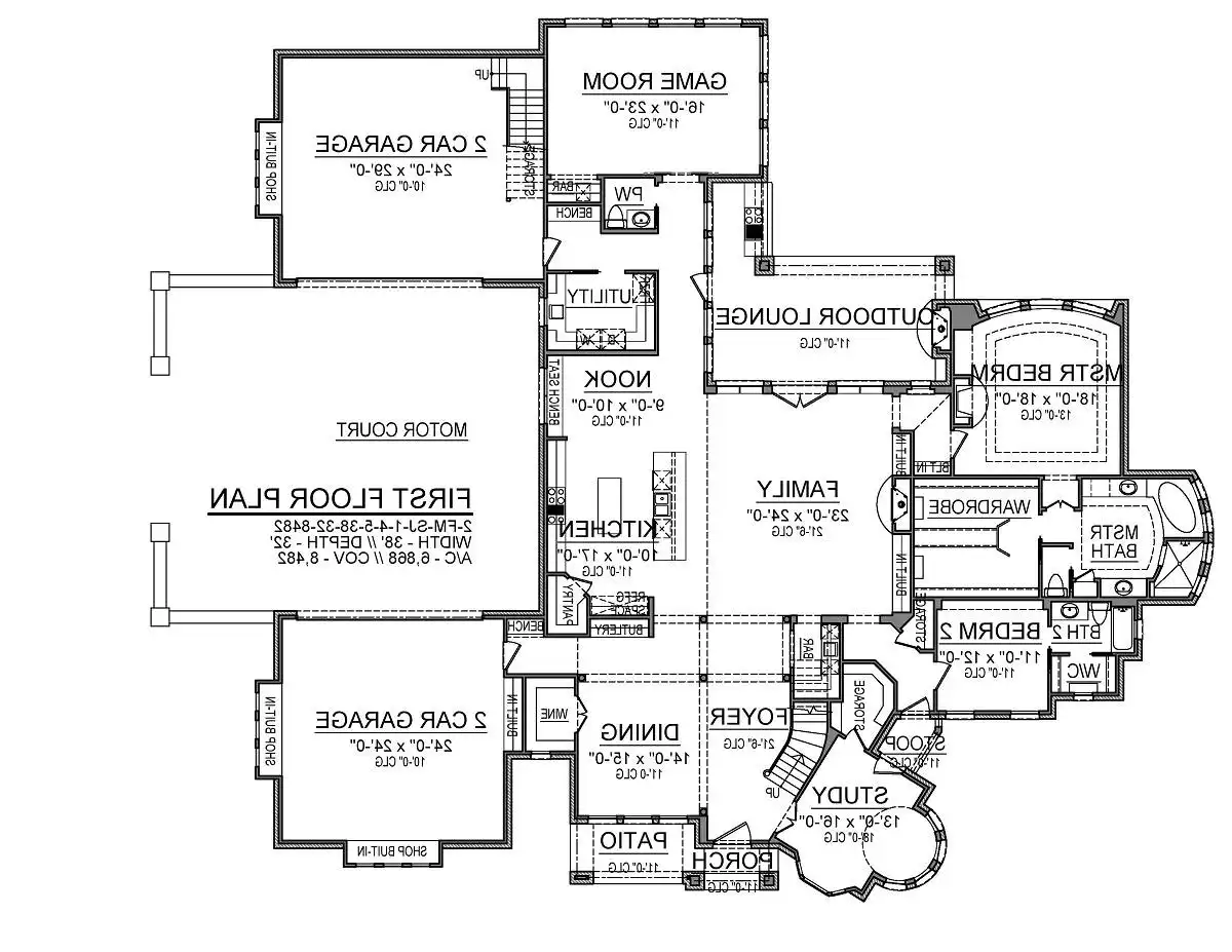
Floor Plans
Click to Zoom In on Floor Plan
 
About House Plan 7548:
This 7,714 square feet luxury castle house plan welcomes you with a two-story covered entry. Stepping into the foyer, you'll find the study on the left and dining room on your right.  Ahead is the two-story family room, chef ready kitchen, with an island, breakfast nook and walk-in pantry.  Moving towards the rear of the home, you'll find the game room, with its own bar, that also has access to the nearby powder room and rear garage.  You'll also pass by the utility room.  The master bedroom is on the left side of the home and includes a walk-in wardrobe, master bath with dual vanity sinks and separate tub/shower.  The master bedroom has great views of the backyard and outdoor lounge areas, as well as a fireplace to provide a warm atmosphere on those chilly days and evenings. The main floor also features a second bedroom, complete with its own full bath and walk-in closet.  Moving upstairs, you'll find bedrooms 3 and 4, as well as their accompanying full baths, along with a billiard room, lounge, office and media room.  Some of these rooms on the second level offer views of the rooms below.  This incredible 7,714 square foot castle plan welcomes you with a two-story covered entry.  Oh my!  Stepping into the foyer, you'll find the study on the left and dining room on your right.  Ahead is the two-story family room, chef ready kitchen, with an island, breakfast nook and walk-in pantry.  Moving towards the rear of the home, you'll find the game room, with its own bar, that also has access to the nearby powder room and rear garage.  You'll also pass by the utility room.  The master bedroom is on the left side of the home and includes a walk-in wardrobe, master bath with dual vanity sinks and separate tub/shower.  The master bedroom has great views of the backyard and outdoor lounge areas, as well as a fireplace to provide a warm atmosphere on those chilly days and evenings. The main floor also features a second bedroom, complete with its own full bath and walk-in closet.  Moving upstairs, you'll find bedrooms 3 and 4, as well as their accompanying full baths, along with a billiard room, lounge, office and media room.  Some of these rooms on the second level offer views of the rooms below.  
House Plan Pricing
STEP 1 Select Your Package

PDF Single Build


Digital plans emailed to you in PDF format that allows for printing copies and sharing electronically with contractors, subs, decorators, and more. This package includes a license to build the home one time.

PDF Single Build $2,900
Most recommended package

CAD + PDF Single Build


CAD files are a complete set of construction drawings delivered electronically. They can be used for any type of modification—including major design changes and engineering—and include a release granting permission to modify the plan. Most CAD plan orders are emailed the same or next business day.
 
This package also comes with a PDF set of plans and a copyright release for making modifications and printing unlimited copies.
 
CAD files are provided in .dwg format. For details on the specific CAD program used, please refer to the PLAN DETAILS section located above the floor plan on each plan’s page.

CAD + PDF Single Build $4,440
2D electronic editable computer files

5 Printed Sets


Five Printed Sets of Residential Construction Drawings are typically 24” x 36” documents and come with a license to construct a single residence shipped to a physical address. Keep in mind PDF Plan Packages are our most popular choice which allows you to print as many copies as you need and to electronically send files to your builder, subcontractors, etc.

5 Printed Sets $4,440
Five printed sets of house plans
STEP 2 Need To Reverse This Plan?
STEP 3 CHOOSE YOUR FOUNDATION
STEP 4 OPTIONAL ADD-ONS
Subtotal:
$2900
FREE SHIPPING
 
Plan Details
See All Details
Finished Square Footage
4,061 Sq. Ft.
Main Level:
3,653 Sq. Ft.
Upper Level:
7,714 Sq. Ft.
Total:
Room Details
4
Bedrooms:
5
Full Baths:
1
Half Baths:
General House Information
2
Number of Stories:
104' 0"
Width:
96' 0"
Depth:
Single
Dwelling Number:
Unfinished Square Footage
1454 Sq. Ft.
Garage:
GARAGE
Side
Garage Location:
4
Garage Size:
Exterior Style
European
French Country
Collections
In-Law Suite
Kitchens
Luxury
Primary Suites
Open Floor Plan
Outdoor Living
Split Bedroom
Vacation
Foundation
Slab
Framing Information
Truss
Roof Framing:
2x6
Exterior Wall Framing:
Roof Pitch
12
Primary:
18
Secondary:
Insulation (R)
0
Exterior Wall:
0
Interior Wall:
0
Ceiling:
0
Floor:
House And Ceiling Heights
11
First Floor Ceiling:
10
Second Floor Ceiling:
40' 0"
Maximum House Height:
Key Features
2 Story Volume
Attached
Covered Front Porch
Covered Rear Porch
Dining Room
Double Vanity Sink
Family Room
Fireplace
Foyer
Front-entry
Guest Suite
Home Office
Kitchen Island
Laundry 1st Fl
Library/Media Rm
Loft / Balcony
Primary Bdrm Main Floor
Nook / Breakfast Area
Open Floor Plan
Outdoor Kitchen
Outdoor Living Space
Peninsula / Eating Bar
Rear-entry
Separate Tub and Shower
Slab
Split Bedrooms
Vaulted Ceilings
Walk-in Closet
Walk-in Pantry

Our Guarantees

  • Only the highest quality plans
  • Int’l Residential Code Compliant
  • Full structural details on all plans
  • Best plan price guarantee
  • Free modification Estimates
  • Builder-ready construction drawings
  • Expert advice from leading designers
  •  PDFs NOW!™ plans in minutes
  • 100% satisfaction guarantee
  • Free Home Building Organizer

See terms opt out anytime