17% off ALL House Plans Sitewide
17% off ALL House Plans Sitewide

House Plan: DFD-7890

See All 4 Photos > (photographs may reflect modified homes)
© copyright by designer
SQ FT
2,722
BEDS
4
BATHS
3.5
STORIES
2
CARS
3
HOUSE PLANS SALE 
START AT  $1,099.75
For questions and help, live chat, email or call us at 877-895-5299
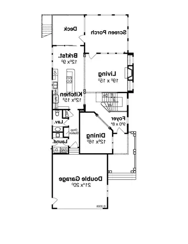
Floor Plans
Click to Zoom In on Floor Plan
 
House Plan 7890
House Plan Pricing
STEP 1 Select Your Package

PDF Bid Set


Home plans stamped "NOT FOR CONSTRUCTION" for cost estimating and bidding purposes only; a minimum 5 set plan package must be purchased within 90 days for a license to build plan set; a credit will be applied towards your house plan upgrade

PDF Bid Set $850
Digital set of plans for bidding purposes only

PDF Single Build


Digital plans emailed to you in PDF format that allows for printing copies and sharing electronically with contractors, subs, decorators, and more. This package includes a license to build the home one time.

PDF Single Build $1,325
Most recommended package

5 Printed Sets


Five Printed Sets of Residential Construction Drawings are typically 24” x 36” documents and come with a license to construct a single residence shipped to a physical address. Keep in mind PDF Plan Packages are our most popular choice which allows you to print as many copies as you need and to electronically send files to your builder, subcontractors, etc.

5 Printed Sets $1,450
Five printed sets of house plans

CAD + PDF Single Build


CAD files are a complete set of construction drawings delivered electronically. They can be used for any type of modification—including major design changes and engineering—and include a release granting permission to modify the plan. Most CAD plan orders are emailed the same or next business day.
 
This package also comes with a PDF set of plans and a copyright release for making modifications and printing unlimited copies.
 
CAD files are provided in .dwg format. For details on the specific CAD program used, please refer to the PLAN DETAILS section located above the floor plan on each plan’s page.

CAD + PDF Single Build $1,988
2D electronic editable computer files
STEP 2 CHOOSE YOUR FOUNDATION
STEP 3 OPTIONAL ADD-ONS
Subtotal:
$1325
FREE SHIPPING

Note: Ask Designer for PDF file. Changes are in progress.
 
Plan Details
See All Details
Finished Square Footage
1,202 Sq. Ft.
Main Level:
1,520 Sq. Ft.
Upper Level:
1,202 Sq. Ft.
Lower Level:
2,722 Sq. Ft.
Total:
Room Details
4
Bedrooms:
3
Full Baths:
2
Half Baths:
General House Information
2
Number of Stories:
33' 0"
Width:
76' 2"
Depth:
Single
Dwelling Number:
None
Bonus Access:
Unfinished Square Footage
479 Sq. Ft.
Garage:
156 Sq. Ft.
Porch:
152 Sq. Ft.
Deck:
GARAGE
Front
Garage Location:
3
Garage Size:
Exterior Style
Cottage
European
Victorian
Collections
Old House Classics
Open Floor Plan
Split Bedroom
Foundation
WALK OUT BASEMENT
Walk-Out Basement Standard
Any other bsmt. type requires changes.
Framing Information
Stick
Roof Framing:
2x4
Exterior Wall Framing:
Roof Pitch
7/12
Primary:
7/12
Gable:
3/12
Porch:
Roof Load
20
Live:
10
Dead:
Insulation (R)
Per IRC Climate Zones
House And Ceiling Heights
10
First Floor Ceiling:
9
Second Floor Ceiling:
44' 1"
Maximum House Height:
Key Features
Attached
Basement
Covered Front Porch
Covered Rear Porch
Deck
Dining Room
Double Vanity Sink
Drive-under
Fireplace
Foyer
Front Porch
Front-entry
Great Room
Kitchen Island
Laundry 1st Fl
Laundry 2nd Fl
Loft / Balcony
Primary Bdrm Upstairs
Nook / Breakfast Area
Open Floor Plan
Peninsula / Eating Bar
Rear Porch
Rear-entry
Rec Room
Screened Porch/Sunroom
Separate Tub and Shower
Split Bedrooms
Storage Space
Suited for narrow lot
Suited for sloping lot
Unfinished Space
Vaulted Ceilings
Walk-in Closet
Walkout Basement
Workshop
Wraparound Porch

Our Guarantees

  • Only the highest quality plans
  • Int’l Residential Code Compliant
  • Full structural details on all plans
  • Best plan price guarantee
  • Free modification Estimates
  • Builder-ready construction drawings
  • Expert advice from leading designers
  •  PDFs NOW!™ plans in minutes
  • 100% satisfaction guarantee
  • Free Home Building Organizer

See terms opt out anytime