20% off ALL House Plans Sitewide
20% off ALL House Plans Sitewide

House Plan: DFD-8055

See All 82 Photos > (photographs may reflect modified homes)
© copyright by designer
SQ FT
3,402
BEDS
4
BATHS
2.5
STORIES
2
CARS
2
HOUSE PLANS SALE 
START AT  $1,996.00
For questions and help, live chat, email or call us at 877-895-5299
Floor Plans
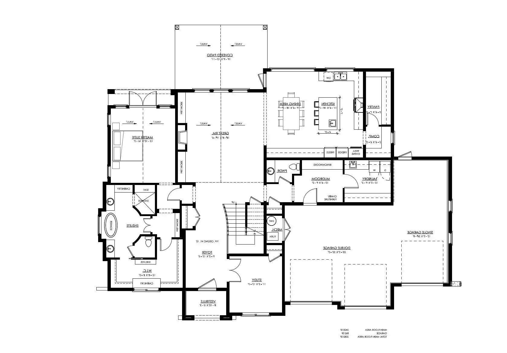
Click to Zoom In on Floor Plan
 
About House Plan 8055:
House Plan 8055, Canyon Edge, showcases award-winning design recognized by the ARDA Award (Published Design-Built). At 3,402 square feet, this home is designed for both elegance and practicality, featuring four bedrooms, two and a half baths, and a two-car garage. Inside, the foyer and vestibule open to a private study, while the main-floor primary suite creates a true sanctuary with a spa-like ensuite, a soaking tub, a massive walk-in closet, and access to a private outdoor space. The vaulted great room anchors the central open floor plan, highlighted by a warm fireplace and connected seamlessly to the dining area and a U-shaped kitchen with a large island and walk-in pantry. The covered rear patio extends the living area outdoors. Upstairs, three bedrooms with walk-in closets, a loft, and a full bath provide ample space for family and guests. This award-winning plan is designed to elevate daily living while offering stylish spaces for gathering and relaxation.
House Plan Pricing
STEP 1 Select Your Package

PDF Single Build


Digital plans emailed to you in PDF format that allows for printing copies and sharing electronically with contractors, subs, decorators, and more. This package includes a license to build the home one time.

PDF Single Build $2,495
Immediate Delivery!
Most recommended package

CAD + PDF Unlimited Build


This plan package is created in AutoCAD and delivered in .DWG format. CAD files are intended for use by design professionals, structural engineers, and builders to update plans for local building codes or to make revisions based on specific needs, lot requirements, and budget considerations. A complimentary PDF copy is included with this package for reference. CAD packages are delivered within 1 to 2 business days.
 
This package also comes with a multi-use building license, granting permission to construct the home an unlimited number of times, along with a copyright release for making revisions and printing unlimited copies.
 
For details on the specific CAD program used, please refer to the PLAN DETAILS section located above the floor plan on each plan page.

CAD + PDF Unlimited Build $3,495
2D electronic editable computer files
STEP 2 Need To Reverse This Plan?
STEP 3 CHOOSE YOUR FOUNDATION
STEP 4 OPTIONAL ADD-ONS
Subtotal:
$2495
FREE SHIPPING
 
Plan Details
See All Details
Finished Square Footage
2,376 Sq. Ft.
Main Level:
1,026 Sq. Ft.
Upper Level:
3,402 Sq. Ft.
Total:
Room Details
4
Bedrooms:
2
Full Baths:
1
Half Baths:
General House Information
2
Number of Stories:
63' 8"
Width:
63' 6"
Depth:
Single
Dwelling Number:
Unfinished Square Footage
516 Sq. Ft.
Garage:
107 Sq. Ft.
Front Porch:
324 Sq. Ft.
Deck:
GARAGE
Front
Garage Location:
2
Garage Size:
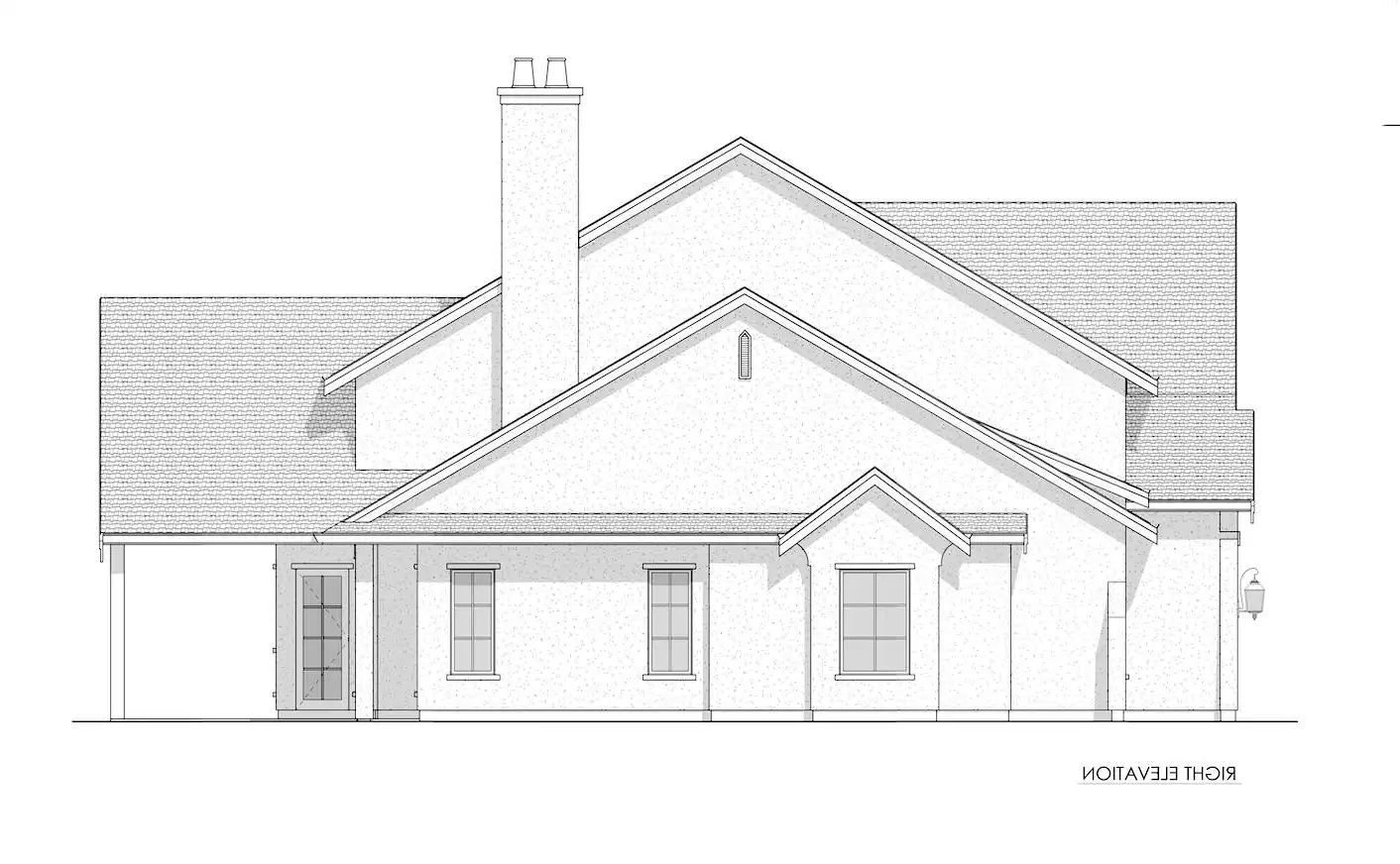
Exterior Style
Contemporary
Country
European
French Country
Traditional
Transitional
Collections
Canada
Kitchens
Luxury
Primary Suites
Open Floor Plan
Outdoor Living
Split Bedroom
Foundation
Basement
Crawl Space
Slab
Walkout Basement
Framing Information
Truss
Roof Framing:
2x6
Exterior Wall Framing:
Roof Pitch
7/12
Primary:
14/12
Secondary:
Insulation (R)
House And Ceiling Heights
10
First Floor Ceiling:
9
Second Floor Ceiling:
33' 2"
Maximum House Height:
Key Features
Attached
Covered Front Porch
Covered Rear Porch
Dining Room
Double Vanity Sink
Fireplace
Foyer
Front-entry
Great Room
Home Office
Kitchen Island
Laundry 1st Fl
Library/Media Rm
Loft / Balcony
Primary Bdrm Main Floor
Mud Room
Open Floor Plan
Outdoor Living Space
Peninsula / Eating Bar
Rec Room
Separate Tub and Shower
Split Bedrooms
Suited for view lot
Unfinished Space
U-Shaped
Vaulted Ceilings
Vaulted Great Room/Living
Vaulted Primary
Walk-in Closet
Walk-in Pantry

Our Guarantees

  • Only the highest quality plans
  • Int’l Residential Code Compliant
  • Full structural details on all plans
  • Best plan price guarantee
  • Free modification Estimates
  • Builder-ready construction drawings
  • Expert advice from leading designers
  •  PDFs NOW!™ plans in minutes
  • 100% satisfaction guarantee
  • Free Home Building Organizer

See terms opt out anytime