15% off ALL House Plans Sitewide
15% off ALL House Plans Sitewide

House Plan: DFD-8820

See All 4 Photos > (photographs may reflect modified homes)
© copyright by designer
SQ FT
3,257
BEDS
5
BATHS
3.5
STORIES
2
CARS
3
HOUSE PLANS SALE 
START AT  $1,827.50
For questions and help, live chat, email or call us at 877-895-5299
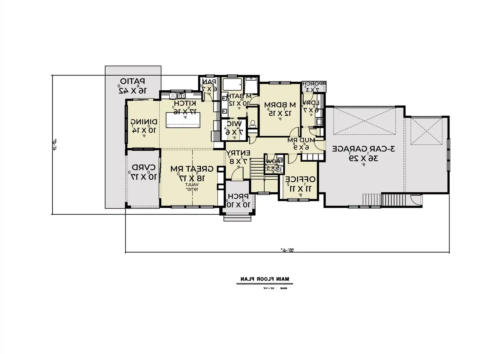
Floor Plans
Click to Zoom In on Floor Plan
 
About House Plan 8820:
Bright and airy, this magnificent modern farmhouse is the perfect plan for a family, regardless of age or size. With its 3,257 square feet of space and an impressive offering of 5 full bedrooms, there is space for everyone to enjoy. This includes a first floor master suite, along with the added bonus of a fully stocked in-law suite upstairs, complete with a full spa bath and a kitchenette of its own! Other highlights of the home include its totally open and bright layout, especially in the main areas. Take note of the great flow from spaces such as the picture perfect island kitchen and out to the vaulted great room or covered back deck. There is even a large game space upstairs, perfect for adding an extra room for you or the kids!
House Plan Pricing
STEP 1 Select Your Package

PDF Bid Set


Home plans stamped "NOT FOR CONSTRUCTION" for cost estimating and bidding purposes only; a minimum 5 set plan package must be purchased within 90 days for a license to build plan set; a credit will be applied towards your house plan upgrade

PDF Bid Set $1,275
Digital set of plans for bidding purposes only

PDF Single Build


Digital plans emailed to you in PDF format that allows for printing copies and sharing electronically with contractors, subs, decorators, and more. This package includes a license to build the home one time.

PDF Single Build $2,150
Most recommended package

5 Printed Sets + PDF


Includes 5 physical printed blueprint sets, shipped free via UPS within the U.S. Printed sets ship within 1 business day and are delivered within 3 – 5 business days. A complimentary PDF plan set is also emailed within 1 business day for easy sharing and local printing. These plans may be used to construct one home.

5 Printed Sets + PDF $2,600
5 Printed Sets + PDF

CAD + PDF Single Build


This plan package is created in AutoCAD and delivered in .DWG format. CAD files are intended for use by design professionals, structural engineers, and builders to update plans for local building codes or to make revisions based on specific needs, lot requirements, and budget considerations. A complimentary PDF copy is included with this package for reference. CAD packages are delivered within 1 to 2 business days.
 
This package also comes with a copyright release for making revisions and printing unlimited copies.

For details on the specific CAD program used, please refer to the PLAN DETAILS section located above the floor plan on each plan page.

CAD + PDF Single Build $2,650
2D electronic editable computer files
STEP 2 Need To Reverse This Plan?
STEP 3 CHOOSE YOUR FOUNDATION
STEP 4 OPTIONAL ADD-ONS
Subtotal:
$2150
FREE SHIPPING
 
Plan Details
See All Details
Finished Square Footage
1,807 Sq. Ft.
Main Level:
960 Sq. Ft.
Upper Level:
3,257 Sq. Ft.
Total:
Room Details
5
Bedrooms:
3
Full Baths:
1
Half Baths:
General House Information
2
Number of Stories:
95' 6"
Width:
39' 0"
Depth:
Single
Dwelling Number:
None
Bonus Access:
Unfinished Square Footage
1046 Sq. Ft.
Garage:
GARAGE
Rear
Garage Location:
3
Garage Size:
Exterior Style
Farmhouse
Modern Farmhouse
Transitional
Collections
Kitchens
Primary Suites
Open Floor Plan
Foundation
Crawl Space
Framing Information
Truss
Roof Framing:
2x6
Exterior Wall Framing:
Roof Pitch
10/12
Primary:
8/12
Secondary:
Insulation (R)
House And Ceiling Heights
9
First Floor Ceiling:
8
Second Floor Ceiling:
28' 3"
Maximum House Height:
Key Features
Attached
Covered Front Porch
Covered Rear Porch
Dining Room
Double Vanity Sink
Exercise Room
Fireplace
Great Room
Guest Suite
Home Office
In-law Suite
Kitchen Island
Laundry 1st Fl
Primary Bdrm Main Floor
Mud Room
Open Floor Plan
Pantry
Peninsula / Eating Bar
Rear Porch
Rear-entry
Separate Tub and Shower
Vaulted Ceilings
Vaulted Great Room/Living
Walk-in Pantry

Our Guarantees

  • Only the highest quality plans
  • Int’l Residential Code Compliant
  • Full structural details on all plans
  • Best plan price guarantee
  • Free modification Estimates
  • Builder-ready construction drawings
  • Expert advice from leading designers
  •  PDFs NOW!™ plans in minutes
  • 100% satisfaction guarantee
  • Free Home Building Organizer

See terms opt out anytime