17% off ALL House Plans Sitewide
17% off ALL House Plans Sitewide

House Plan: DFD-9092

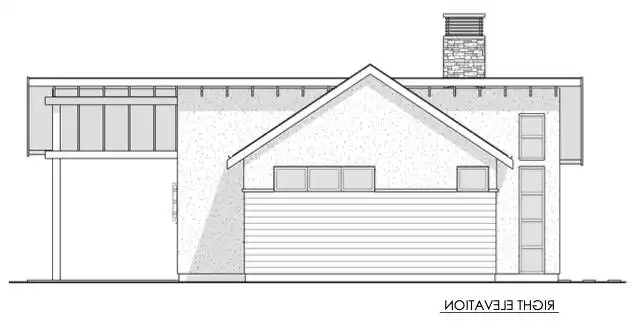
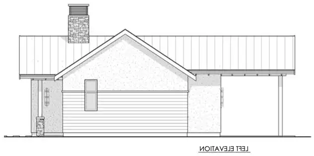
See All 8 Photos > (photographs may reflect modified homes)
© copyright by designer
SQ FT
967
BEDS
2
BATHS
2
STORIES
1
CARS
0
HOUSE PLANS SALE 
START AT  $1,157.85
For questions and help, live chat, email or call us at 877-895-5299
Floor Plans
Click to Zoom In on Floor Plan
 
House Plan 9092
House Plan Pricing
STEP 1 Select Your Package

PDF Single Build


Digital plans emailed to you in PDF format that allows for printing copies and sharing electronically with contractors, subs, decorators, and more. This package includes a license to build the home one time.

PDF Single Build $1,395
Most recommended package

CAD + PDF Unlimited Build


CAD files are a complete set of construction drawings delivered electronically. They can be used for any type of modification—including major design changes and engineering—and include a release granting permission to modify the plan. Most CAD plan orders are emailed the same or next business day.
 
This package also comes with a PDF set of plans and a multi-use building license, granting permission to construct the home an unlimited number of times, along with a copyright release for making modifications and printing unlimited copies.
 
CAD files are provided in .dwg format. For details on the specific CAD program used, please refer to the PLAN DETAILS section located above the floor plan on each plan’s page.

CAD + PDF Unlimited Build $2,395
2D electronic editable computer files
STEP 2 Need To Reverse This Plan?
STEP 3 CHOOSE YOUR FOUNDATION
STEP 4 OPTIONAL ADD-ONS
Subtotal:
$1395
FREE SHIPPING
 
Plan Details
See All Details
Finished Square Footage
967 Sq. Ft.
Main Level:
967 Sq. Ft.
Total:
Room Details
2
Bedrooms:
2
Full Baths:
General House Information
1
Number of Stories:
40' 9"
Width:
44' 0"
Depth:
Single
Dwelling Number:
Unfinished Square Footage
26 Sq. Ft.
Front Porch:
176 Sq. Ft.
Rear Porch:
GARAGE
0
Garage Size:
Exterior Style
Contemporary
Cottage
Modern
Collections
Affordable
Budget
Canada
Empty Nester
First Home
Open Floor Plan
Outdoor Living
Split Bedroom
Vacation
Foundation
Crawl Space
Slab
Framing Information
Combination
Roof Framing:
2x6
Exterior Wall Framing:
Roof Pitch
12/12
Primary:
Insulation (R)
House And Ceiling Heights
9
First Floor Ceiling:
22' 6"
Maximum House Height:
Key Features
Dining Room
Fireplace
Foyer
Front Porch
Great Room
Kitchen Island
Laundry 1st Fl
L-Shaped
Primary Bdrm Main Floor
Open Floor Plan
Outdoor Living Space
Pantry
Peninsula / Eating Bar
Split Bedrooms
Suited for narrow lot
Vaulted Ceilings
Walk-in Closet

Our Guarantees

  • Only the highest quality plans
  • Int’l Residential Code Compliant
  • Full structural details on all plans
  • Best plan price guarantee
  • Free modification Estimates
  • Builder-ready construction drawings
  • Expert advice from leading designers
  •  PDFs NOW!™ plans in minutes
  • 100% satisfaction guarantee
  • Free Home Building Organizer

See terms opt out anytime