22% off ALL House Plans Sitewide
22% off ALL House Plans Sitewide

House Plan: DFD-9231

See All 3 Photos > (photographs may reflect modified homes)
© copyright by designer
SQ FT
3,096
BEDS
4
BATHS
4.5
STORIES
2
CARS
3
HOUSE PLANS SALE 
START AT  $975.00
For questions and help, live chat, email or call us at 877-895-5299
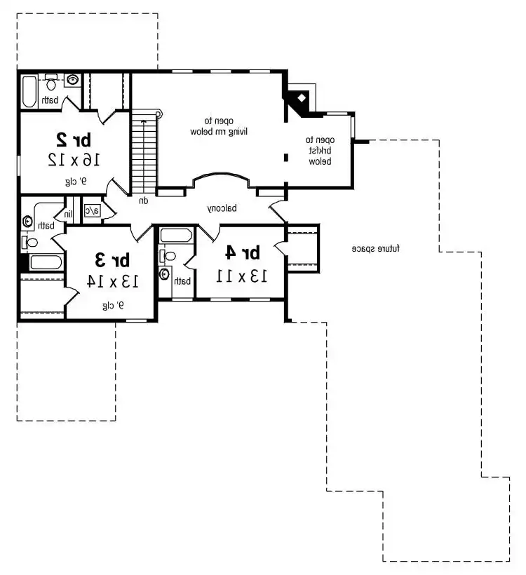
Floor Plans
Click to Zoom In on Floor Plan
 
About House Plan 9231:
Regardless if you are watching a late night movie alone or the big game with a crowd, this home features the ultimate in media rooms. Receding walls direct your view to the screen and bounce the sound to the viewer. An adjoining wet bar and bath serves the media room, living area or the rear covered porch. The 2-story Living room with massive corner fireplace and open stairwell makes a great entertaining space once the big game is over. A built in kitchen desk and huge walk-in pantry are sure to please the lady of the house. The master suite is grand and opulent with an equally impressive adjoining bath. The kitchen is open and light with bountiful storage and a great view into the living area. A large butlers pantry is positioned to serve the dining and kitchen and it is also convenient for off loading from the garage.
House Plan Pricing
STEP 1 Select Your Package

PDF Bid Set


Home plans stamped "NOT FOR CONSTRUCTION" for cost estimating and bidding purposes only; a minimum 5 set plan package must be purchased within 90 days for a license to build plan set; a credit will be applied towards your house plan upgrade

PDF Bid Set $1,025
Immediate Delivery!
Digital set of plans for bidding purposes only

PDF Single Build


Digital plans emailed to you in PDF format that allows for printing copies and sharing electronically with contractors, subs, decorators, and more. This package includes a license to build the home one time.

PDF Single Build $1,250
Immediate Delivery!
Most recommended package

4 Printed Sets


Four printed sets of construction drawings shipped and received in 3-5 business days

4 Printed Sets $1,305
Four printed sets of house plans

5 Printed Sets


Five Printed Sets of Residential Construction Drawings are typically 24” x 36” documents and come with a license to construct a single residence shipped to a physical address. Keep in mind PDF Plan Packages are our most popular choice which allows you to print as many copies as you need and to electronically send files to your builder, subcontractors, etc.

5 Printed Sets $1,350
Five printed sets of house plans

8 Printed Sets


Eight Printed Sets of Construction Drawings, typically 24” x 36” documents, with a license to construct a single residence shipped to your physical address. PDF Plan Packages are our most popular choice which allows you to print as many copies as you need and to electronically send files to your builder, subcontractors, bank/mortgage reps, material stores, decorators and more.

8 Printed Sets $1,460
Eight printed sets of house plans

CAD + PDF Single Build


CAD files are a complete set of construction drawings delivered electronically. They can be used for any type of modification—including major design changes and engineering—and include a release granting permission to modify the plan. Most CAD plan orders are emailed the same or next business day.
 
This package also comes with a PDF set of plans and a copyright release for making modifications and printing unlimited copies.
 
CAD files are provided in .dwg format. For details on the specific CAD program used, please refer to the PLAN DETAILS section located above the floor plan on each plan’s page.

CAD + PDF Single Build $2,300
2D electronic editable computer files
STEP 2 CHOOSE YOUR FOUNDATION
STEP 3 OPTIONAL ADD-ONS
Subtotal:
$1250
FREE SHIPPING
 
Plan Details
See All Details
Finished Square Footage
2,111 Sq. Ft.
Main Level:
985 Sq. Ft.
Upper Level:
3,096 Sq. Ft.
Total:
Room Details
4
Bedrooms:
4
Full Baths:
1
Half Baths:
General House Information
2
Number of Stories:
70' 0"
Width:
78' 0"
Depth:
Single
Dwelling Number:
Unfinished Square Footage
716 Sq. Ft.
Garage:
250 Sq. Ft.
Porch:
GARAGE
Front
Garage Location:
3
Garage Size:
Exterior Style
Contemporary
French Country
Collections
Luxury
Open Floor Plan
Split Bedroom
Foundation
Concrete Slab Foundation
Crawlspac
Optional Basement Foundation
Framing Information
Stick
Roof Framing:
2x6
Exterior Wall Framing:
Roof Pitch
15:12
Primary:
15:12
Dormer:
Insulation (R)
19
Exterior Wall:
0
Interior Wall:
38
Ceiling:
19
Floor:
House And Ceiling Heights
9
First Floor Ceiling:
9
Second Floor Ceiling:
38' 0"
Maximum House Height:
Facade
Brick/Siding
Key Features
2 Story Volume
Attached
Basement
Covered Front Porch
Covered Rear Porch
Crawlspace
Dining Room
Double Vanity Sink
Fireplace
Front Porch
Front-entry
Great Room
Kitchen Island
Laundry 1st Fl
Library/Media Rm
Primary Bdrm Main Floor
Open Floor Plan
Oversized
Peninsula / Eating Bar
Rear Porch
Separate Tub and Shower
Side-entry
Slab
Storage Space
Suited for corner lot
Suited for view lot
Vaulted Ceilings
Walk-in Closet
Walk-in Pantry
Workshop

Our Guarantees

  • Only the highest quality plans
  • Int’l Residential Code Compliant
  • Full structural details on all plans
  • Best plan price guarantee
  • Free modification Estimates
  • Builder-ready construction drawings
  • Expert advice from leading designers
  •  PDFs NOW!™ plans in minutes
  • 100% satisfaction guarantee
  • Free Home Building Organizer