15% off ALL House Plans Sitewide
15% off ALL House Plans Sitewide

House Plan: DFD-9291

See All 14 Photos > (photographs may reflect modified homes)
© copyright by designer
SQ FT
2,278
BEDS
3
BATHS
3.5
STORIES
1
CARS
2
HOUSE PLANS SALE 
START AT  $1,228.25
For questions and help, live chat, email or call us at 877-895-5299
 

3D Video Tour of Eden Falls

 
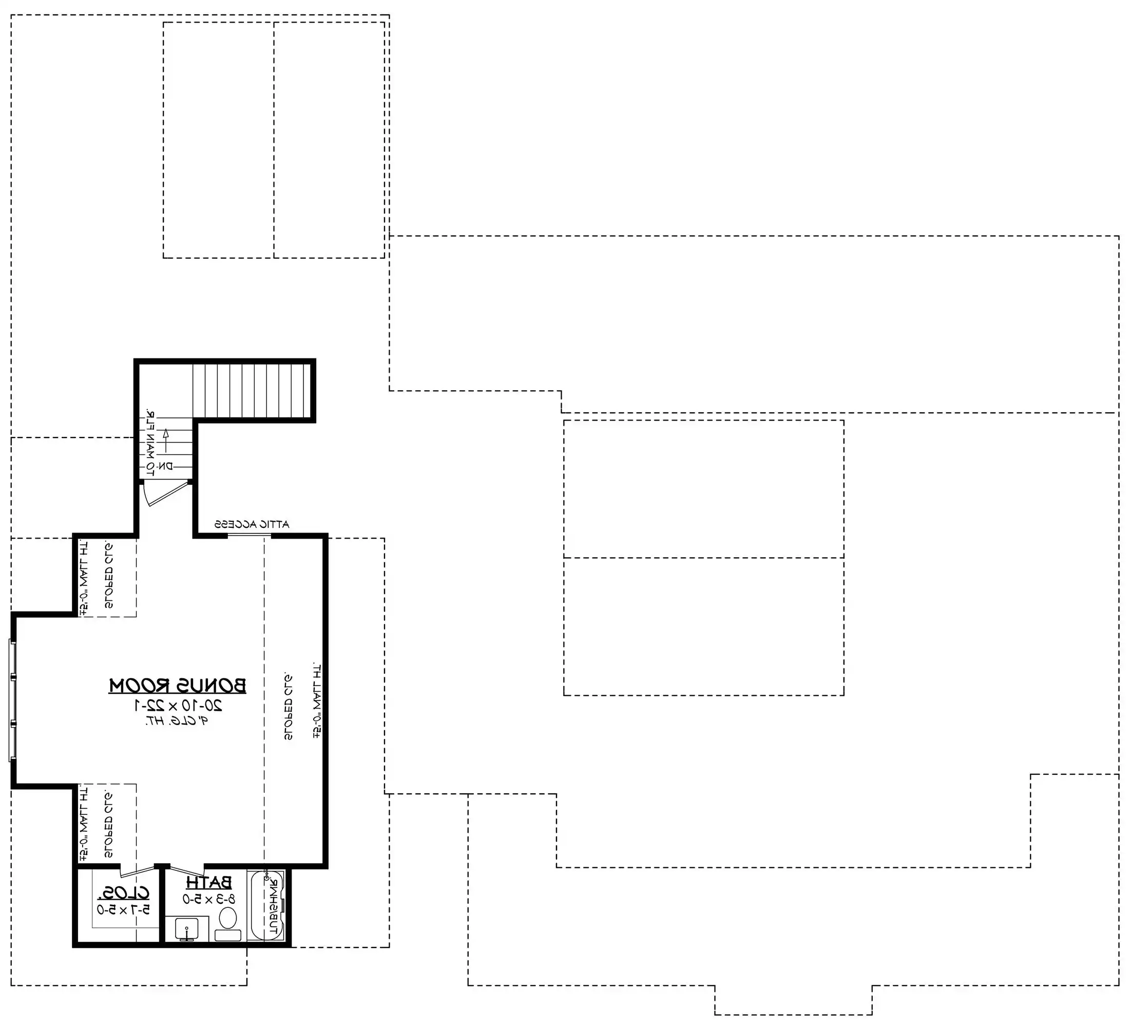
Floor Plans
Click to Zoom In on Floor Plan
 
About House Plan 9291:
Explore the charm of country living with House Plan 9291, a modern cottage where thoughtful design meets timeless appeal. The exterior blends stone and board-and-batten siding for an inviting, elegant look. Inside, the open-concept great room, dining area, and kitchen feature a vaulted ceiling with exposed decorative beams, perfect for family living and entertaining. This home includes three spacious bedrooms and three and a half baths, with the main suite offering a vaulted ceiling, luxurious bath, and a generously sized closet accessible through the laundry room. Enjoy the outdoors from the semi wrap-around porch and customize the versatile bonus room to suit your family's needs. Experience the ideal combination of style and functionality in this modern farmhouse, crafted for those who love to entertain and appreciate fine details.

 
House Plan Pricing
STEP 1 Select Your Package

PDF Single Build


Digital plans emailed to you in PDF format that allows for printing copies and sharing electronically with contractors, subs, decorators, and more. This package includes a license to build the home one time.

PDF Single Build $1,445
Most recommended package

5 Printed Sets + PDF


Includes 5 physical printed blueprint sets, shipped free via UPS within the U.S. Printed sets ship within 1 business day and are delivered within 3 – 5 business days. A complimentary PDF plan set is also emailed within 1 business day for easy sharing and local printing. These plans may be used to construct one home.

5 Printed Sets + PDF $1,695
5 Printed Sets + PDF

PDF Unlimited Build


Digital plans with an unlimited build license emailed in PDF format, that allows for printing copies on a home printer or local print shop and sharing with contractors, subs, decorators and more 

PDF Unlimited Build $2,145
Digital plans including unlimited build license

CAD + PDF Unlimited Build


This plan package is created in AutoCAD and delivered in .DWG format. CAD files are intended for use by design professionals, structural engineers, and builders to update plans for local building codes or to make revisions based on specific needs, lot requirements, and budget considerations. A complimentary PDF copy is included with this package for reference. CAD packages are delivered within 1 to 2 business days.
 
This package also comes with a multi-use building license, granting permission to construct the home an unlimited number of times, along with a copyright release for making revisions and printing unlimited copies.
 
For details on the specific CAD program used, please refer to the PLAN DETAILS section located above the floor plan on each plan page.

CAD + PDF Unlimited Build $2,545
2D electronic editable computer files
STEP 2 Need To Reverse This Plan?
STEP 3 CHOOSE YOUR FOUNDATION
STEP 4 OPTIONAL ADD-ONS
Subtotal:
$1445
FREE SHIPPING
 
Plan Details
See All Details
Finished Square Footage
2,278 Sq. Ft.
Main Level:
2,278 Sq. Ft.
Total:
Room Details
3
Bedrooms:
3
Full Baths:
1
Half Baths:
General House Information
1
Number of Stories:
75'
Width:
67'
Depth:
Single
Dwelling Number:
1st Floor
Bonus Access:
Unfinished Square Footage
748 Sq. Ft.
Garage:
57 Sq. Ft.
Storage:
443 Sq. Ft.
Front Porch:
577 Sq. Ft.
Rear Porch:
539 Sq. Ft.
Bonus Room:
GARAGE
Front
Garage Location:
2
Garage Size:
Exterior Style
Cottage
Country
Farmhouse
Modern Farmhouse
Traditional
Collections
First Home
Kitchens
Primary Suites
Open Floor Plan
Outdoor Living
Split Bedroom
Texas
Foundation
Basement
Crawl Space
Slab
Walkout Basement
Framing Information
Stick
Roof Framing:
2x4
Exterior Wall Framing:
Roof Pitch
9/12
Primary:
12/12
Secondary:
Insulation (R)
House And Ceiling Heights
10
First Floor Ceiling:
28'
Maximum House Height:
Key Features
Attached
Covered Front Porch
Covered Rear Porch
Dining Room
Double Vanity Sink
Fireplace
Foyer
Great Room
Kitchen Island
Laundry 1st Fl
Primary Bdrm Main Floor
Mud Room
Open Floor Plan
Outdoor Living Space
Separate Tub and Shower
Side-entry
Split Bedrooms
Storage Space
Suited for corner lot
Unfinished Space
U-Shaped
Vaulted Ceilings
Vaulted Primary
Walk-in Closet
Walk-in Pantry
Wraparound Porch

Our Guarantees

  • Only the highest quality plans
  • Int’l Residential Code Compliant
  • Full structural details on all plans
  • Best plan price guarantee
  • Free modification Estimates
  • Builder-ready construction drawings
  • Expert advice from leading designers
  •  PDFs NOW!™ plans in minutes
  • 100% satisfaction guarantee
  • Free Home Building Organizer