15% off ALL House Plans Sitewide
15% off ALL House Plans Sitewide

House Plan: DFD-9352

See All 10 Photos > (photographs may reflect modified homes)
© copyright by designer
SQ FT
4,081
BEDS
4
BATHS
4.5
STORIES
1
CARS
3
HOUSE PLANS SALE 
START AT  $1,980.50
For questions and help, live chat, email or call us at 877-895-5299
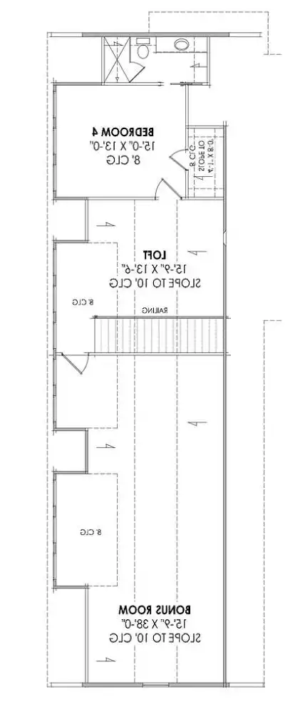
Floor Plans
Click to Zoom In on Floor Plan
 
About House Plan 9352:
You really have to see the floor plans to appreciate what House Plan 9352 has to offer, because you've likely never encountered a home like this before! This sprawling design offers 4,081 square feet, four bedrooms, and four-and-a-half bathrooms primarily across one level, but there is also some finished space upstairs. The heart of the home is comprised of the vaulted great room and the vaulted kitchen, which meet at a right angle to really show off their soaring ceilings. The primary suite is privately located off the entry hallway and also has a vaulted ceiling in addition to the five-piece bathroom. On the side with the garage, you'll find two smaller bedroom suites and the office/flex room. Head upstairs to find the final bedroom suite, a loft, and the bonus room. What an amazingly spacious some from all sides! 
House Plan Pricing
STEP 1 Select Your Package

PDF Single Build


Digital plans emailed to you in PDF format that allows for printing copies and sharing electronically with contractors, subs, decorators, and more. This package includes a license to build the home one time.

PDF Single Build $2,330
Most recommended package

5 Printed Sets + PDF


Includes 5 physical printed blueprint sets, shipped free via UPS within the U.S. Printed sets ship within 1 business day and are delivered within 3 – 5 business days. A complimentary PDF plan set is also emailed within 1 business day for easy sharing and local printing. These plans may be used to construct one home.

5 Printed Sets + PDF $2,680
5 Printed Sets + PDF

PDF Unlimited Build


Digital plans with an unlimited build license emailed in PDF format, that allows for printing copies on a home printer or local print shop and sharing with contractors, subs, decorators and more 

PDF Unlimited Build $2,965
Digital plans including unlimited build license

CAD + PDF Unlimited Build


This plan package is created in AutoCAD and delivered in .DWG format. CAD files are intended for use by design professionals, structural engineers, and builders to update plans for local building codes or to make revisions based on specific needs, lot requirements, and budget considerations. A complimentary PDF copy is included with this package for reference. CAD packages are delivered within 1 to 2 business days.
 
This package also comes with a multi-use building license, granting permission to construct the home an unlimited number of times, along with a copyright release for making revisions and printing unlimited copies.
 
For details on the specific CAD program used, please refer to the PLAN DETAILS section located above the floor plan on each plan page.

CAD + PDF Unlimited Build $3,385
2D electronic editable computer files
STEP 2 Need To Reverse This Plan?
STEP 3 CHOOSE YOUR FOUNDATION
STEP 4 OPTIONAL ADD-ONS
Subtotal:
$2330
FREE SHIPPING
 
Plan Details
See All Details
Finished Square Footage
3,483 Sq. Ft.
Main Level:
597 Sq. Ft.
Upper Level:
4,081 Sq. Ft.
Total:
Room Details
4
Bedrooms:
4
Full Baths:
1
Half Baths:
General House Information
1
Number of Stories:
104' 9"
Width:
82' 9"
Depth:
Single
Dwelling Number:
1st Floor
Bonus Access:
Unfinished Square Footage
969 Sq. Ft.
Garage:
67 Sq. Ft.
Front Porch:
454 Sq. Ft.
Rear Porch:
705 Sq. Ft.
Bonus Room:
GARAGE
Front
Garage Location:
3
Garage Size:
Exterior Style
Farmhouse
Modern
Modern Farmhouse
Scandinavian
Transitional
Collections
Kitchens
Luxury
Primary Suites
Open Floor Plan
Split Bedroom
Foundation
Basement
Crawlspace
Monolithic Slab
Walkout Basement
Framing Information
Stick
Roof Framing:
2x4
Exterior Wall Framing:
Roof Pitch
12/12
Primary:
9/12
Secondary:
Insulation (R)
Per IRC Climate Zones
House And Ceiling Heights
12
First Floor Ceiling:
10
Second Floor Ceiling:
25' 10"
Maximum House Height:
Key Features
Attached
Bonus Room
Courtyard/Motorcourt Entry
Covered Front Porch
Covered Rear Porch
Double Vanity Sink
Family Room
Fireplace
Foyer
Great Room
Guest Suite
Home Office
Kitchen Island
Laundry 1st Fl
Loft / Balcony
L-Shaped
Primary Bdrm Main Floor
Mud Room
Open Floor Plan
Pantry
Separate Tub and Shower
Side-entry
Split Bedrooms
Suited for corner lot
Suited for view lot
Vaulted Ceilings
Vaulted Great Room/Living
Vaulted Kitchen
Vaulted Primary
Walk-in Closet
Walk-in Pantry

Our Guarantees

  • Only the highest quality plans
  • Int’l Residential Code Compliant
  • Full structural details on all plans
  • Best plan price guarantee
  • Free modification Estimates
  • Builder-ready construction drawings
  • Expert advice from leading designers
  •  PDFs NOW!™ plans in minutes
  • 100% satisfaction guarantee
  • Free Home Building Organizer