House Plan: DFD-9516

See All 14 Photos > (photographs may reflect modified homes)
© copyright by designer
SQ FT
1,956
BEDS
3
BATHS
2.5
STORIES
1
CARS
2
PLANS FROM $1,345
For questions and help, live chat, email or call us at 877-895-5299
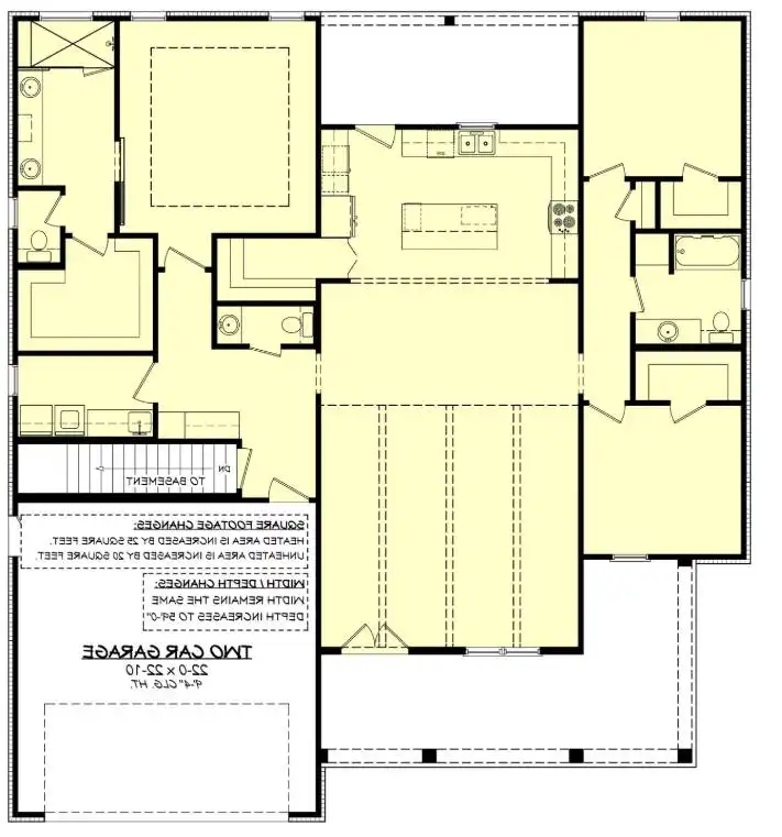
Floor Plans
Click to Zoom In on Floor Plan
 
About House Plan 9516:
House Plan 9516 is a 3-bedroom modern farmhouse offering 1,956 square feet of comfortable living space. With an inviting L-shaped front porch, an open floor plan perfect for gatherings, and a 2-car garage, this home blends simplicity with modern charm, making it a perfect choice for today's homeowners.
House Plan Pricing
STEP 1 Select Your Package

PDF Single Build


Digital plans emailed to you in PDF format that allows for printing copies and sharing electronically with contractors, subs, decorators, and more. This package includes a license to build the home one time.

PDF Single Build $1,345
Most recommended package

5 Printed Sets + PDF


Digital plan emailed to you in PDF format that allows for printing copies on a home printer or local print shop and sharing with contractors, subs, decorators, and more. PLUS five printed sets shipped and delivered 3-5 business days.

5 Printed Sets + PDF $1,595
Digital plans plus 5 printed sets

PDF Unlimited Build


Digital plans with an unlimited build license emailed in PDF format, that allows for printing copies on a home printer or local print shop and sharing with contractors, subs, decorators and more 

PDF Unlimited Build $2,045
Digital plans including unlimited build license

CAD + PDF Unlimited Build


CAD files are a complete set of construction drawings delivered electronically. They can be used for any type of modification—including major design changes and engineering—and include a release granting permission to modify the plan. Most CAD plan orders are emailed the same or next business day.
 
This package also comes with a PDF set of plans and a multi-use building license, granting permission to construct the home an unlimited number of times, along with a copyright release for making modifications and printing unlimited copies.
 
CAD files are provided in .dwg format. For details on the specific CAD program used, please refer to the PLAN DETAILS section located above the floor plan on each plan’s page.

CAD + PDF Unlimited Build $2,445
2D electronic editable computer files
STEP 2 Need To Reverse This Plan?
STEP 3 CHOOSE YOUR FOUNDATION
STEP 4 OPTIONAL ADD-ONS
Subtotal:
$1345
FREE SHIPPING
 
Plan Details
See All Details
Finished Square Footage
1,956 Sq. Ft.
Main Level:
1,956 Sq. Ft.
Total:
Room Details
3
Bedrooms:
2
Full Baths:
1
Half Baths:
General House Information
1
Number of Stories:
54'
Width:
57'
Depth:
Single
Dwelling Number:
None
Bonus Access:
Unfinished Square Footage
573 Sq. Ft.
Garage:
275 Sq. Ft.
Front Porch:
152 Sq. Ft.
Rear Porch:
GARAGE
Front
Garage Location:
2
Garage Size:
Exterior Style
Cottage
Country
Farmhouse
Modern Farmhouse
Ranch
Collections
Budget
Builders
Empty Nester
First Home
Open Floor Plan
Outdoor Living
Foundation
Basement
Crawl Space
Slab
Walkout Basement
Framing Information
Stick
Roof Framing:
2x4
Exterior Wall Framing:
Roof Pitch
8:12
Primary:
Insulation (R)
House And Ceiling Heights
9
First Floor Ceiling:
29'
Maximum House Height:
Key Features
Covered Front Porch
Covered Rear Porch
Dining Room
Front-entry
Great Room
Laundry 1st Fl
L-Shaped
Primary Bdrm Main Floor
Mud Room
Open Floor Plan
Split Bedrooms
Suited for view lot
Walk-in Closet
Walk-in Pantry

Our Guarantees

  • Only the highest quality plans
  • Int’l Residential Code Compliant
  • Full structural details on all plans
  • Best plan price guarantee
  • Free modification Estimates
  • Builder-ready construction drawings
  • Expert advice from leading designers
  •  PDFs NOW!™ plans in minutes
  • 100% satisfaction guarantee
  • Free Home Building Organizer